Jednoiposoban stan na prodaju, Dragana Nikolića, 80.000€, 42m²


















80.000 €
1.905 € / m2
- Stan u zgradi
- Podno grejanje
- Novo
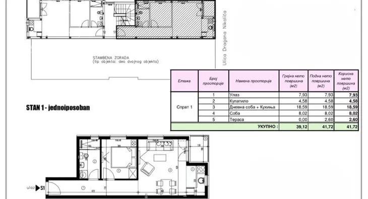
- Prostorije: kupatilo, toalet, kuhinja, terasa
- Opremljenost: Prazno - internet, interfon, klima
- Uknjiženo
- Oglas oglašava agencija
- 1 parking mesto
- Kablovska
- 1 telefonska linija
Opis oglasa
Ne propustite priliku da postanete vlasnik nekretnine u jednom od najbrže razvijajućih delova Novog Sada, u neposrednoj blizini Dunava.
Nova zgrada u ulici Dragana Nikolića ponosi se savremenim dizajnom, autentičnom arhitekturom i visokim standardima izgradnje. Projekat je pažljivo osmišljen i razvijen od strane pouzdanog investitora, koji iza sebe ima kvalitetno realizovane objekte.
Dostupno parking mesto.
Lokacija pruža savršen balans mira i udobnosti, sa brzim pristupom svim gradskim sadržajima, ali i tišinom koja omogućava opuštanje uz pogled na Frušku goru. Lokacija je udaljena samo 5 minuta hoda od reke Dunav, što dodaje dodatnu vrednost ovoj nekretnini.
Urbanistički planovi predviđaju izgradnju škola, vrtića, kulturnih i sportskih ustanova i doma zdravlja, a aktivno se radi na poboljšanju infrastrukture u ovom delu grada.
Požurite, jer interesovanje je veliko!
Useljenje je planirano za jun 2026. – ne propustite ovu jedinstvenu priliku da obezbedite svoje mesto po povoljnij ceni.
Opreama stanova:
· Interfon i kablovska TV
· Ulazna sigurnosna vrata i sobna vrata medijapan
· Ugradne sanitarne instalacije
· Keramika premium klase
· Troslojni tarket visoke klase (po želji kupca, moguće postaviti tarket u spavaćim sobama tokom gradnje, jer je planirana keramika zbog podnog grejanja)
· PVC stolarija REHAU
· Podno grejanje (svaki stan ima svoj električni kotao)
· Priprema za video nadzor
· Priprema za klima uređaj
· Kaljeno staklo na delovima terasa
· Ravan krov
· Energetski pasoš
Mogućnost povrata PDV-a za kupce prve nekretnine.
Za više informacija i kompletnu ponudu stanova, kontaktirajte nas!
Prikazana cena uključuje PDV i proviziju od 3% na račun kupca.
*Sačuvaj oglas uz belešku i primaj obaveštenja o njihovom pojeftinjenju ili pojavljivanju sličnih
Prikaz stana na mapi
Obeležja kulture u blizini
- Dvorac Eđšeg16 min
- Jodna Banja16 min
- Dvorac Hadik-Kotek18 min

Škole/Fakulteti/Vrtići u blizini
- Osnovna škola (Privatna osnovna škola Sveti Kirilo i Metodije)4 min
- Srednja škola (Privatna medicinska škola Dositej Obradović)7 min
- Vrtić (Dečiji vrtić Anđeo čuvar)4 min
- Fakultet (Protestantski teološki fakultet)9 min

- Bolnica (Opšta bolnica sa porodilištem Gea)8 min
- Klinika (Poliklinika Consilium)9 min
- Teretana (Fintess centar Basic Control Academy)8 min
- Prodavnica (Mikromarket)10 min
- Restoran (Restoran Exit West)30 min
- Kafana (Kafanica Kod Dače)46 min
- Taksi stajalište (Taxi prevoz Novi Sad)33 min
- Autobuska stanica (Veternička - Marije Bursać)10 min
- Banka (Erste Bank Ekspres ekspozitura)5 min
- Pošta (Pošta Novi Sad 21142)5 min
Kontakt oglašivača
Krediti OTP banke
Saznaj više
Prikazana rata odnosi se na maksimalni period otplate. Kalkulator je informativnog karaktera.
* Nakon isteka 5 godina, prelazi se na varijabilnu kamatnu stopu

