Građevinsko zemljište na prodaju, Vojvode Putnika, 18.000€, 6.5a


































18.000 €
- Infrastruktura: struja, asfaltni prilaz, voda
Opis oglasa
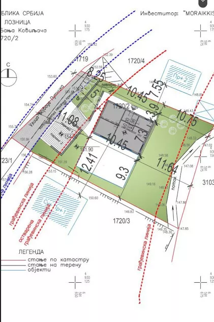
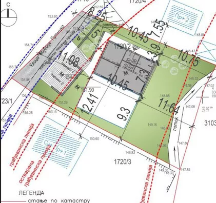
Na prodaju plac od 6,5 ari sa građevinskom dozvolom i mogućnošću dobijanja boravišne dozvole u Srbiji na Kraljevskom banjskom odmaralištu – Banja Koviljača
Dodatne informacije:
✔️ Banja Koviljača / Zapadna Srbija
✔️ Plac: 6,5 ari, zemljište prevedeno u građevinsko (gradsko)
✔️ Postoji projekat i građevinska dozvola (svi porezi su plaćeni)
✔️ Projekat kuće šaljemo na upit
✔️ Struja i voda su priključeni i plaćeni (ugovori zaključeni)
✔️ Plac je u vlasništvu fizičkog lica
✔️ Moguća kupovina za strance (pošto je projekat kuće upisan u katastar)
✔️ Infrastruktura:
750 m peške do Kraljevskog parka, u blizini prodavnice, apoteke, kafići i ostali sadržaji.
Cena placa: 18.000 €
(U cenu je uključen projekat kuće, građevinska dozvola i priključci za komunalije)
ID 333
*Sačuvaj oglas uz belešku i primaj obaveštenja o njihovom pojeftinjenju ili pojavljivanju sličnih
Prikaz zemljišta na mapi
Obeležja kulture u blizini
- Banjska dvorana Kur Salon4 min
- Spomenik Anti Bogićeviću11 min
- Spomenik Vuku Karadžiću13 min

Škole/Fakulteti/Vrtići u blizini
- Osnovna škola (Osnovna škola Vera Blagojević)9 min
- Srednja škola (Gimnazija Vuk Karadžić)12 min
- Vrtić (Dečiji vrtić Pinokio)7 min

- Bolnica (Specijalna bolnica za rehabilitaciju Banja Koviljača)6 min
- Klinika (Specijalistička lekarska ordinacija iz oblasti opšte hirurgije S-MEDIC)16 min
- Teretana (Fitness centar Sparta Pilates)15 min
- Prodavnica (Maxi Supermarket)14 min
- Restoran (Restoran Purić)13 min
- Banka (OTP banka)11 min
- Pošta (Pošta Banja Koviljača)4 min
Kontakt oglašivača
Krediti OTP banke
Period otplate
13 mesecimesečno
Period otplate 13 - 71 mesec
Saznaj više