Jednoiposoban stan na prodaju, Novogradnja, Podina, 61347€, 37.18m²
Podina, Gradske lokacije, Sokobanja


od 61.347 €
1.650 € / m2
Jednoiposoban stan
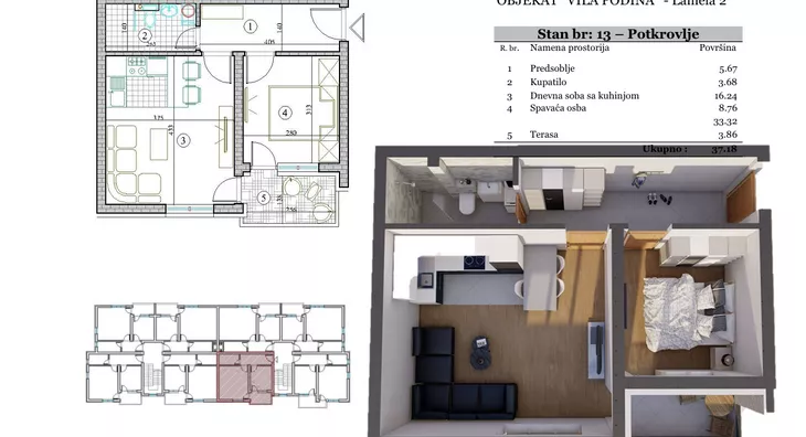
37.18m²
Potkrovlje/4 sprata
Uknjiženo
- Status izgradnje: U izgradnji
- Status prodaje: Na prodaju
- Energent: Struja
- Materijal gradnje: Građevinski blok
- Stolarija: PVC
- Podovi: Laminat
- Energetski pasoš: Da
- Prodaja parkinga: Dostupno
- Nema lift
- Kalorimetar: Ne
- Godina izgradnje: 2025.
Ovaj oglas je deo projekta
VILA PODINA
New City MPodina, Gradske lokacije, Sokobanja

O projektu oglašivača New City M
U mirnom delu Sokobanje na samo par koraka od Akva parka "PODINA" zida se objekat sa dve lamele koji budućim kupcima nudi ukupno 32 stambene jedinice. Svaki stan u svojoj strukturi ima spavaću sobu i terasu. U koliko želite da vaša nekretnina postane i izvor prihoda ova lokacija može biti jako interesantna.
Stambeni krediti
- Period otplate od
96 -360 meseca
- NKS 4.75%
EKS 5.74%
Fiksna kamatna stopa
- Bez troškova obrade kredita
- Period otplate od
96 -360 meseca
- NKS 4.34%
Kombinovana kamatna stopa
- Bez troškova obrade kredita
- Odobrenje kredita do 48h
244 € / mesečno
Saznaj višePogledaj detaljnije i menjaj uslove kreditiranja na
stranici kreditnih kalkulatora
stranici kreditnih kalkulatora
Keš krediti
RSDIznos kredita
Period otplate
13 meseciOsiguranje domaćinstva online
Osiguraj svoje domaćinstvo u slučaju požara...
