Poslovni prostor za izdavanje, Slavija, 3.000€, 218m²
Beograd, Vračar, Slavija
Prikaži mapuŠifra oglasa: 4zida-052Oglas ažuriran: pre 12 dana














3.000 €
Poslovni prostor
218 m²
Prazno
- Nisko prizemlje od ukupno 4 sprata
- Uobičajeno stanje
- Prostorije: kupatilo
- Opremljenost: Prazno - interfon
- Oglas oglašava agencija pod reg. brojem 862
- Godina izgradnje: 2010.
Opis oglasa
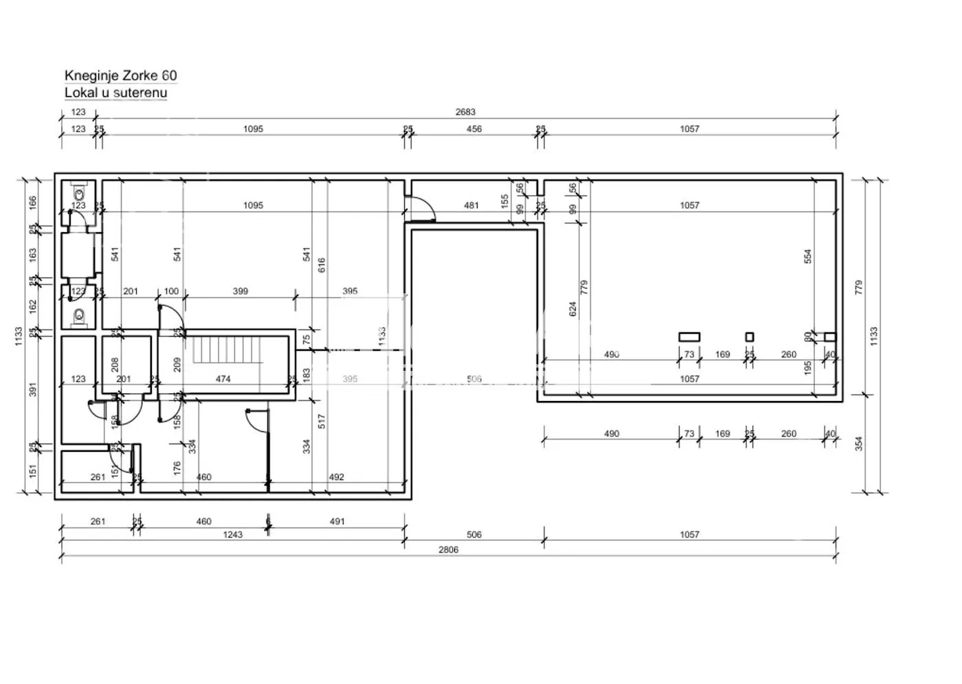
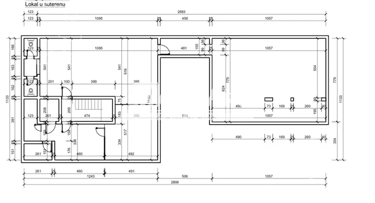
U prilici smo da Vam ponudimo poslovni prostor u Kneginje Zorke, u srcu Vračara u neposrednoj blizini Slavije i Njegoševe ulice.
Izdajemo prostor u suterenu objekta od prostranih 218 m2, podeljenih u 2 veće celine, i prateće prostorije.
Lokal ima mokri čvor, odvojen muški i ženski i toalet i kupatilo.
Prostor je idealan za Salon, Fitnes, Kliniku, Pet Centar…
Pozovite nas već danas za više detalja.
Posrednička provizija u svemu prema Opštim uslovima poslovanja agencije.
*Sačuvaj oglas uz belešku i primaj obaveštenja o njihovom pojeftinjenju ili pojavljivanju sličnih
Prikaz poslovnog prostora na mapi
Parkovi u blizini
- Park Mitićeva rupa6 min
- Park Milutina Milankovića7 min
- Svetosavski plato8 min

Obeležja kulture u blizini
- Muzička fontana3 min
- Spomenik Dimitriju Tucoviću5 min
- Kuća pukovnika Elezovića7 min

Škole/Fakulteti/Vrtići u blizini
- Osnovna škola (Osnovna škola Sveti Sava)4 min
- Srednja škola (Gimnazija Stefan Nemanja)5 min
- Vrtić (Dečiji vrtić studio za edukaciju Moj mali svet)7 min
- Fakultet (Univerzitet u Beogradu Fakultet muzičke umetnosti)9 min

Zdravlje
- Bolnica (Neurološka bolnica Affidea)5 min
- Klinika (Family Medica - poliklinika za specijalističke preglede)5 min
- Teretana (Muscle Planet Gym)6 min
Hrana i piće
- Prodavnica (Shop&Go)manje od 1 min
- Restoran (Restoran L' Adresse)2 min
- Kafana (Pejton Pub)7 min
Prevoz
- Taksi stajalište (Taxi stanica)3 min
- Autobuska stanica (Birčaninova)4 min
- Tramvajska stanica (Trg Slavija /Bulevar Oslobođenja/)1 min
- Trolejbuska stanica (Trg Slavija)4 min
Ostale ustanove
- Banka (Raiffeisen Bank)5 min
- Pošta (Pošta Beograd 113)9 min
Kontakt oglašivača
▾Reklama▾
Keš krediti
RSDIznos kredita
Period otplate
13 meseci

