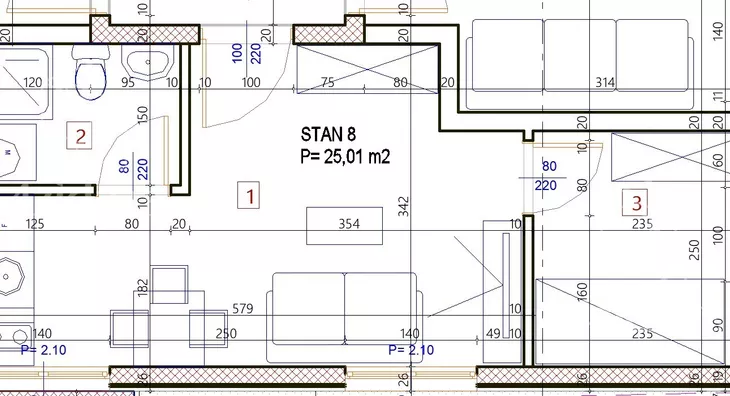
Jednoiposoban stan na prodaju, Učiteljska 50, 73.000€, 25m²


























73.000 €
2.920 € / m2
- Stan u zgradi
- Podno grejanje
- Luksuzno
- Prostorije: kupatilo, ostava
- Opremljenost: Prazno - internet
- Orijentacija ka: jug
- Pogled na: ulicu
- U procesu uknjižavanja
- Kupovina direktno od vlasnika
- 7 parking mesta, parking u dvorištu zgrade
- Godina izgradnje: 2025.
- Zgrada poseduje: video nadzor
- Tip interneta: optički
- Kablovska
- Autobuske linije: 20
- Trolejbuske linije: 21
- Tramvajske linije: 6, 7, 9 i 14
Opis oglasa
Moderan stan od 25m2 sa odvojenom spavaćom sobom (novogradnja). Stan je dvostrano orijentisan sa puno svetlosti, izuzetna termo i hidroizolacija (termo izolacije je kamena vuna od 10cm), mali režijski troškovi, idealno za izdavanje (350 - 400 evra/mesečno), leti prirodno hladan a zimi lako za ugrejati, PVC stolarija sa 6 komora i roletnama, grejanje je na elektro kotao sa podnim grejanjem a u kupatilu ima radijator - sušač.
Stan se nalaziu jednoj od najtraženijih lokacija na Zvezdari, u mirnom delu Učiteljskog naselja a na samo par minuta od BEO shpooing centra i Aviv Parka.
*Sačuvaj oglas uz belešku i primaj obaveštenja o njihovom pojeftinjenju ili pojavljivanju sličnih
Prikaz stana na mapi
Parkovi u blizini
- Park Šumice23 min
- Park Slavujev potok24 min
- Park Urbani džep26 min

Obeležja kulture u blizini
- Trećepozivačka česma9 min
- Osnovna škola Kralj Petar II Karađorđević12 min
- Pašina česma7 min

Škole/Fakulteti/Vrtići u blizini
- Osnovna škola (Osnovna škola Ćirilo i Metodije)3 min
- Srednja škola (Građevinska tehnička škola Branko Žeželj)7 min
- Vrtić (Dečiji vrtić Lavić)5 min
- Fakultet (Visoka građevinsko-geodetska škola Beograd)9 min

- Bolnica (MedicOne - specijalna bolnica za plastičnu, estetsku i rekonstruktivnu hirurgiju)7 min
- Klinika (Poliklinika i laboratorija LaboMedica)9 min
- Teretana (Body building i fitness klub Ahilej)5 min
- Prodavnica (Maxi Supermarket)3 min
- Restoran (Restoran Đerdan)4 min
- Kafana (Kafana Tri krune)9 min
- Taksi stajalište (Taxi stanica)10 min
- Autobuska stanica (Budvanska)4 min
- Tramvajska stanica (Koste Trifkovića)9 min
- Trolejbuska stanica (Marčanska)1 min
- Banka (Erste Bank)4 min
- Pošta (Pošta Beograd 21)3 min
Kontakt oglašivača

Krediti OTP banke
Saznaj više
Prikazana rata odnosi se na maksimalni period otplate. Kalkulator je informativnog karaktera.
* Nakon isteka 5 godina, prelazi se na varijabilnu kamatnu stopu

