Četvorosoban stan na prodaju, Nova Detelinara, 244.630€, 95m²






























244.630 €
2.575 € / m2
- Stan u zgradi
- Centralno grejanje
- Prostorije: ostava
- Opremljenost: Prazno - klima
- Uknjiženo
- Oglas oglašava agencija pod reg. brojem 1808
- 1 lift
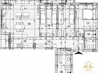
Opis oglasa
Na izuzetno praktičnoj i traženoj lokaciji na Novoj Detelinari, u neposrednoj blizini glavnih gradskih saobraćajnica i svih svakodnevnih sadržaja, prodaje se stan površine 95 m² koji predstavlja odličnu priliku za adaptaciju po sopstvenoj meri.
Stan se nalazi u uređenoj stambenoj zgradi sa centralnim grejanjem i raspolaže izuzetno funkcionalnim i komfornim rasporedom. Prostor čine prostrana dnevna soba, trpezarija, kuhinja, dve spavaće sobe, kupatilo, odvojeni toalet, degažman i ostava, što ga čini idealnim za porodični život ili kao investiciju. Zahvaljujući kvadraturi i rasporedu, stan pruža veliki potencijal za renoviranje i prilagođavanje savremenim standardima stanovanja. Prostorije su pravilnog oblika, sa jasnom podelom na dnevnu i spavaću zonu, što omogućava lako preuređenje prema ličnim potrebama. Lokacija je jedna od najvećih prednosti ove nekretnine. U neposrednoj blizini nalaze se škole, vrtići, prodavnice, marketi, dom zdravlja, gradski prevoz i svi sadržaji neophodni za kvalitetan i funkcionalan svakodnevni život. Stan je idealan izbor za kupce koji traže veću kvadraturu na dobroj lokaciji i žele da urede prostor prema sopstvenom ukusu, kao i za one koji prepoznaju potencijal nekretnina za renoviranje.
Za više informacija kao i za razgledanje stana slobodno nas kontaktirajte.
BAK Nekretnine
Kontakt telefon:
065... (prikaži broj telefona)
,
060... (prikaži broj telefona)
,
065... (prikaži broj telefona)
,
065... (prikaži broj telefona)
*Sačuvaj oglas uz belešku i primaj obaveštenja o njihovom pojeftinjenju ili pojavljivanju sličnih
Prikaz stana na mapi
Parkovi u blizini
- Železnički park18 min
- Park Bistrica21 min
- Futoški park22 min

Obeležja kulture u blizini
- Jodna Banja10 min
- Spomen ploča Albertu Ajnštajnu i Milevi Marić13 min
- Dvorac Eđšeg14 min

Škole/Fakulteti/Vrtići u blizini
- Osnovna škola (Osnovna škola Dositej Obradović)7 min
- Srednja škola (Škola za dizajn Bogdan Šuput)5 min
- Vrtić (Dečiji vrtić Lunja i Maza)1 min
- Fakultet (Univerzitet u Novom Sadu Medicinski fakultet)8 min

- Bolnica (NS specijalna bolnica za hemodijalizu)4 min
- Klinika (Poliklinika Galetić)6 min
- Teretana (Sportsko udruženje Joga Om)8 min
- Prodavnica (Supermarket Univerexport)2 min
- Restoran (Restoran My Way)4 min
- Kafana (Točionica Pab)6 min
- Taksi stajalište (Red Taxi)13 min
- Autobuska stanica (Hadži Ruvimova - Ilije Birčanina)3 min
- Banka (Raiffeisen Bank)5 min
- Pošta (Pošta Novi Sad 21140)2 min
Kontakt oglašivača
Krediti OTP banke
Saznaj više
Prikazana rata odnosi se na maksimalni period otplate. Kalkulator je informativnog karaktera.
* Nakon isteka 5 godina, prelazi se na varijabilnu kamatnu stopu






















