Petosoban stan na prodaju, Loznička, 720.000€, 144m²






720.000 €
5.000 € / m2
- Grejanje na toplotnu pumpu
- Novo
- Prostorije: kupatila (2), terasa
- Opremljenost: Prazno - internet, interfon, klima
- Oglas oglašava agencija pod reg. brojem 1418
- 1 garažno mesto
- 1 parking mesto
- 1 lift
- Godina izgradnje: 2025.
- Kablovska
- 1 telefonska linija
Opis oglasa
Na prodaju – luksuzan petosoban stan u srcu Vračara
Bez agencijske provizije za kupca
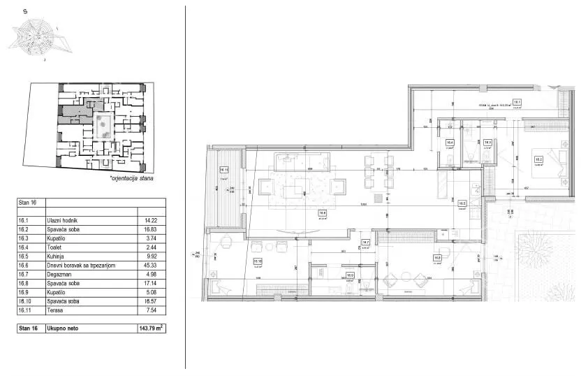
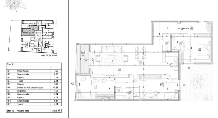
Na prodaju prostran i luksuzan stan površine 144 m², koji se nalazi na 4. spratu novogradnje u okviru ekskluzivnog stambenog kompleksa Loznička 7-9-11, u mirnoj ulici nadomak ulice Mileševske.
Struktura stana:
- Prostran dnevni boravak
- Tri spavaće sobe
- Dnevna soba
- Dva kupatila
- Kuhinja
- Terasa
Cena ne uključuje PDV.
Predviđeni rok useljenja: avgust 2025. godine.
U izgradnji su korišćeni najkvalitetniji materijali i oprema renomiranih proizvođača:
Spoljna stolarija: aluminijum-drvo
Unutrašnja stolarija: Bosal
Hrastov parket najviše klase
Keramika stranog proizvođača (I klasa)
Fasada kombinovana sa Fundermaksom, kamenom i staklom
Video-nadzor u svakom stanu, kao i na nivou celog objekta
Objekat je inspirisan prepoznatljivom savremenom arhitekturom sa fasadom od kvalitetne cigle, prirodnog kamena i stakla, oplemenjen zelenilom.
Zgradu karakteriše luksuzan foaje koji deli objekat na dve lamele, dok se u sredini nalazi zatvoreni atrijum vrt površine preko 130 m².
Mogućnost kupovine garaže - cena: 40.000 EUR
Lokacija:
Jedna od najlepših i najtraženijih lokacija na Vračaru – tiha ulica, a u neposrednoj blizini svih važnih sadržaja.
Stan koji vredi videti. Za svaku preporuku.
Za dodatne informacije i zakazivanje obilaska, kontaktirajte nas.
Ukoliko preko neke druge agencije vidite da je cena za isti stan manja, ta ista cena važi i za naš oglas!
Kontakt: 062... (prikaži broj telefona)
mail: [email protected]
*Sačuvaj oglas uz belešku i primaj obaveštenja o njihovom pojeftinjenju ili pojavljivanju sličnih
Prikaz stana na mapi
Parkovi u blizini
- Park Ćirila i Metodija9 min
- Park vojvode Petra Bojovića9 min
- Čuburski park11 min

Obeležja kulture u blizini
- Spomenik Ćirilu i Metodiju8 min
- Spomenik Puškinu9 min
- Spomenik Vuku Karadžiću10 min

Škole/Fakulteti/Vrtići u blizini
- Osnovna škola (Osnovna škola Jovan Miodragović)5 min
- Srednja škola (Srednja škola Arhimed)4 min
- Vrtić (Dečiji vrtić Diznilend)2 min
- Fakultet (Univerzitet u Beogradu Geografski fakultet)4 min

- Bolnica (Specijalna bolnica za oftalmologiju Miloš Klinika)3 min
- Klinika (Poliklinika Panacea)4 min
- Teretana (Fitness studio Be fit)2 min
- Prodavnica (IDEA)2 min
- Restoran (Bar Loznička 11)manje od 1 min
- Kafana (Pab Pivodrom)3 min
- Taksi stajalište (Taxi stanica)5 min
- Autobuska stanica (Pijaca „Kalenić“)7 min
- Tramvajska stanica (Vukov spomenik)10 min
- Trolejbuska stanica (Vojvode Dragomira)7 min
- Banka (Addiko Bank)6 min
- Pošta (Pošta Beograd 34)4 min
Kontakt oglašivača
Krediti OTP banke
Saznaj više
Prikazana rata odnosi se na maksimalni period otplate. Kalkulator je informativnog karaktera.
* Nakon isteka 5 godina, prelazi se na varijabilnu kamatnu stopu





















