Četvorosoban stan na prodaju, Tuniska, 460.000€, 147m²
OBIĐI 3D TURU




























460.000 €
3.129 € / m2
- Stan u zgradi
- Etažno grejanje
- Prostorije: ostava, terasa
- Opremljenost: Prazno - interfon
- Uknjiženo
- Oglas oglašava agencija pod reg. brojem 1000
- Godina izgradnje: 2010.
- Zgrada poseduje: video nadzor
- 1 telefonska linija
Opis oglasa
Čukarica, Golf Naselje - Tuniska
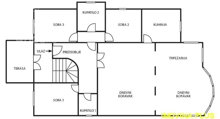
4.0, 147m2 (terasa 9m2), 2/3, EG, ostava, video nadzor, klima, telefon, interfon.
Komforan stan u luksuznoj zgradi, u blizini Košutnjaka. Stan je četvorostrano orijentisan, svetao i prostire se na celom spratu.
Stan poseduje veliki dnevni boravak sa kaminom, odvojenu kuhinju kompletno opremljenu. Poseduje i odvojeni spavaći blok sa tri spavaće sobe i dva kupatila. Postoji mogućnost zakupa parking mesta u nposrednoj blizini zgrade.
Uknjižen na 130m2.
Agent Aleksandra Damjanović: 062... (prikaži broj telefona)
Agencijska provizija je 2% i uključuje:
- pokazivanje nekretnine i informacije vezane za mikrolokaciju
- pravnu sigurnost uz tim advokata pri izradi Predugovora i Ugovora, overu kod Javnog beležnika (troškove overe kod notara plaća kupac)
- odjavu prodavca - prijavu kupca (porez na prenos apsolutnih prava i porez na imovinu, infostan, struja, telefon, kablovska)
*Sačuvaj oglas uz belešku i primaj obaveštenja o njihovom pojeftinjenju ili pojavljivanju sličnih
Prikaz stana na mapi
Parkovi u blizini
- Park Banovo Brdo11 min
- Dečje igralište25 min
- Košutnjak26 min

Obeležja kulture u blizini
- Spomenik srpskim ratnicima2 min
- Hajdučka česma9 min
- Skulptura Žetelica9 min

Škole/Fakulteti/Vrtići u blizini
- Osnovna škola (Osnovna škola Banović Strahinja)3 min
- Srednja škola (Gimnazija Ruđer Bošković)3 min
- Vrtić (Dečiji vrtić Pametnica Vila Košutica)2 min
- Fakultet (Visoka hotelijerska škola strukovnih studija)3 min

- Bolnica (Bolnica za plastičnu i rekonstruktivnu hirurgiju Mens Sana)1 min
- Klinika (Bel Medic Poliklinika)11 min
- Teretana (Fitness klub LifeSport)1 min
- Prodavnica (Supermarket Maki)5 min
- Restoran (Restoran Srpska kuća)5 min
- Kafana (Green Mill Pub)11 min
- Taksi stajalište (Plavi taxi)6 min
- Autobuska stanica (Naselje Golf)3 min
- Tramvajska stanica (Dom Zdravlja)12 min
- Trolejbuska stanica (Bolnica Dragiša Mišović)46 min
- Banka (NLB Komercijalna banka)5 min
- Pošta (Pošta Beograd 103)6 min
Kontakt oglašivača
Krediti OTP banke
Saznaj više
Prikazana rata odnosi se na maksimalni period otplate. Kalkulator je informativnog karaktera.
* Nakon isteka 5 godina, prelazi se na varijabilnu kamatnu stopu





















