Troiposoban stan na prodaju, Kajmakčalanska, 269.000€, 74m²
OBIĐI 3D TURU










































269.000 €
3.635 € / m2
- Stan u zgradi
- Etažno grejanje
- Renovirano
- Opremljenost: Prazno - interfon, kanalizacija
- Uknjiženo
- Oglas oglašava agencija pod reg. brojem 167
- Kanalizacija
- Godina izgradnje: 1939.
- Zgrada poseduje: podrum
- 1 telefonska linija
Opis oglasa
Zvezdara, Crveni krst - Kajmakčalanska
3.5, 74m2, 3/4, EG, telefon, interfon, podrum
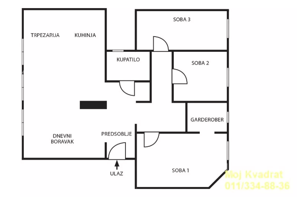
U ponudi za prodaju troiposoban stan od 74m2, u Kajmakčalanskoj ulici, na trećem spratu zgrade izgrađene 1939. godine koja nema lift, ali stepenište nije velikog nagiba, nije teško za penjanje.
Stan je dvostrano orijentisan, zapad i istok, veoma svetao. Sastoji se od prostranog dnevnog boravka sa kuhinjom i trpezarijom, jedne veće i dve manje spavaće sobe, kupatila, ulazog hodnika. Spavaći blok je izdvojen je manjim hodnikom. Visina plafona je 2.68m, etažno je grejanje. Iznad stana se nalazi stan.
U skladu sa projektom, u velikoj spavaćoj sobi, u delu gde je trenutno garderober, moguće je da se napravi još jedno kupatilo pripadajuće pomenutoj roditeljskoj sobi. Od dve manje sobe lako može da se dobije jedna komotna spavaća soba. Sve prostorije imaju prirodnu ventilaciju.
Zgrada ima samo četiri sparta sa ukupno 15 stanova. Stan ima pripadajući podrum, a renoviran je u dva navrata, 2016. i 2022. godine. Na zgradi je izrađena nova fasada i veoma se lepo održava. Stanari su izuzetno proaktivni. Na četvrtom spratu nalazi se otvorena terasa od 30m2 na kojoj je urađena hidro i termoizolacija, a koju koriste stanari trećeg i četvrtog sprata. Opremljena je garniturom za sedenje i sportskim rekvizitima. Elektro orman zamenjen je 2018. godine.
U stanu ostaje kuhinja sa kvalitetnom belom tehnikom, ugradni plakari su postavljeni na način da ne opterećuju životni prostor. Ostale stvari u skladu s dogovorom.
Postoji mogućnost iznajmljivanja garaže za 50 do 100 evra, ili kupovina nove u okviru zgrada koje su u procesu izgradnje.
Blizina Kalenić i Đeram pijace, Bulevara kralja Aleksandra, osnovnih, srednjih škola, vrtića. Izuzetna povezanost sa svim delovima grada.
Uknjižen na 74m2.
Agencijska provizija 2%.
Agent Svetlana Todorov: 066... (prikaži broj telefona) (licenca br. 6305)
*Sačuvaj oglas uz belešku i primaj obaveštenja o njihovom pojeftinjenju ili pojavljivanju sličnih
Prikaz stana na mapi
Parkovi u blizini
- Park Urbani džep9 min
- Park Ćirila i Metodija13 min
- Čuburski park14 min

Obeležja kulture u blizini
- Spomenik Ćirilu i Metodiju5 min
- Spomenik Puškinu5 min
- Vozarev krst5 min

Škole/Fakulteti/Vrtići u blizini
- Osnovna škola (Osnovna škola Narodni heroj Siniša Nikolajević)5 min
- Srednja škola (Srednja škola Arhimed)9 min
- Vrtić (Dečiji vrtić Biberče)5 min
- Fakultet (Univerzitet u Beogradu Geografski fakultet)4 min

- Bolnica (Klinika Dr Slobodan Švrakić / Gary Surak MD NaltrexZone)manje od 1 min
- Klinika (Poliklinika Panacea)5 min
- Teretana (1step Trening Centar)manje od 1 min
- Prodavnica (Aroma market)2 min
- Restoran (Kafana Kajmakčalan)2 min
- Kafana (Pub 23)2 min
- Taksi stajalište (Taxi stanica)5 min
- Autobuska stanica (Crveni Krst)4 min
- Tramvajska stanica (Vukov spomenik)14 min
- Trolejbuska stanica (Crveni Krst)4 min
- Banka (UniCredit Bank)7 min
- Pošta (Pošta Beograd 34)5 min
Kontakt oglašivača
Krediti OTP banke
Saznaj više
Prikazana rata odnosi se na maksimalni period otplate. Kalkulator je informativnog karaktera.
* Nakon isteka 5 godina, prelazi se na varijabilnu kamatnu stopu





















