Poslovni prostor na prodaju, 27. marta, 525.000€, 105m²
OBIĐI 3D TURU
































525.000 €
5.000 € / m2
- Centralno grejanje
- Opremljenost: Namešteno - interfon, kanalizacija
- Oglas oglašava agencija pod reg. brojem 167
- Kanalizacija
Opis oglasa
Palilula, Palilulska pijaca - 27. marta
poslovni prostor, 2.0, 105m2, dve terase, 1/4, CG, interfon
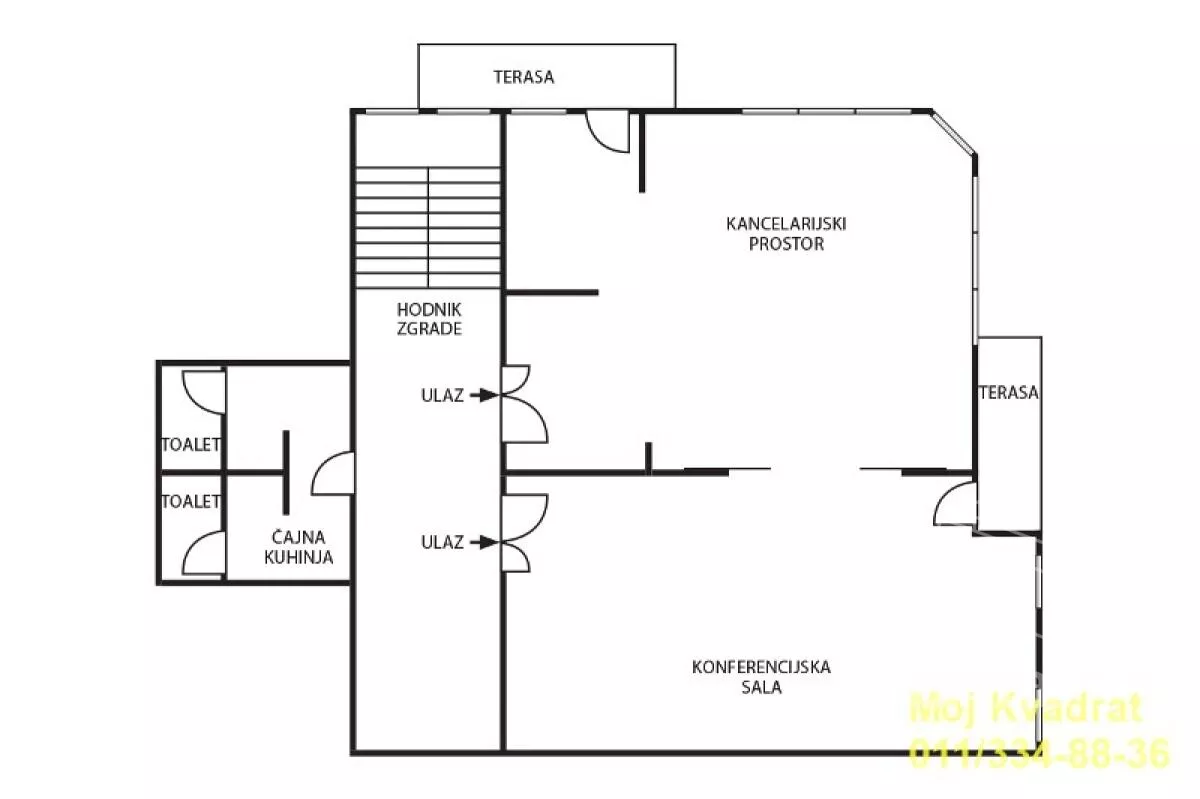
U ponudi za prodaju poslovni prostor u poslovnom delu zgrade površine 105m2.
Sastoji se od sale za sastanke i velike kancelarije. Takođe, poseduje toalet, kao i dve terase.
Prodaje sa namešten sa svim kancelarijskim nameštajem.
Uknjižen na 105m2.
Agencijska provizija 2%
Agent: Nemanja Đoković 066... (prikaži broj telefona) (licenca br.5118)
*Sačuvaj oglas uz belešku i primaj obaveštenja o njihovom pojeftinjenju ili pojavljivanju sličnih
Prikaz poslovnog prostora na mapi
Parkovi u blizini
- Tašmajdan7 min
- Park Mali Tašmajdan8 min
- Park Starine Novaka8 min

Obeležja kulture u blizini
- Spomenik Raši Popovu3 min
- Spomen kuća Uroša Predića7 min
- Zadužbina Ive Andrića9 min

Škole/Fakulteti/Vrtići u blizini
- Osnovna škola (Osnovna škola Vuk Karadžić)5 min
- Srednja škola (Pravno poslovna škola)5 min
- Vrtić (Dečiji vrtić Poletarac)3 min
- Fakultet (Univerzitet u Beogradu Rudarsko-geološki fakultet)6 min

- Bolnica (Gradski zavod za kožne i venerične bolesti Beograd)9 min
- Klinika (Poliklinika Argirović)6 min
- Teretana (Teretana Srpski Spartanci)3 min
- Prodavnica (Aman market)2 min
- Restoran (Walter sarajevski ćevap)2 min
- Kafana (Pub Jolly Roger)4 min
- Taksi stajalište (Taxi stanica)2 min
- Autobuska stanica (27. Marta)4 min
- Tramvajska stanica (Palilulska Pijaca)2 min
- Trolejbuska stanica (27. Marta)4 min
- Banka (UniCredit Bank)1 min
- Pošta (Pošta Beograd 35)6 min
Kontakt oglašivača
Stambeni krediti

- Period otplate od
96 -360 meseca
- NKS 4.75%
EKS 5.74%
Fiksna kamatna stopa
- Bez troškova obrade kredita
stranici kreditnih kalkulatora
Keš krediti
Period otplate
13 meseci