Jednoiposoban stan na prodaju, Novogradnja, Palilula, 98000€, 49m²
Palilula, Gradske lokacije, Niš


od 98.000 €
2.000 € / m2
Jednoiposoban stan
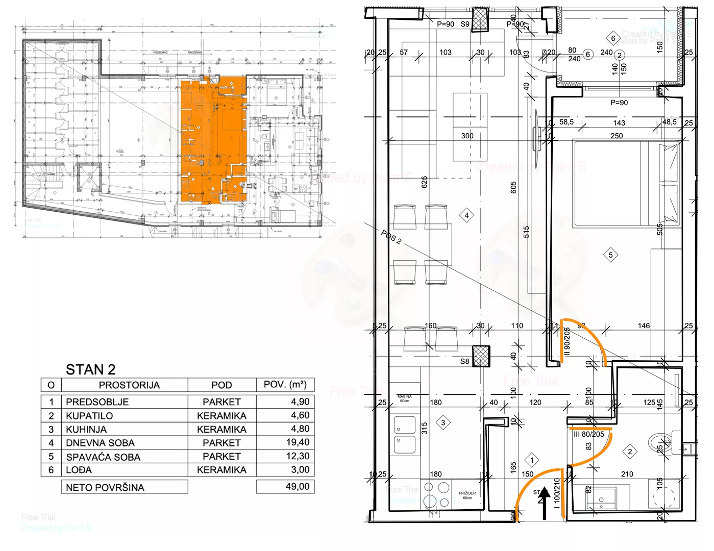
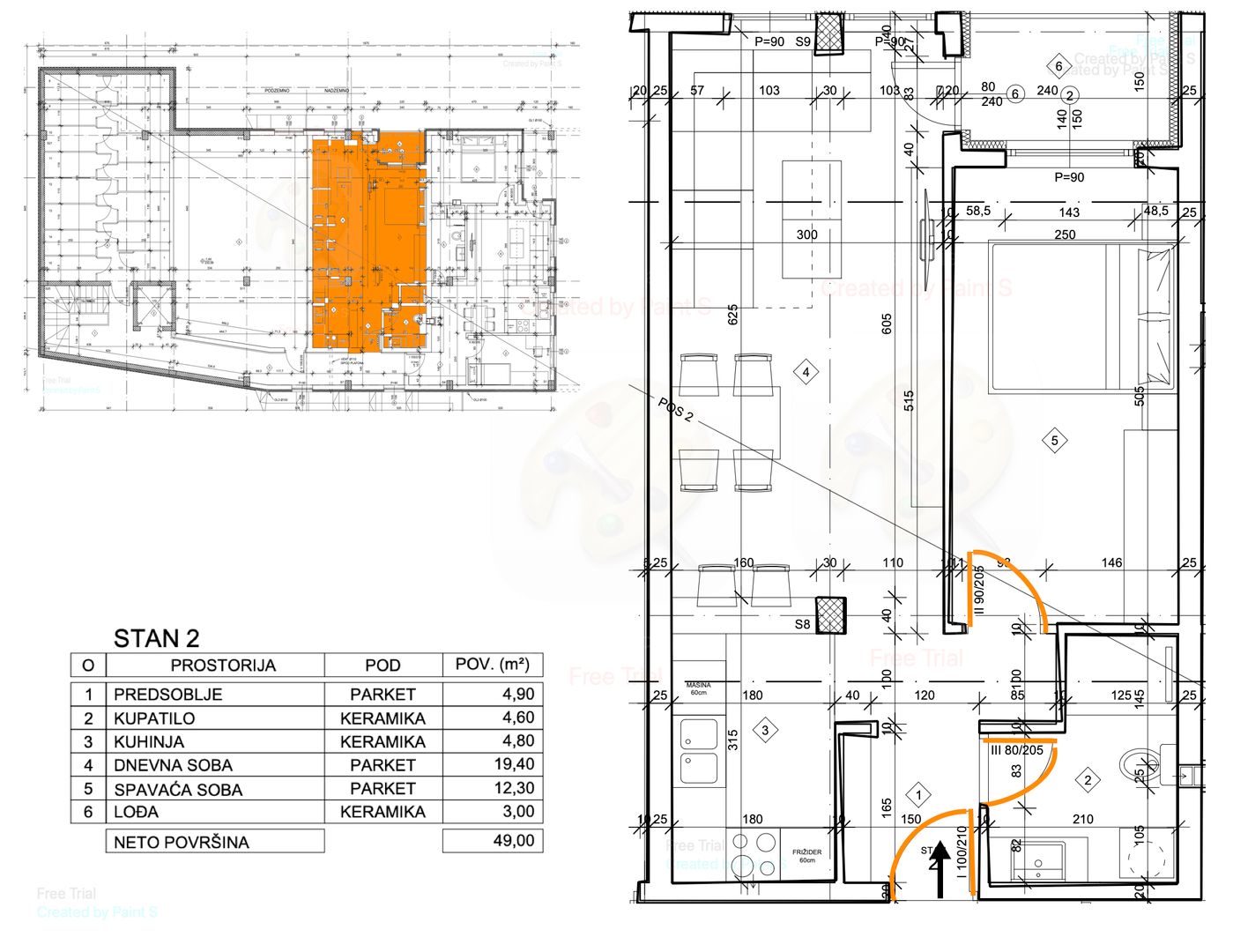
49m²
2/3 sprata
U procesu uknjižavanja
- Status izgradnje: U izgradnji
- Status prodaje: Na prodaju
- Energent: Struja
- Materijal gradnje: Cigla
- Stolarija: PVC
- Podovi: Tarket
- Energetski pasoš: Da
- Prodaja parkinga: Dostupno
- 1 lift
- Kalorimetar: Da
- Godina izgradnje: 2027.
Ovaj oglas je deo projekta
City view
Centar HousePalilula, Gradske lokacije, Niš

O projektu oglašivača Centar House
Novogradnja na Paliluli na samo 1 km od centra grada
Krediti OTP banke
Bez troškova obrade kredita
NKS 4.50% - EKS 5.74%
Period otplate 96 -360 meseca
Saznaj više
Prikazana rata odnosi se na maksimalni period otplate. Kalkulator je informativnog karaktera.
* Nakon isteka 5 godina, prelazi se na varijabilnu kamatnu stopu
Osiguranje domaćinstva online
Osiguraj svoje domaćinstvo u slučaju požara...

