2-etažna kuća za izdavanje, Bežanijska kosa 1, 3.000€, 210m²
OBIĐI 3D TURU










































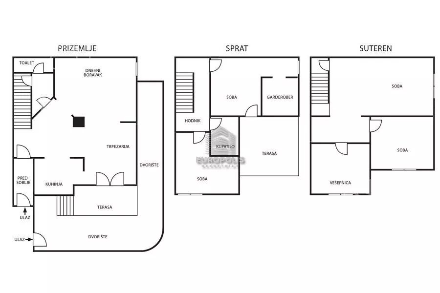
- Kvadratura: 210m²
- Etaž: 2
- Prostorije: kupatilo, terasa
- Opremljenost: Namešteno - internet, interfon, klima
- Oglas oglašava agencija pod reg. brojem 1288
- 1 parking mesto
- Objekat poseduje: dvorište, podrum
- Kablovska
- 1 telefonska linija
Opis oglasa
- Kompletno renovirana i opremljena kuća.
- Lux.
- U kući je sve novo i spremno za buduće stanare.
- Tri nivoa.
- 210 m2.
- Velike terase.
- Dva parking mesta ispred kuće.
- Dve velike spavaće sobe na gornjoj etaži.
- Garderober.
- Centralno grejanje.
- Niske mesečne režije.
- U najlepšem delu Bežanijske kose 1.
- Blizina infrastrukturnih sadržaja neophodnih za život (prodavnice, apoteke, škola, vrtići, parkovi, restorani).
- Blizina uključenja na autoput.
- Dobra povezanost sa svim delovima grada.
- Kuća je na uglu dvorišta.
- Tzv. Vojvođanka.
- Izuzetno osunčana i svetla.
- Komforna i prijatna za boravak.
- Opremljena je najsavremenijim nameštajem i belom tehnikom.
- Ispred ulaza kuće ima dosta zelenila.
- Odličan komšiluk.
- Miran kraj.
- Za više informacija pozvati.
- Topla preporuka!
Agencijska nadoknada iznosi 50% od prve mesečne zakupnine za period zakupa do 36 meseci, a 100% od prve mesečne zakupnine za period zakupa na 36 meseci ili duže.
.
*Sačuvaj oglas uz belešku i primaj obaveštenja o njihovom pojeftinjenju ili pojavljivanju sličnih
Prikaz kuće na mapi
Parkovi u blizini
- Park Republike Argentine31 min
- Park Blok 7035 min
- Dečje igralište37 min

Obeležja kulture u blizini
- Stara osnovna škola8 min
- Hangar Starog aerodroma na Novom Beogradu9 min
- Spomenik Žambilu Zambajevu15 min

Škole/Fakulteti/Vrtići u blizini
- Osnovna škola (Osnovna škola Borislav Pekić)4 min
- Srednja škola (Tehnička škola Novi Beograd)10 min
- Vrtić (Dečiji vrtić Extreme Kids)4 min
- Fakultet (Visoka tehnička škola strukovnih studija Beograd)12 min

- Bolnica (Opšta bolnica Avala)8 min
- Klinika (Poliklinika As Medicus Biorezonanca)6 min
- Teretana (Teretana Blok)8 min
- Prodavnica (Market Venera)2 min
- Restoran (Restoran Lucky Lee)6 min
- Kafana (Helga's Pub)28 min
- Taksi stajalište (Taxi stanica)12 min
- Autobuska stanica (Nikole Dobrovića)6 min
- Banka (Addiko Bank)5 min
- Pošta (Pošta Beograd 99)8 min
Kontakt oglašivača
Krediti OTP banke
Period otplate
13 mesecimesečno
Period otplate 13 - 71 mesec
Saznaj više




















