Jednosoban stan na prodaju, Slavonska, 129.000€, 38m²
OBIĐI 3D TURU





























129.000 €
3.395 € / m2
- Grejanje na norveške radijatore
- Uobičajeno stanje
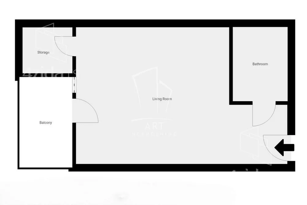
- Prostorije: kupatilo, terasa
- Opremljenost: Prazno - internet, interfon, klima
- Uknjiženo
- Oglas oglašava agencija pod reg. brojem 339
- 1 parking mesto
- Zgrada poseduje: podrum
- 1 telefonska linija
Opis oglasa
Sjajan mali luks stan fenomenalnog rasporeda i strukture. Stan je izuzetno topao, prijatan i idealno je pozicioniran. Nalazi se u mirnoj ulici na fantastičnoj lokaciji, na 2 spratu u lepoj manjoj zgradi. Sastoji se od ulaznog dela, kuhinje, komfornog i prostranog dnevnog boravka, kupatila, prelepe terase i ostave. Odmah pored stana nalaze se i raznovrsni sadrzaji od kojih se ističu sjajni otvoreni i zatvoreni bazeni, kao i spa centar, a u neposrednoj blizini se nalaze i škole, vrtići, supermarketi, parkovi, igraonice, restorani kao i stajališta za mnogobrojne autobuske linije. Stan je potencijalno fantastičan i kao investicija, a velika prednost su i veoma mali računi za režije! Veoma retko u ponudi i apsolutno za svaku preporuku! Agencijska provizija 2%. Agent: Raško Jorović br. licence 015 “Art nekretnine“ d.o.o. Beograd. Reg. br. 339. 011... (prikaži broj telefona) .
*Sačuvaj oglas uz belešku i primaj obaveštenja o njihovom pojeftinjenju ili pojavljivanju sličnih
Prikaz stana na mapi
Parkovi u blizini
- Park Sava Kovačević18 min
- Dečje igralište23 min
- Park Kalvarija24 min

Obeležja kulture u blizini
- Ičkova kuća7 min
- Livnica Pantelić7 min
- Kula Sibinjanin Janka Gardoš7 min

Škole/Fakulteti/Vrtići u blizini
- Osnovna škola (Osnovna škola Gornja Varoš)manje od 1 min
- Srednja škola (Elektrotehnička škola Zemun)5 min
- Vrtić (Dečiji vrtić Čudesno carstvo)6 min
- Fakultet (ITAcademy)5 min

- Bolnica (Očna bolnica Profesional Dr Suvajac)9 min
- Klinika (Poliklinika O2)5 min
- Teretana (Namaste Yoga Centar)2 min
- Prodavnica (Shop&Go)6 min
- Restoran (Restoran A la Grekos)5 min
- Kafana (Kaš Pivara)15 min
- Taksi stajalište (Taxi stanica)16 min
- Autobuska stanica (Dunavska)5 min
- Banka (Banca Intesa)4 min
- Pošta (Pošta Beograd 82)5 min
Kontakt oglašivača
Stambeni krediti
- Period otplate od
96 -360 meseca
- NKS 4.50%
EKS 5.74%
Fiksna kamatna stopa
- Bez troškova obrade kredita
- Period otplate od
96 -360 meseca
- NKS 4.34%
Kombinovana kamatna stopa
- Bez troškova obrade kredita
- Odobrenje kredita do 48h
stranici kreditnih kalkulatora
Keš krediti
Period otplate
13 meseci



















