Četvorosoban stan na prodaju, Zemun - Centar, 380.000€, 132m²






















380.000 €
2.879 € / m2
- Stan u zgradi
- Grejanje na toplotnu pumpu
- U izgradnji
- Prostorije: kupatila (2), toalet, terasa
- Opremljenost: Prazno - klima
- Orijentacija ka: severoistok, jugoistok, istok
- Pogled na: ulicu, dvorište
- U procesu uknjižavanja
- Oglas oglašava agencija pod reg. brojem 1299
- Garaža u sklopu zgrade
- 2 parking mesta
- 1 lift
- Godina izgradnje: 2025.
- Autobuske linije: 16, 81, 81L, 612, 613, 711, ADA2
Opis oglasa
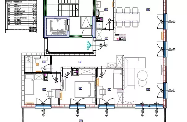
Na prodaju je prelep četvorosoban penthaus na povučenom spratu, projektovan tako da ima open space dnevni boravak sa kuhinjom i trpezarijom, dva velika kupatila plus toalet, tri komforne spavaće sobe i terasu od 27m2.
Stan se nalazi u objektu rezidencijalno-poslovne prirode, koji je smešten na Novom Beogradu, u ulici Radoja Dakića, koja je jedna od najatraktivnijih lokacija u Beogradu (blizu ulice Džona Kenedija). Odlično je povezan sa ostalim delovima grada kako velikim saobraćajnicama, tako i linijama gradskog prevoza (pored objekta nalaze se stajališta linija 81L, 16, 607, 612, 613, 711, 81, 18, 45, 78, 15N). Udaljenost objekta od Trga Republike iznosi 5 km, a od Zemunskog keja je 1,5 km.
Stanovi se grade od najkvalitetnijih materijala. Stolarija je od troslojnig aluminijuma sa termoprekidom. Sigurnosna ulazna vrata su sa obe strane obložena pločastim materijalom u dekoru drveta. Grejanje je na struju sa najnovijim sistemom toplotnih pumpi koje rade i na grejanje i na hlađenje. Sanitarije su od italijanskog proizvođača Catalano sa ugradnim sistemom WC šolje Geberit, tuš kabine sa staklenim paravanom i linijskom rešetkom, baterije Hans Grohe. Podne obloge će biti od italijanske granitne keramike ili parketa Tara concept. U svakom stanu će biti postavljena LG inverter klima. Spoljna zvučna i toplotna izolacija po principu Ceresit fasade.
Cena stana je 380.000 eura plus PDV. Plaćanje je fazno, može i na kredit sa 30% učešća, a za kupce prvog stana moguć je povrat PDV-a. Useljivo 01.01.2026. godine.
A beautiful four-bedroom penthouse on a recessed floor is for sale. It is designed with an open space concept that includes a living room with kitchen and dining area, two spacious bathrooms plus a guest toilet, three comfortable bedrooms, and a 27 m² terrace.
The apartment is located in a mixed-use residential and commercial building, situated in New Belgrade on Radoja Dakića Street—one of the most attractive locations in Belgrade (near John Kennedy Street). It is excellently connected to the rest of the city by major roads and public transport lines (bus stops for lines 81L, 16, 607, 612, 613, 711, 81, 18, 45, 78, and 15N are located right next to the building). The building is 5 km from Republic Square and 1.5 km from the Zemun Quay.
The apartments are being built with top-quality materials. The joinery is triple-layer aluminum with thermal break. Security entrance doors are covered on both sides with wood-decor panels. Heating is electric via the latest heat pump systems that provide both heating and cooling. The bathroom fixtures are by the Italian brand Catalano, with built-in Geberit toilet systems, glass shower partitions with linear drains, and Hans Grohe faucets. Flooring will be high-end Italian granite ceramic tiles or Tara Concept parquet. Each apartment will be equipped with an LG inverter air conditioner. The facade features Ceresit system sound and thermal insulation.
The price of the apartment is €380,000 plus VAT. Payment can be made in phases, and purchase via mortgage is possible with a 30% down payment. First-time homebuyers are eligible for a VAT refund.
Move-in date: January 1, 2026.
Продаётся великолепный четырёхкомнатный пентхаус на частично отступающем верхнем этаже. Квартира спроектирована по принципу open space: просторная гостиная, совмещённая с кухней и столовой, два больших санузла и дополнительный гостевой туалет, три комфортабельные спальни и терраса площадью 27 м².
Квартира находится в жилом и коммерческом здании, расположенном в Новом Белграде, на улице Радоя Дакича — одной из самых привлекательных локаций города (рядом с улицей Джона Кеннеди). Отличное транспортное сообщение как с помощью крупных магистралей, так и городским транспортом (рядом остановки маршрутов 81L, 16, 607, 612, 613, 711, 81, 18, 45, 78, 15N). До площади Республики — 5 км, до Земунской набережной — 1,5 км.
Квартиры строятся из материалов премиум-класса. Окна — из трёхслойного алюминия с терморазрывом. Входные двери обшиты с обеих сторон панелями с декором под дерево. Отопление — электрическое, с использованием новейших тепловых насосов, которые обеспечивают как обогрев, так и охлаждение. Санфаянс — итальянский бренд Catalano, встроенные инсталляции Geberit, душевые кабины с стеклянными перегородками и линейными трапами, смесители Hans Grohe. Полы — итальянская керамогранитная плитка или паркет Tara Concept. В каждой квартире будет установлена инверторная система кондиционирования LG. Фасад — снаружи шумо- и теплоизолирован по технологии Ceresit.
Цена квартиры — 380 000 евро + НДС. Оплата возможна поэтапно, возможна покупка в ипотеку с первоначальным взносом 30%. Покупатели первого жилья могут получить возврат НДС.
Заселение с 1 января 2026 года.
*Sačuvaj oglas uz belešku i primaj obaveštenja o njihovom pojeftinjenju ili pojavljivanju sličnih
Prikaz stana na mapi
Parkovi u blizini
- Gradski park3 min
- Park Kalvarija11 min
- Dečje igralište18 min

Obeležja kulture u blizini
- Kuća Dimitrija Davidovića5 min
- Ičkova kuća5 min
- Spomenik palim u narodnoj revoluciji 1941/459 min

Škole/Fakulteti/Vrtići u blizini
- Osnovna škola (Osnovna škola Svetozar Miletić)9 min
- Srednja škola (Ekonomska škola Nada Dimić)7 min
- Vrtić (Dečiji vrtić Vila Zvončica)2 min
- Fakultet (Visoka zdravstveno-sanitarna škola strukovnih studija VISAN)4 min

- Bolnica (Bolnica za plastičnu i rekonstruktivnu hirurgiju DE)14 min
- Klinika (Poliklinika Park Medica)5 min
- Teretana (Fitness centar Mega Gym Zelena avenija)5 min
- Prodavnica (Market Jutro - Trivuk)5 min
- Restoran (Restoran Slonče)1 min
- Kafana (Cirkus Pub)1 min
- Taksi stajalište (Taxi stanica)11 min
- Autobuska stanica (KBC Zemun)3 min
- Banka (Raiffeisen Bank)8 min
- Pošta (Pošta Beograd 126)5 min
Kontakt oglašivača
Stambeni krediti
- Period otplate od
96 -360 meseca
- NKS 4.75%
EKS 5.74%
Fiksna kamatna stopa
- Bez troškova obrade kredita
- Period otplate od
96 -360 meseca
- NKS 4.34%
Kombinovana kamatna stopa
- Bez troškova obrade kredita
- Odobrenje kredita do 48h
stranici kreditnih kalkulatora
Keš krediti
Period otplate
13 meseci
