Četvorosoban stan na prodaju, Vojvode Bogdana bb, 519.000€, 135m²
















- Stan u zgradi
- Centralno grejanje
- Renovirano
- Prostorije: kupatilo, toalet, terasa
- Opremljenost: Prazno - internet
- Uknjiženo
- Oglas oglašava agencija pod reg. brojem 5
- 1 garažno mesto, garaža u sklopu zgrade
- 2 parking mesta
- Tip interneta: kablovska
- Kablovska
- 1 telefonska linija
Opis oglasa
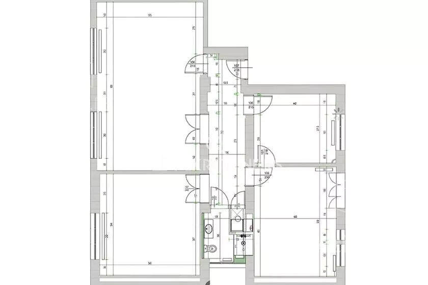
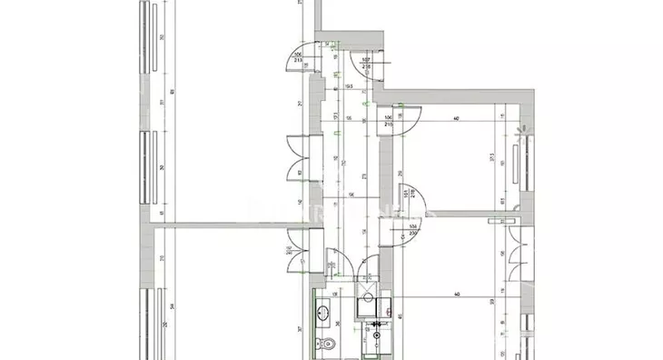
Prodaje se prostran salonski stan površine 135m², sa dva garažna mesta, smešten na prvom spratu u samom srcu Zvezdare, na svega nekoliko koraka od Vuka, u mirnoj i prestižnoj ulici Vojvode Bogdana. Stan je uknjižen kao dve stambene jedinice. Lokacija je izuzetna, spoj urbanog centra i tihe porodične atmosfere, sa kompletnom infrastrukturom na dohvat ruke.
Stan se nalazi u odlično održavanoj salonskoj zgradi sa reprezentativnim ulazom i dvorištem. Prostor odlikuju visoki plafoni od 3,2m, velike sobe pravilnih oblika i centralni hodnik koji daje savršenu funkcionalnost i prohodnost. Renoviranje je započeto, što je vidljivo na fotografijama, pa kupac i dalje može da utiče na završni raspored i uređenje, uključujući mogućnost formiranja dve potpuno odvojene stambene jedinice.
Zbog svoje strukture i ambijenta, stan je izuzetno pogodan i kao prestižan poslovni prostor koji nosi odličnu adresu i vrhunsku prezentaciju.
U dvorištu zgrade obezbeđena su dva parking mesta, uz dve pripadajuće ostave, što predstavlja dodatnu vrednost i retkost na ovoj lokaciji.
Moguće je da prodavac, uz dogovor sa budućim kupcem, u potpunosti završi započeto renoviranje prema željenoj dinamici i standardu.
Za više sličnih nekretnina pogledajte:
**https://www.divisnekretnine.rs/prodaja-stanova/beograd/zvezdara/kod-vuka
**https://www.divisnekretnine.rs/prodaja-stanova/beograd?salonski=true
Posrednička naknada se obračunava prema Opštim uslovima poslovanja agencije DIVIS NEKRETNINE DOO.
*Sačuvaj oglas uz belešku i primaj obaveštenja o njihovom pojeftinjenju ili pojavljivanju sličnih
Prikaz stana na mapi
Parkovi u blizini
- Park Ćirila i Metodija6 min
- Park Mike Oklopa11 min
- Park vojvode Petra Bojovića11 min

Obeležja kulture u blizini
- Spomenik Ćirilu i Metodiju4 min
- Spomenik Puškinu4 min
- Spomenik Vuku Karadžiću4 min

Škole/Fakulteti/Vrtići u blizini
- Osnovna škola (Osnovna škola Ivan Goran Kovačić)3 min
- Srednja škola (Srednja škola Arhimed)6 min
- Vrtić (Dečiji vrtić Adrijana)1 min
- Fakultet (Akademija poslovnih strukovnih studija Beograd)4 min

- Bolnica (Oftalmološka bolnica Revida)5 min
- Klinika (Poliklinika Vuk Prima)7 min
- Teretana (Fitness centar Oaza)2 min
- Prodavnica (Zlatiborski specijaliteti Suvat)1 min
- Restoran (Restoran Zapata)1 min
- Kafana (Pab Marshall)2 min
- Taksi stajalište (Taxi stanica)7 min
- Autobuska stanica (Vukov spomenik)5 min
- Tramvajska stanica (Dalmatinska)6 min
- Trolejbuska stanica (Podvožnjak)5 min
- Banka (Banca Intesa)4 min
- Pošta (Pošta Beograd 14)4 min
Kontakt oglašivača
Krediti OTP banke
Saznaj više
Prikazana rata odnosi se na maksimalni period otplate. Kalkulator je informativnog karaktera.
* Nakon isteka 5 godina, prelazi se na varijabilnu kamatnu stopu


