Trosoban stan na prodaju, Voždovac, 254.675€, 83m²










254.675 €
3.068 € / m2
- Stan u zgradi
- Novo
- Prostorije: terasa
- Opremljenost: Prazno - interfon
- Oglas oglašava agencija pod reg. brojem 1667
- 1 lift
- Zgrada poseduje: video nadzor
Opis oglasa
ID 882
Bez agencijske provizije - direktna cena od investitora. Pravni nadzor, izrada i overa kupoprodajnog ugovora obezbeđena.
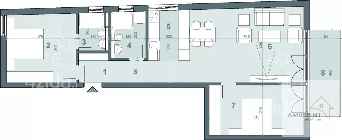
U ponudi trosoban stan, kvalitetna gradnja i moderan stil obezbeđuju sigurno i udobno mesto za dom iz vaših snova.
Stan nudi ulazni hodnik, dve velike spavaće sobe od kojih jedna ima izlaz na terasu a druga ima svoje kupatilo.
Izuzetno prostranu dnevnu sobu koja ima izlaz na terasu, trpezariju i odvojenu kuhinju.
Ono što je zanimljivo kod ovog stana je što postoji zid koji se po želji kupca može srušiti ili ostati kao pregradni zid.
U stanu su dva kupatila, opremljena sanitarnim elementima i granitnom keramikom renomiranog italijanskog proizvođača.
-U sklopu stolarije nalaze se roletne i komarnici, koji dodatno doprinose funkcionalnosti i udobnosti prostora, pružajući zaštitu od sunca i insekata.
-Blizina auto-puta, zdravstvenih ustanova, obrazovnih institucija, prodavnica, pijaca i lak pristup javnom prevozu rešavaju mnoge, svakodnevne izazove.
Ulaganjem u stan na ovoj lokaciji birate praktičnost, udobnost i sigurnost za vas i za vašu porodicu.
Cena je bez PDV-a, a povraćaj PDV-a imaju kupci prvog stana.
Broj u registru posrednika 1667.
Kontakt za više informacija ili dogovor oko razgledanja
064... (prikaži broj telefona)
.
*Sačuvaj oglas uz belešku i primaj obaveštenja o njihovom pojeftinjenju ili pojavljivanju sličnih
Prikaz stana na mapi
Parkovi u blizini
- Park Šumice9 min
- Bajronov park23 min
- Park mira Jelena Šantić24 min

Obeležja kulture u blizini
- Spomenik Franše Depereu5 min
- Kuća Flašar6 min
- Spomenik oslobodilaca Beograda 1806. godine6 min

Škole/Fakulteti/Vrtići u blizini
- Osnovna škola (Osnovna škola Miodrag Matić)5 min
- Srednja škola (Škola za negu lepote)5 min
- Vrtić (Dečiji vrtić Ciciban)11 min
- Fakultet (Univerzitet Singidunum)5 min

- Bolnica (Klinika za fizikalnu medicinu Saint James)4 min
- Klinika (Poliklinika Antamedica)5 min
- Teretana (Teretana Vožd Tim)3 min
- Prodavnica (Prodavnica Sunce)5 min
- Restoran (Restoran Stari bunar)3 min
- Kafana (Stara kafana Dušanovac)6 min
- Taksi stajalište (Taxi stanica)7 min
- Autobuska stanica (Dušanovac /Pošta)4 min
- Tramvajska stanica (Bože Jankovića)19 min
- Trolejbuska stanica (Kruševačka)15 min
- Banka (Raiffeisen Bank)5 min
- Pošta (Pošta Beograd 11)5 min
Kontakt oglašivača
Stambeni krediti

- Period otplate od
96 -360 meseca
- NKS 4.75%
EKS 5.74%
Fiksna kamatna stopa
- Bez troškova obrade kredita
stranici kreditnih kalkulatora
Keš krediti
Period otplate
13 meseci
