Dvoiposoban stan na prodaju, Veselina Masleše, 211.000€, 66m²




























211.000 €
3.197 € / m2
- Grejanje na toplotnu pumpu
- U izgradnji
- Prostorije: kuhinja, terasa
- Opremljenost: interfon, kanalizacija
- Orijentacija ka: jugoistok, jugozapad
- Oglas oglašava agencija pod reg. brojem 524
- 1 lift
- Kanalizacija
- Godina izgradnje: 2025.
Opis oglasa
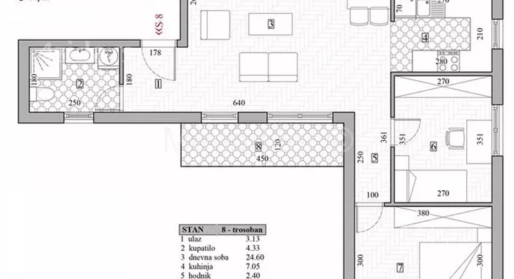
Prodajemo 2.5 stan od 66m2 sa terasom i mogućnošću kupovine garažnog mesta. Radi se o novogradnji, sa građevinskom dozvolom, planirani završetak radova je karajem 2025. godine. Zgrada ima 11 stanova i jedan nivo garažnih mesta ispod zemlje sa sistemom klackalica. Stan se nalazi na 4. spratu od 5, orjentisan prema dvorištu.
Sastoji se od ulaznog prostora, kupatila, dnevne sobe sa trpezarijom i kuhinje, dve spavaće sobe i terase. Cena stana je sa uračunatim PDV-om. Moguća je kupovina i garažnog mesta po ceni od 25000 evra.
Niski troškovi Infostana su pre svega zbog grejanja putem toplotnih pumpi. Zgrada i stan su dobro ušuškani sa termo-izolacijom od termo bloka i 10cm stiropora. Tokom gradnje su upotrebljeni vrhunski materijali, stolarija alu-drvo (troslojno staklo), troslojni parket (tarket parket), italijanska i španska keramika, električne roletne, odlične sanitarije, medijapan vrata visine 220cm i sigurnosna ulazna vrata.
Posebnost mikro-lokacije je odlična povezanost sa svim delovima grada putem velikog broja linija GSP, blizina škola, fakulteta, vrtića i ostale infrastrukture.
Javite se radi dodatnih informacija ili dogovora prezentacije stana.
Agent Slobodan Mamlić, tel.
064... (prikaži broj telefona)
, licenca broj 1318.
Agencijska provizija za kupca je 2% od dogovorene kupoprodajne cene.
*Sačuvaj oglas uz belešku i primaj obaveštenja o njihovom pojeftinjenju ili pojavljivanju sličnih
Prikaz stana na mapi
Parkovi u blizini
- Park Urbani džep7 min
- Park Šumice12 min
- Park mira Jelena Šantić19 min

Obeležja kulture u blizini
- Osnovna škola Kralj Petar II Karađorđević4 min
- Vozarev krst6 min
- Spomenik Petru Kočiću7 min

Škole/Fakulteti/Vrtići u blizini
- Osnovna škola (Specijalna osnovna škola Dušan Dugalić)5 min
- Srednja škola (Osma beogradska gimnazija)7 min
- Vrtić (Dečiji vrtić Azbukica)5 min
- Fakultet (Univerzitet u Beogradu Fakultet bezbednosti)4 min

- Bolnica (Specijalna bolnica za hemodijalizu Dragačevska Fresenus Medical Care)6 min
- Klinika (Poliklinika Sim Medical Team)11 min
- Teretana (Fitnes centar Next Step)5 min
- Prodavnica (Mini market Milka)manje od 1 min
- Restoran (Restoran Vilin K2)2 min
- Kafana (Pivnica JB)5 min
- Taksi stajalište (Auto taxi Ševarlić Dimitrije)5 min
- Autobuska stanica (Đerdapska)5 min
- Tramvajska stanica (Pijaca Zvezdara)18 min
- Trolejbuska stanica (Grčića Milenka)manje od 1 min
- Banka (Addiko Bank)9 min
- Pošta (Pošta Beograd 107)7 min
Kontakt oglašivača
Stambeni krediti

- Period otplate od
96 -360 meseca
- NKS 4.75%
EKS 5.74%
Fiksna kamatna stopa
- Bez troškova obrade kredita
stranici kreditnih kalkulatora
Keš krediti
Period otplate
13 meseci
