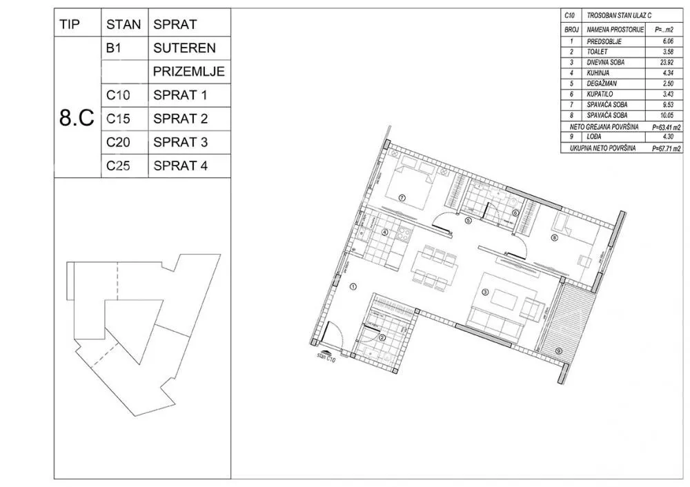
Trosoban stan na prodaju, Generala Đoke Popovića, 178.754€, 67m²












178.754 €
2.668 € / m2
Za ovaj oglas se neko interesovao. Pozovi ranije kako ne bi propustio priliku.
- Etažno grejanje
- Novo
- Prostorije: kupatila (2), terasa
- Opremljenost: Prazno - internet, interfon
- Oglas oglašava agencija pod reg. brojem 339
- 1 garažno mesto
- 1 parking mesto
- 1 lift
- Godina izgradnje: 2025.
- Kablovska
- 1 telefonska linija
Opis oglasa
Sigurna budućnost za vašu porodicu počinje u našem kompleksu.
Cena stanova je od 2400eur/m2+PDV.
Moderan stil gradnje, podređen porodičnom komforu. Na ušuškanoj lokaciji u kompleksu izuzetnog kvaliteta.
Pored kompleksa je parcela koja je namenjena izgradnji sportskih sadržaja i zelenila.
Uz objekat je predviđena izgradnja saobraćanice koja će taj deo grada povezivati sa autoputem.
Višespratna zgrada sa tri odvojena ulaza
Unutrašnje dvorište namenjeno odmoru, druženju i bezbednom dečjem boravku
Garaža i parking, obezbeđeni za sve stanare
Moderni materijali, kvalitetna izolacija i odlična funkcionalnost stanova.
Objekat se gradi klima blokom debljine 20cm, oblaže se kamenom vunom debljine 10cm sa završnim slojem fasade od fasadnog maltera.
Spoljna stolarija je aluminijumska sa termoprekidom, plastificirana spolja.
Sigurnosna vrata na svim stanovima tipa Bosal ili slično.
Keramika prve klase.
Višeslojni parket tipa tarket ili slično.
Etažno grejanje na struju, nezavisno za svaki stan.
Rok završetka 04.2027.
Veliki izbor različitih struktura.
Izaberite svoj dom na vreme.
Povraćaj PDV-a za kupce prvog stana.
Bez plaćanja provizije za kupce.
Agent: Nikola Franelić br. licence 505
Art nekretnine d.o.o. Beograd. Reg. br.339
011... (prikaži broj telefona)
069... (prikaži broj telefona)
.
*Sačuvaj oglas uz belešku i primaj obaveštenja o njihovom pojeftinjenju ili pojavljivanju sličnih
Prikaz stana na mapi
Parkovi u blizini
- Banjička šuma47 min
- Park Jove Ilića48 min

Obeležja kulture u blizini
- Rodna kuća vojvode Stepe Stepanovića12 min
- Stara mehana u Kumodražu14 min
- Pašina česma16 min

Škole/Fakulteti/Vrtići u blizini
- Osnovna škola (Osnovna škola Vladislav Petković Dis)11 min
- Srednja škola (Škola za negu lepote)13 min
- Vrtić (Dečiji vrtić Maza i Lunja)8 min
- Fakultet (Univerzitet u Beogradu Saobraćajni fakultet)12 min

- Bolnica (Opšta bolnica St Medica)12 min
- Klinika (Poliklinika Nera)13 min
- Teretana (Školica sporta Activity Centar)9 min
- Prodavnica (Shop&Go)9 min
- Restoran (Restoran Mediteranean Foods)9 min
- Kafana (Etno kafanica Bioskop)19 min
- Taksi stajalište (Taxi stanica)15 min
- Autobuska stanica (Mate Miloševića)8 min
- Tramvajska stanica (Saobraćajni Fakultet)37 min
- Trolejbuska stanica (Vojislava Ilića)26 min
- Banka (Banca Intesa)7 min
- Pošta (Pošta Beograd 156)13 min
Kontakt oglašivača
Za ovaj oglas se neko interesovao. Pozovi ranije kako ne bi propustio priliku.
Krediti OTP banke
Saznaj više
Prikazana rata odnosi se na maksimalni period otplate. Kalkulator je informativnog karaktera.
* Nakon isteka 5 godina, prelazi se na varijabilnu kamatnu stopu






















