Garsonjera na prodaju, Ristin Potok 4g, 65.758€, 30m²












65.758 €
2.192 € / m2
- Stan u zgradi
- Etažno grejanje
- U izgradnji
- Prostorije: kupatilo, ostava, terasa
- Opremljenost: Prazno - internet
- Orijentacija ka: jug
- Pogled na: dvorište
- Nije uknjiženo
- Kupovina direktno od vlasnika
- Garaža u sklopu zgrade
- 1 parking mesto
- 1 lift
- Godina izgradnje: 2027.
- Zgrada poseduje: dvorište
- Tip interneta: kablovska
- Kablovska
- Autobuske linije: Linija 38
- Trolejbuske linije: nema
- Tramvajske linije: nema
Opis oglasa
Luksuzna garsonjera, Veliki Mokri Lug,Beograd
Ova prelepa garsonjera nudi savrsenu ravnotezu izmedju modernog stila i udobnosti doma,idealna za stanovanje ili kao investicija.Nalazi se na adresi Ristin Potok 4g,pruzajuci vam udoban zivot u blizini svih pogodnosti.
Karakteristike stana
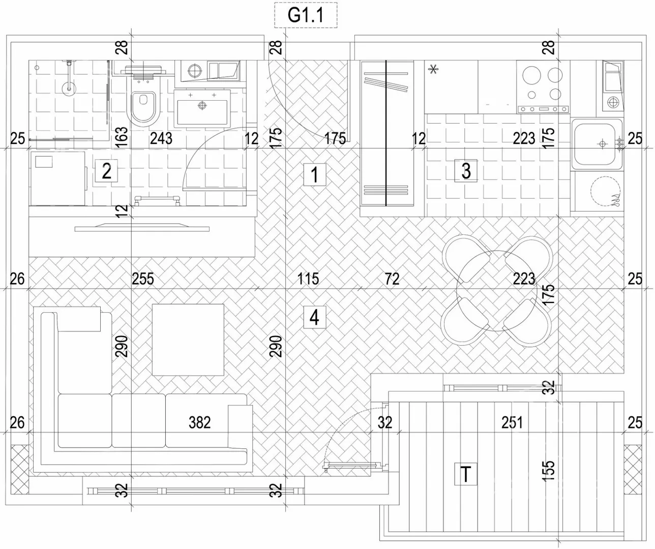
Stan se odlikuje prostranim dnevnim boravkom sa kuhinjom i trpezarijom,kupatilom i hodnikom,prijatnom osvetljenoscu i odlicnom organizacijom prostora,kvadrature 29,89m2.
Lokacija
Stan se nalazi u lepom i mirnom okruzenju Velikog Mokrog Luga.U blizini se nalaze prodavnice,restorani,skole i vrtici,a do centra Beograda se stize za oko 2o minuta.
Kvalitet gradnje i opremljenost
-Keramika
-PVC stolarija sa dvoslojnim staklima -odlicna zvucna i toplotna izolacija.
-Spoljni zidovi debljine 32cm sa vrhunskom termoizolacijom
-Blindirana vrata
-Etazno grejanje
Dodatne pogodnosti
Novogradnja sa modernim arhitektonskim rešenjima
Javni prevoz: linije 38,313, 70, 38L-stanica ’’Ristin potok’’ udaljena je 2minuta hoda
Obrazovanje: Vrtić ’’Dvorištance’’-4min vožnje automobilom, 16 min hodom
Vrtić ’’Maštalica’’ -2min vožnje automobilom, 7min hodom
Predškolska ustanova ’’M&M Elefantino’’-3min vožnje automobilom, 11min hodom
Osnovna škola ’’Vladislav Petković Dis’’- 4min vožnje automobilom, 22min hodom
Osnovna škola ’’Milan Đ.Milićevič’’-7min vožnje automobilom, 26min hodom
Trgovina: Shop&Go
Sport i rekreacija: Sport Center SOS (Fudbalski teren)
FK Omladinac 1961
Teniski tereni "Arsenal"
Stanje i cena
Prodaja direktno od investitora bez posrednicke provizije.Stan je u izgradnji a cena ove moderne garsonjere je 65758€. Ne propustite priliku da postanete vlasnik ovog elegantnog stana sa parkingom. Ako zelite da saznate vise,molimi vas da nas kontaktirate na telefon +38... (prikaži broj telefona)
*Sačuvaj oglas uz belešku i primaj obaveštenja o njihovom pojeftinjenju ili pojavljivanju sličnih
Prikaz stana na mapi
Obeležja kulture u blizini
- Rodna kuća vojvode Stepe Stepanovića8 min
- Kuća Flašar9 min
- Stara mehana u Kumodražu10 min

Škole/Fakulteti/Vrtići u blizini
- Osnovna škola (Osnovna škola Vladislav Petković Dis)5 min
- Srednja škola (Škola za negu lepote)8 min
- Vrtić (Dečiji vrtić Dvorištance)11 min
- Fakultet (Univerzitet Singidunum)8 min

- Bolnica (Specijalna bolnica za cerebralnu paralizu i razvojnu neurologiju)9 min
- Klinika (Poliklinika Equilibrium)9 min
- Teretana (Školica sporta Activity Centar)17 min
- Prodavnica (Shop&Go)6 min
- Restoran (Restoran North 44)9 min
- Kafana (British Pub Rocks)20 min
- Taksi stajalište (Taxi stanica)26 min
- Autobuska stanica (Ristin Potok)2 min
- Tramvajska stanica (Ustanička)34 min
- Trolejbuska stanica (Medaković 3)19 min
- Banka (Eurobank Direktna)7 min
- Pošta (Pošta Beograd 56)11 min
Kontakt oglašivača

Stambeni krediti

- Period otplate od
96 -360 meseca
- NKS 4.75%
EKS 5.74%
Fiksna kamatna stopa
- Bez troškova obrade kredita
stranici kreditnih kalkulatora
Keš krediti
Period otplate
13 meseci