Jednoiposoban stan na prodaju, Tutunović Podrum, 54.000€, 27m²












54.000 €
2.000 € / m2
- Stan u zgradi
- Grejanje na klimu
- U izgradnji
- Prostorije: kupatilo, ostava
- Opremljenost: Prazno - klima
- U procesu uknjižavanja
- Oglas oglašava agencija pod reg. brojem 1106
- 1 parking mesto, parking u dvorištu zgrade, javni parking van zone
- 1 lift
- Godina izgradnje: 2026.
Opis oglasa
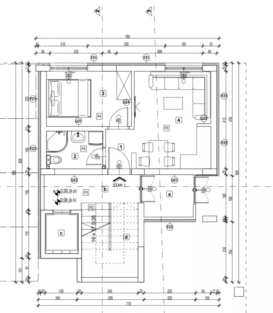
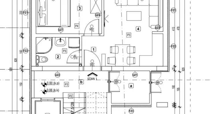
U prilici smo da vam ponudimo na prodaju stan u novogradnji na teritiruji GO Palilula, u blizini "Tutunović podruma" (Kule). Po strukturi jednoiposoban, projektovane kvadrature 27m2, nalazi se na prizemlju manje stambene zgrade sa liftom. Sastoji se iz ulaznog hodnika, kupatila, dnevne sobe sa kuhinjom i trpezarijom i spavaće sobe. Spoljna stolarija je PVC, renomiranog proizvođača "REHAU", podovi su obloženi parketom i keramikom, grejanje je na inverter klime ili etažno (postavljena instalacija za etažno grejanje ulazi u cenu). Stanu pripada i odgovarajuća ostava u podrumu zgrade.
Cena parking mesta u dvorištu zgrade iznosi 6.000 evra.
Stan je moguće kupiti i putem stambenog kredita uz minimalno učešće od 50%.
Projektovani rok završetka radova je Oktobar 2026 godine.
Za sve dodatne informacije pozovite na 060... (prikaži broj telefona)
*Sačuvaj oglas uz belešku i primaj obaveštenja o njihovom pojeftinjenju ili pojavljivanju sličnih
Prikaz stana na mapi
Parkovi u blizini
- Park Čair21 min
- Spomen park Bubanj25 min
- Park heroja NOB-a25 min

Obeležja kulture u blizini
- Vladičanski dvor4 min
- Donina česma5 min
- Spomenik Stevanu Sremcu i Kalči7 min

Škole/Fakulteti/Vrtići u blizini
- Osnovna škola (Osnovna škola Kole Rašić)6 min
- Srednja škola (Gimnazija Svetozar Marković)5 min
- Vrtić (Dečiji centar Bambini)4 min
- Fakultet (Univerzitet u Nišu Fakultet zaštite na radu)5 min

- Bolnica (Urgentni centar Niš)10 min
- Klinika (Poliklinika Longa Vita)5 min
- Teretana (Gym Town 1)5 min
- Prodavnica (Leon diskont)8 min
- Restoran (Restoran Gral)6 min
- Kafana (Pivnica Nemir)14 min
- Taksi stajalište (Bros Taxi Niš)15 min
- Autobuska stanica (Stanoja Bunuševca)5 min
- Banka (NLB Komercijalna banka)5 min
- Pošta (Pošta Niš 5)4 min
Kontakt oglašivača
Stambeni krediti
- Period otplate od
96 -360 meseca
- NKS 4.75%
EKS 5.74%
Fiksna kamatna stopa
- Bez troškova obrade kredita
- Period otplate od
96 -360 meseca
- NKS 4.34%
Kombinovana kamatna stopa
- Bez troškova obrade kredita
- Odobrenje kredita do 48h
stranici kreditnih kalkulatora
Keš krediti
Period otplate
13 meseci
