Jednoiposoban stan na prodaju, Marina Držića, 53.240€, 30m²
















53.240 €
1.775 € / m2
- Grejanje na struju
- U izgradnji
- Prostorije: kupatilo
- Opremljenost: internet, interfon, klima
- Oglas oglašava agencija pod reg. brojem 1487
- 1 parking mesto
- 1 lift
- Zgrada poseduje: prilaz za invalide
- Kablovska
Opis oglasa
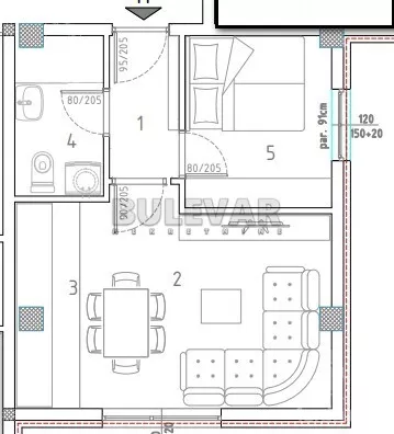
Na prodaju stan u izgradnji u stambenoj zgradi PO+PR+3, sa 14 stambenih jedinica. Zgrada se nalazi u mirnoj ulici na Trošarini u blizini osnovne škole, obdaništa, PMF-a, Bogoslovije... Odlična investicija, kako za stanovanje, tako i za izdavanje. Stan je po strukturi jednoiposoban , površine 30,42 m2. Sastoji se od hodnika, dnevne sobe sa kuhinjom i trpezarijom, spavaće sobe i kupatila. Stan se nalazi na trećem spratu zgrade sa liftom. Na podovima je parket, u kuhinji i kupatilu kvalitetna keramika, PVC stolarija sa roletnama, grejanje i hlađenje inverter klimama. Završetak radova predviđen je za 01.10.2026. godine. Parking mesta u dvorištu i podzemnoj garaži se naknadno naplaćuju. Objekat je u fazi rekonstrukcije i izgradnje, tako da će pojedine stambene jedinice imati određeni procenat povraćaja PDV-a za kupce prvog stana. Ovo je samo deo naše ponude, za više informacija javite se i posetite naš sajt.
*Sačuvaj oglas uz belešku i primaj obaveštenja o njihovom pojeftinjenju ili pojavljivanju sličnih
Prikaz stana na mapi
Parkovi u blizini
- Park Svetog Save35 min
- Park složnih komšija39 min
- Park Čair42 min

Obeležja kulture u blizini
- Ćele kula10 min
- Zgrada Pasterovog zavoda12 min
- Vladičanski dvor13 min

Škole/Fakulteti/Vrtići u blizini
- Osnovna škola (Osnovna škola Branko Miljković)5 min
- Srednja škola (Bogoslovija Svetih Ćirila i Metodija)9 min
- Vrtić (Dečiji centar Eci peci pec)9 min
- Fakultet (Univerzitet u Nišu Prirodno matematički fakultet)7 min

- Bolnica (Urgentni centar Niš)11 min
- Klinika (Poliklinika za laboratorijsku dijagnostiku Neolab)10 min
- Teretana (Strongman fitness center)12 min
- Prodavnica (IDEA)9 min
- Restoran (Etno restoran Dagi plus)12 min
- Kafana (Kafana Dva jarana)32 min
- Taksi stajalište (Duga taksi)40 min
- Autobuska stanica (Delijski vis)manje od 1 min
- Banka (OTP banka)11 min
- Pošta (Pošta Niš 11)10 min
Kontakt oglašivača

Stambeni krediti
- Period otplate od
96 -360 meseca
- NKS 4.50%
EKS 5.74%
Fiksna kamatna stopa
- Bez troškova obrade kredita
- Period otplate od
96 -360 meseca
- NKS 4.34%
Kombinovana kamatna stopa
- Bez troškova obrade kredita
- Odobrenje kredita do 48h
stranici kreditnih kalkulatora
Keš krediti
Period otplate
13 meseci



















