Četvorosoban stan na prodaju, Telep, 350.000€, 116m²


350.000 €
3.017 € / m2
- Stan u zgradi
- Grejanje na gas
- Uobičajeno stanje
- Prostorije: terasa
- Opremljenost: internet, interfon
- Oglas oglašava agencija pod reg. brojem 1949
- 1 lift
- Godina izgradnje: 2026.
- Kablovska
Opis oglasa
NEKRETNINE NOVI SAD - ID 1002965
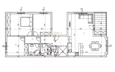
TELEP, ČETVOROSOBAN, 116m2
LEVEL PROPERTY, agencija za nekretnine Vam predstavlja fantastičan četvorosoban stan u izuzetnoj zgradi, koja je useljiva za nekih 15 dana, trenutno se izvode završni radovi. Prelep raspored, dva kupatila, prostrana terasa i svaka prostorija komforna. Uz stan se dobija i garaža u suterenu zgrade od 23m2 + parking mesto u dvorištu zgrade. Cena je sa PDV-om. Ukratko, ukoliko ste u potražnji za pravim porodičnim stanom na fantastičnoj lokaciji, urbano a opet zavučeno od buke i saobraćaja, ovo je stan za Vas. Za više informacija i gledanje pozovite.
Poštovani klijenti, u skladu sa Zakonom o posredovanju u prometu i zakupu nepokretnosti i Opštim uslovima poslovanja posrednika, prezentacija i razgledanje predmetne nepokretnosti kao i svih nekretnina iz agencijske ponude, moguće je samo uz potpisan Ugovor o posredovanju. Kupac je u obavezi da, u slučaju zaključenja kupoprodaje, isplati posredniku ugovorenu posredničku naknadu- agencijsku proviziju u ugovorenom iznosu, a u skladu sa Ugovorom o posredovanju. Vaš agent za nekretnine: Aleksandra Čavić, licenca broj 1329, mob: 069... (prikaži broj telefona) .Vaša agencija za nekretnine LEVEL PROPERTY, registar posrednika broj 1949, Novi Sad, Dimitrija Tucovića 1, lokal broj 3, tel: 021... (prikaži broj telefona) .
*Sačuvaj oglas uz belešku i primaj obaveštenja o njihovom pojeftinjenju ili pojavljivanju sličnih
Prikaz stana na mapi
Parkovi u blizini
- Park Bistrica27 min
- Futoški park31 min
- Limanski park35 min

Obeležja kulture u blizini
- Jodna Banja12 min
- Dvorac Eđšeg13 min
- Kuća iz 1797. godine18 min

Škole/Fakulteti/Vrtići u blizini
- Osnovna škola (Osnovna škola Jožef Atila)9 min
- Srednja škola (Gimnazija Laza Kostić)5 min
- Vrtić (Dečiji vrtić Zemlja čuda)6 min
- Fakultet (Protestantski teološki fakultet)7 min

- Bolnica (Ginekološka bolnica Ferona)2 min
- Klinika (Poliklinika Consilium)12 min
- Teretana (EMS Studio Maxifit)5 min
- Prodavnica (Lole dućan)5 min
- Restoran (Caffe restoran Rosetto)7 min
- Kafana (Atos pub)5 min
- Taksi stajalište (Taxi prevoz Novi Sad)18 min
- Autobuska stanica (Feješ Klare - Pravoslavna crkva)3 min
- Banka (Erste Bank Ekspres ekspozitura)6 min
- Pošta (Pošta Novi Sad 21124)7 min
Kontakt oglašivača
Krediti OTP banke
Saznaj više
Prikazana rata odnosi se na maksimalni period otplate. Kalkulator je informativnog karaktera.
* Nakon isteka 5 godina, prelazi se na varijabilnu kamatnu stopu






















