Jednosoban stan na prodaju, Bulevar Svetog Pantelejmona, 63.750€, 38m²


















63.750 €
1.678 € / m2
- Stan u zgradi
- Grejanje na klimu
- Novo
- Prostorije: kupatilo, toalet, terasa
- Opremljenost: Prazno - internet, ventilacija
- Pogled na: ulicu, dvorište
- U procesu uknjižavanja
- Oglas oglašava agencija pod reg. brojem 691
- Garaža u sklopu zgrade
- Parking u dvorištu zgrade, javni parking van zone
- 3 lifta
- Godina izgradnje: 2025.
- Zgrada poseduje: prilaz za invalide, dvorište, podrum, ventilacija, video nadzor
- Tip interneta: optički
- Kablovska
- 1 telefonska linija
- Autobuske linije: 1
Opis oglasa
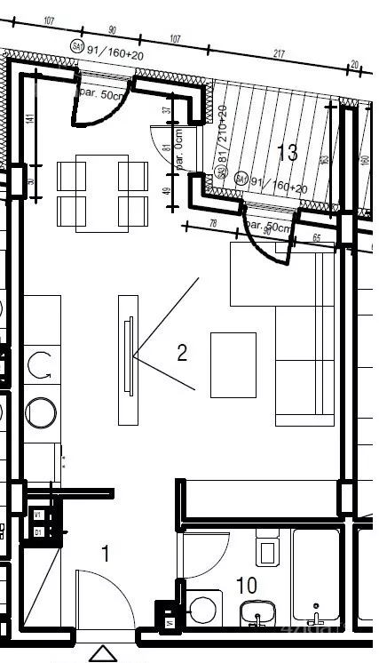
Novogradnja Pantelej, stanovi strukture od 1 sobnih do 3.5 sobnih u IZGRADNjI na Panteleju, Somborski Bulevar. Stanovi raznih kvadratura od 37m2, do 74m2. Zgrada kvalitetne izrade, kako stanova, tako i celokupnog objekta, zgrada sa dva lifta. Na podu je banbusov parket, pvc stolarija, ariston bojleri u kupatilu. Projektovani Stanovi odlicnog rasporeda, sa komfornim hodnikom iz koga se ide zasebno u sve prostorije, veliki dnevni boravak sa kuhinjom i trpezarijom, u hodniku kupatilo i wc sa granitnom keramikom 120x60, sa jednom, dve ili tri spavace sobe.
Cena stanova je od 1700 evra po m2 sa PDV-om, za sve koji imaju pravo na povracaj PDV-a, isti se vraca 10 % od cene stana
Zgrada sa urednom dokumentacijom, tako da je moguca kupovina kako za kes, tako i za kredit, zavrsetak radova kraj 2025 godine
Za sve informacije stojimo vam na raspolaganju. tel: +38... (prikaži broj telefona) ; 060... (prikaži broj telefona)
Agencija DTS nekretnine je upisana u registru posrednika pod brojem 691
*Sačuvaj oglas uz belešku i primaj obaveštenja o njihovom pojeftinjenju ili pojavljivanju sličnih
Prikaz stana na mapi
Parkovi u blizini
- Park Svetog Save24 min
- Park složnih komšija26 min
- Park heroja NOB-a30 min

Obeležja kulture u blizini
- Ranohrišćanska bazilika5 min
- Zgrada Oficirskog doma8 min
- Ranohrišćanska grobnica16 min

Škole/Fakulteti/Vrtići u blizini
- Osnovna škola (Osnovna škola Stefan Nemanja)4 min
- Srednja škola (Gimnazija 9. maj)8 min
- Vrtić (Dečiji vrtić Mazza)6 min
- Fakultet (Fakultet za pravne i poslovne studije Dr Lazar Vrkatić)8 min

- Bolnica (Bolnica Đorić)9 min
- Klinika (Family Medica poliklinika)5 min
- Teretana (Fitness centar Universum)4 min
- Prodavnica (Market Cap Cap)8 min
- Restoran (Restoran President Lux)9 min
- Kafana (Kafana Stari ambar)10 min
- Taksi stajalište (Cool taksi)21 min
- Autobuska stanica (Vase Pelagića)4 min
- Banka (Eurobank Direktna)6 min
- Pošta (Pošta Niš 3)8 min
Kontakt oglašivača

Stambeni krediti

- Period otplate od
96 -360 meseca
- NKS 4.75%
EKS 5.74%
Fiksna kamatna stopa
- Bez troškova obrade kredita
Za iznos kredita preko 300000 € poseti sajt banke.
Saznaj višestranici kreditnih kalkulatora
Keš krediti
Period otplate
13 meseci