Dvoiposoban stan na prodaju, Somborska, 105.450€, 57m²






105.450 €
1.850 € / m2
- Stan u zgradi
- Etažno grejanje
- U izgradnji
- Prostorije: kupatilo, terasa
- Uknjiženo
- Oglas oglašava agencija pod reg. brojem 1574
- 1 lift
Opis oglasa
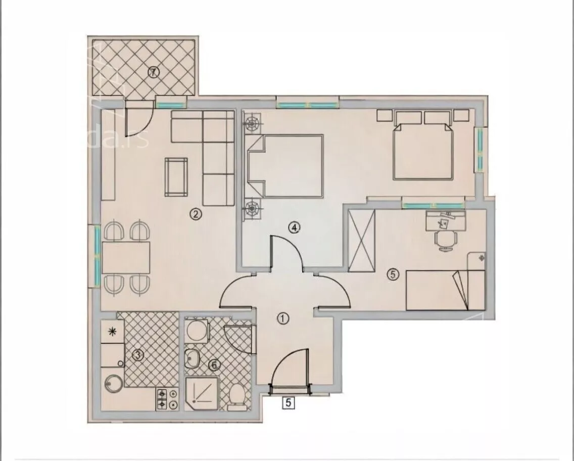
***** Pantelej – dvoiposoban stan u novogradnji, 57,45 m² *****
Na prodaju dvoiposoban stan u kvalitetnoj novogradnji na atraktivnoj lokaciji u naselju Pantelej. Stan se nalazi na četvrtom spratu i odlikuje se funkcionalnim rasporedom, dobrom osvetljenošću i modernim dizajnom.
Ukupna površina stana iznosi 57,45 m², što ga čini idealnim za porodično stanovanje ili kao sigurnu investiciju za izdavanje.
Stan poseduje etažno grejanje, koje omogućava potpunu kontrolu potrošnje i niže mesečne troškove.
Cena stana iznosi 1.850 €/m². Postoji mogućnost kupovine parking mesta po ceni od 4.000 €.
Rok završetka gradnje je jun 2026. godine.
Postoji mogućnost povraćaja PDV-a .
Mirna lokacija, dobra povezanost sa ostatkom grada i blizina svih neophodnih sadržaja čine ovu ponudu odličnom prilikom.
📞 Za više informacija i dogovor oko gledanja stana, kontaktirajte nas.
Mi smo tim Residence nekretnine, vaš partner u pronalaženju savršenog doma. Pružamo vam sveobuhvatnu podršku advokata i garantujemo prisustvo prilikom overe ugovora kod javnog beležnika. Pozovite nas već danas na navedene brojeve telefona kako biste saznali više o lokaciji ili samoj nekretnini. Spremni smo da se prilagodimo vašem rasporedu, bilo da želite obilazak tokom radnih dana ili vikendom.
Pored ovog projekta u našoj ponudi imamo veliki broj stanova u novogradnji i starogradnji širom grada.
Za više informacija budite slobodni da nas nazovete na sledeće brojeve telefona, biće nam zadovoljstvo da učestvujemo u pronalaženju idealnog doma za Vas.
065... (prikaži broj telefona)
065... (prikaži broj telefona)
Residence Nekretnine
Broj u registru posrednika : 1574
*Sačuvaj oglas uz belešku i primaj obaveštenja o njihovom pojeftinjenju ili pojavljivanju sličnih
Prikaz stana na mapi
Parkovi u blizini
- Park heroja NOB-a27 min
- Park složnih komšija29 min
- Park Svetog Save32 min

Obeležja kulture u blizini
- Ranohrišćanska bazilika4 min
- Zgrada Oficirskog doma8 min
- Ranohrišćanska grobnica13 min

Škole/Fakulteti/Vrtići u blizini
- Osnovna škola (Osnovna škola Stefan Nemanja)13 min
- Srednja škola (Gimnazija 9. maj)7 min
- Vrtić (Dečiji vrtić Meca Dobrica)6 min
- Fakultet (Fakultet za pravne i poslovne studije Dr Lazar Vrkatić)7 min

- Bolnica (Bolnica Đorić)9 min
- Klinika (Family Medica poliklinika)5 min
- Teretana (Fitness centar Universum)14 min
- Prodavnica (IDEA)7 min
- Restoran (Restoran Nikolić)13 min
- Kafana (Kafana Stari ambar)23 min
- Taksi stajalište (Cool taksi)18 min
- Autobuska stanica (Pantelej raskrsnica)7 min
- Banka (Eurobank Direktna)5 min
- Pošta (Pošta Niš 3)7 min
Kontakt oglašivača
Krediti OTP banke
Saznaj više
Prikazana rata odnosi se na maksimalni period otplate. Kalkulator je informativnog karaktera.
* Nakon isteka 5 godina, prelazi se na varijabilnu kamatnu stopu


