Dvoiposoban stan na prodaju, Somborska, 93.000€, 56m²






93.000 €
1.661 € / m2
- Stan u zgradi
- Novo
- Prostorije: terasa
- Oglas oglašava agencija pod reg. brojem 1596
- 1 parking mesto
- 1 lift
Opis oglasa
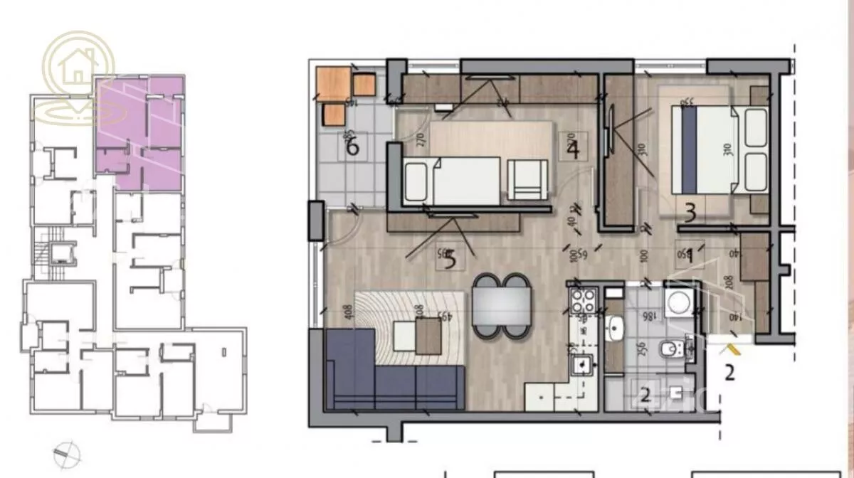
Na prodaju moderan dvosoban stan na Panteleju, u kvalitetnoj novogradnji. Stan ima odličan raspored: hodnik, dečiju sobu, spavaću sobu, kupatilo, prostran dnevni boravak sa trpezarijom, odvojenu kuhinju i balkon.
Ukupna površina stana je 56,4m² + balkon
Završna obrada: višeslojni parket, kvalitetna keramika, moderno uređena kupatila.
Zgrada je na odličnoj lokaciji, u mirnom delu naselja, a stan se odlikuje funkcionalnošću i prijatnim rasporedom prostorija — idealan za porodice i parove.
Rok završetka radova: kraj 2026.
Kupovina moguća jedino gotovinski.
*Sačuvaj oglas uz belešku i primaj obaveštenja o njihovom pojeftinjenju ili pojavljivanju sličnih
Prikaz stana na mapi
Kontakt oglašivača
Krediti OTP banke
Saznaj više
Prikazana rata odnosi se na maksimalni period otplate. Kalkulator je informativnog karaktera.
* Nakon isteka 5 godina, prelazi se na varijabilnu kamatnu stopu


