Dvoiposoban stan na prodaju, Somborska, 93.000€, 56m²






93.000 €
1.661 € / m2
- Stan u zgradi
- Novo
- Prostorije: terasa
- Oglas oglašava agencija pod reg. brojem 1596
- 1 parking mesto
- 1 lift
Opis oglasa
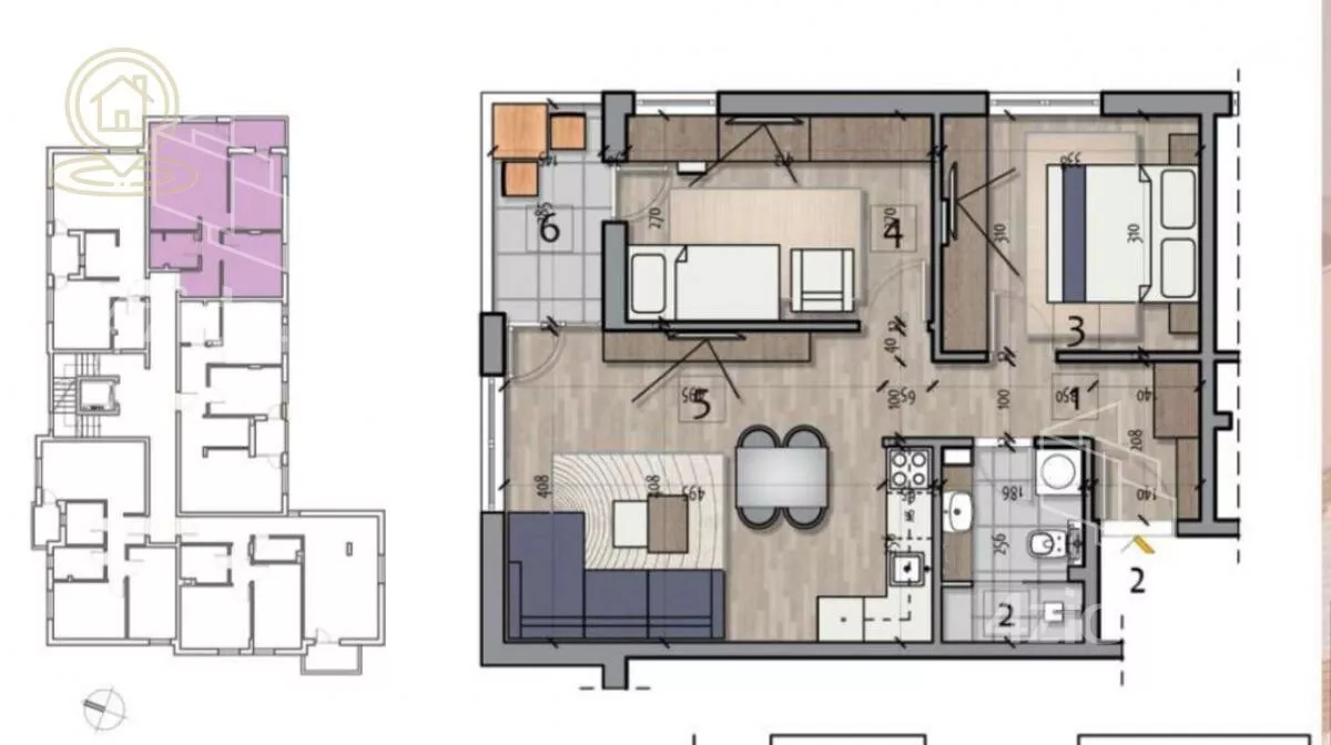
Na prodaju moderan dvosoban stan na Panteleju, u kvalitetnoj novogradnji. Stan ima odličan raspored: hodnik, dečiju sobu, spavaću sobu, kupatilo, prostran dnevni boravak sa trpezarijom, odvojenu kuhinju i balkon.
Ukupna površina stana je 56,4m² + balkon
Završna obrada: višeslojni parket, kvalitetna keramika, moderno uređena kupatila.
Zgrada je na odličnoj lokaciji, u mirnom delu naselja, a stan se odlikuje funkcionalnošću i prijatnim rasporedom prostorija — idealan za porodice i parove.
Rok završetka radova: kraj 2026.
Kupovina moguća jedino gotovinski.
*Sačuvaj oglas uz belešku i primaj obaveštenja o njihovom pojeftinjenju ili pojavljivanju sličnih
Prikaz stana na mapi
Parkovi u blizini
- Park Svetog Save27 min
- Park složnih komšija28 min
- Park heroja NOB-a36 min

Obeležja kulture u blizini
- Ranohrišćanska grobnica5 min
- Ranohrišćanska bazilika7 min
- Zgrada Oficirskog doma10 min

Škole/Fakulteti/Vrtići u blizini
- Osnovna škola (Osnovna škola Čegar)5 min
- Srednja škola (Gimnazija 9. maj)9 min
- Vrtić (Dečiji vrtić Mazza)6 min
- Fakultet (Fakultet za pravne i poslovne studije Dr Lazar Vrkatić)9 min

- Bolnica (Bolnica Đorić)5 min
- Klinika (Family Medica poliklinika)1 min
- Teretana (Teretana Šuki)4 min
- Prodavnica (Maxi Supermarket)1 min
- Restoran (Restoran President Lux)2 min
- Kafana (Kafana Stari ambar)12 min
- Taksi stajalište (Duga taksi)25 min
- Autobuska stanica (Studenička)1 min
- Banka (Poštanska štedionica)4 min
- Pošta (Pošta Niš 3)4 min
Kontakt oglašivača
Krediti OTP banke
Saznaj više
Prikazana rata odnosi se na maksimalni period otplate. Kalkulator je informativnog karaktera.
* Nakon isteka 5 godina, prelazi se na varijabilnu kamatnu stopu


