Devetosoban stan na prodaju, KNEZ MIHAILOVA, 1.200.000€, 205m²






































1.200.000 €
5.854 € / m2
- Stan u zgradi
- Centralno grejanje
- Oglas oglašava agencija pod reg. brojem 109
- 1 lift
Opis oglasa
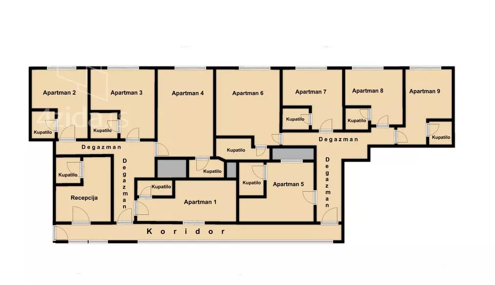
Predstavljamo vam ekskluzivnu ponudu na najprestiznijoj poziciji u Beogradu. Investicija kakva se retko pojavljuje na trzistu. Devet moderno opremljenih apartmana(sedam koji su orijentisani ka Obilicevom vencu i Knez Mihailovoj ulici sa recepcijom u srcu prestonice, sa razradjenim biznis modelom, idealnim za izdavanje „na dan“ ili transformaciju u butique hotel. Premium mikrolokacija, ambijent kroz koji se prozimaju istorijska, kulturna, turisticka i poslovna desavanja, kao i broj smestajnih jedinica, ovoj nekretnini omogucavaju visok povrat investicije(ROI i kontinuirano popunjene kapacitete. Nepokretnost je upisana kao dve stambene jedinice, uknjizene povrsine 180m2(bez tereta i zabelezbi), a ukupne cca 205m2 - sa pristupnom terasom koja je pripojena grejnoj povrsini. Prostor je kompletno renoviran i prilagodjen sadasnjoj poslovno-investicionoj nameni. Objekat sadrzi devet klimatizovanih apartmana sa sopstvenim kupatilima(16-28m2), pristupne degazmane, opremljenu recepciju i centralni koridor iz koga se pristupa svim smestajnim jedinicama. Apartmani su kompletno opremljeni kvalitetnim komadnim namestajem i pratecom opremom. Izdvajamo Bosal vrata, karticni prilaz/pin pad, termo i zvucnu izolaciju na najvisem nivou, sanitarije renomiranih proizvodjaca, protivpozarne detektore i zastitu, video nadzor. Kreveti u svakoj jedinici su „custom made“ sa Serta dusecima(nivo Hilton hotela). Dodatne pogodnosti su izvedena struja za rasvetu na spoljnoj fasadi I eksterni izvori vodosnabdevanja. Monumentalno zdanje, poznato kao „Ruski car“, delo je srpskih arhitekata Petra Popovica i Dragise Brasovana(gradjeno od 1922.-1926.godine). Predstavlja pravo remek delo medjuratne epohe Beograda i jedan je od simbola glavnog grada. Kupovinom ovakve nekretnine ne osigurava se samo prilika za lukrativnu investiciju, vec se ostvaruje i mogucnost aktivnog ocuvanja vrednog dela istorijskog nasledja. Preporuka.
*Sačuvaj oglas uz belešku i primaj obaveštenja o njihovom pojeftinjenju ili pojavljivanju sličnih
Prikaz stana na mapi
Parkovi u blizini
- Park Vojvode Vuka4 min
- Univerzitetski park6 min
- Terazijska terasa6 min

Obeležja kulture u blizini
- Spomenik knezu Mihailu Obrenoviću3 min
- Narodno pozorište Beograd3 min
- Spomenik Petru Petroviću Njegošu4 min

Škole/Fakulteti/Vrtići u blizini
- Osnovna škola (Osnovna škola Mihailo Petrović Alas)6 min
- Srednja škola (Srednja škola za ekonomiju, pravo i administraciju EPA)5 min
- Vrtić (Dečiji vrtić Majski cvet)3 min
- Fakultet (Univerzitet u Beogradu Filozofski fakultet)3 min

- Bolnica (Specijalna bolnica Sveti vid)5 min
- Klinika (Poliklinika Endo Top)6 min
- Teretana (Balance Life Studio)5 min
- Prodavnica (Maxi Supermarket)1 min
- Restoran (Tortilla Casa Mexican Grill)1 min
- Kafana (Irish pub Gecko)1 min
- Taksi stajalište (Taxi stanica)4 min
- Autobuska stanica (Obilićev venac)1 min
- Tramvajska stanica (Dorćol /Kneginje Ljubice/)11 min
- Trolejbuska stanica (Trg republike)2 min
- Banka (Poštanska štedionica)3 min
- Pošta (Pošta Beograd 3)3 min
Kontakt oglašivača
Krediti OTP banke
Saznaj više
Prikazana rata odnosi se na maksimalni period otplate. Kalkulator je informativnog karaktera.
* Nakon isteka 5 godina, prelazi se na varijabilnu kamatnu stopu


