Troiposoban stan na prodaju, Pantelej, 137.600€, 76m²
















137.600 €
1.811 € / m2
- Etažno grejanje
- Novo
- Prostorije: kupatilo, terasa
- Oglas oglašava agencija pod reg. brojem 940
- 1 lift
- 1 telefonska linija
Opis oglasa
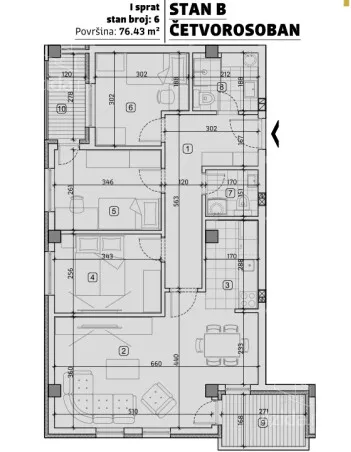
U ponudi je moderna novogradnja smeštena u mirnijem delu Pantelja koja ispunjava sve zahteve energetske efikasnosti i prilagođena je savremenom načinu života jedne porodice. Prodaje se troiposoban stan površine 76,43m2, na I spratu stambene zgrade sa liftom. Struktura stana: ulazni hodnik, dnenvni boravak sa kuhinjom i trpezarijom, tri spavaće sobe, kupatila i terase. U gradnji se koriste visokokvalitetni materijali: Spoljni zidovi od energetskog bloka sa termoizolacijom 12 cm, zidovi izmedju stanova od bloka debljine 25cm, Demit fasada, kombinacija boja sa upuštenim lajsnama koje definišu strukturnu podelu fasade, PVC stolarija u kombinaciji bela/antracit (unutra/spolja) sa ALU roletnama u antracit boji, inverter klima uređaj, zidana terasa sa ukrasnim metalnim rukohvatom u antracit boji, bukov parket na podovima, konzolne WC šolje sa ugradnim vodokotlićima (tipa Geberit), Walk-in tuš kabina sa linijskim slivnikom i staklenim paravanom, keramika u hodnicima, protivklizna keramika na terasama. Postoji mogućnost kupovine parking mesta. Predviđeno je uređenje slobodnih i zelenih površina unutar kompleksa a na svega 5-10 minuta hodom, stanari će imati pristup svim sadržajima koji čine moderan način života ( prodavnice, marketi, kafići, vrtić). U cenu je uključen PDV i kupci prvog stana imaju pravo na povraćaj PDV-a u iznosu od 10%.Hvala Vam što ste pogledali oglas. Za više informacija o ovoj ili drugim nekretninama i zakazivanje razgledanja kontaktirajte agenta na broj telefona iz oglasa (poziv, sms, viber) ili putem e-maila. Kompletnu ponudu dostupnih nekretnina možete pronaći na našem sajtu. Agencija Proagent nekretnine je upisana u Registru posrednika pod brojem: 940.
*Sačuvaj oglas uz belešku i primaj obaveštenja o njihovom pojeftinjenju ili pojavljivanju sličnih
Prikaz stana na mapi
Parkovi u blizini
- Park Svetog Save22 min
- Park složnih komšija24 min
- Park heroja NOB-a31 min

Obeležja kulture u blizini
- Ranohrišćanska grobnica6 min
- Ranohrišćanska bazilika7 min
- Zgrada Oficirskog doma10 min

Škole/Fakulteti/Vrtići u blizini
- Osnovna škola (Osnovna škola Njegoš)5 min
- Srednja škola (Gimnazija 9. maj)10 min
- Vrtić (Dečiji vrtić Meca Dobrica)9 min
- Fakultet (Fakultet za pravne i poslovne studije Dr Lazar Vrkatić)8 min

- Bolnica (Bolnica Đorić)7 min
- Klinika (Family Medica poliklinika)13 min
- Teretana (Teretana Šuki)4 min
- Prodavnica (Tis market 20)7 min
- Restoran (Restoran Nikolić)12 min
- Kafana (Kafana Stari ambar)7 min
- Taksi stajalište (Duga taksi)20 min
- Autobuska stanica (Bojnička)7 min
- Banka (Poštanska štedionica)4 min
- Pošta (Pošta Niš 3)10 min
Kontakt oglašivača
Krediti OTP banke
Saznaj više
Prikazana rata odnosi se na maksimalni period otplate. Kalkulator je informativnog karaktera.
* Nakon isteka 5 godina, prelazi se na varijabilnu kamatnu stopu


