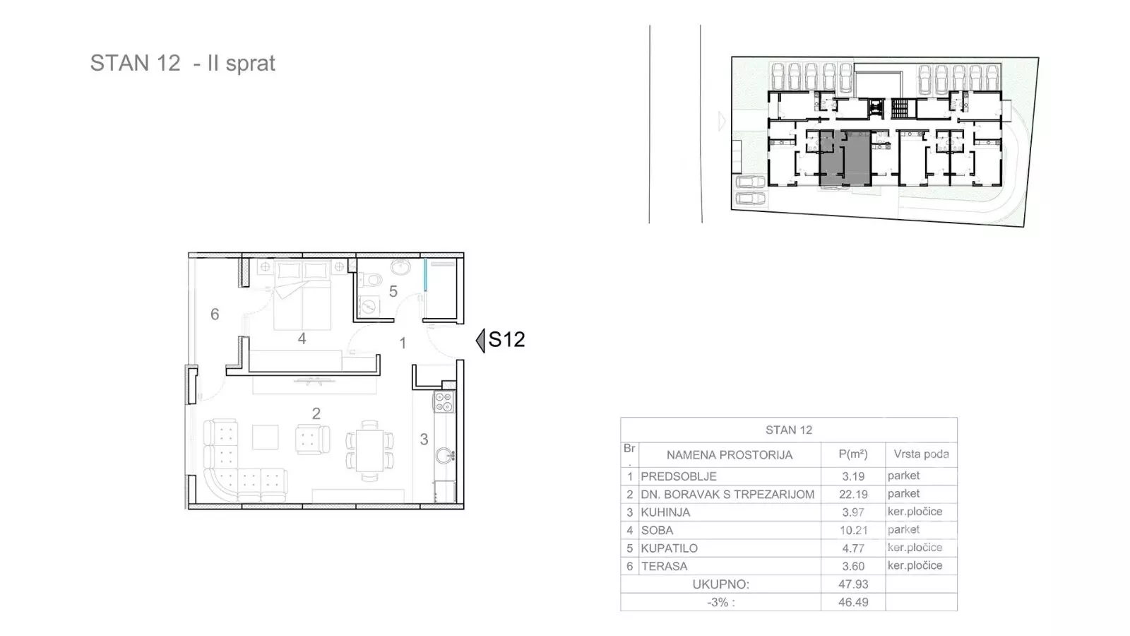
Jednoiposoban stan na prodaju, Pantelej, 85.644€, 48m²








85.644 €
1.784 € / m2
- Stan u zgradi
- Etažno grejanje
- U izgradnji
- Prostorije: kupatilo, terasa
- Uknjiženo
- Oglas oglašava agencija pod reg. brojem 1574
- 1 lift
Opis oglasa
U ponudi stambeni objekat Po + P + 6
Opština Pantelej, Niš, u blizini Hotela Zen
Cena:
- 1800€/m² sa PDV-om
U ponudi su stanovi u novom stambenom objektu koji se nalazi u naselju Pantelej, u blizini hotela Zen. Objekat se sastoji od šest spratova, uključujući prizemlje i potkrovlje, a u njemu se nalazi ukupno 42 stambene jedinice. Pored stambenog prostora, tu su i garažni i podrumski prostori, a zgrada je opremljena liftom, podzemnom garažom i parkingom na platou.
Stambene jedinice:
- U ponudi stanovi od 25,54 m² do 55,41 m²
Karakteristike stana i materijali:
- Fasada: kombinacija dekorativne cigle i demit fasade sa izolacijom od 12 cm
- Stolarija: PVC REHAU sa aluminijumskim roletnama i troslojnim staklom
- Lift: proizvođač KONE
- Podovi: granitna keramika i troslojni parket
- WC šolje: konzolne sa ugradnim vodokotlićima
- Grejanje: etažno grejanje na električni kotao
- Zvučna izolacija u podovima i zidovima između stanova
- Dodatni sadržaji: montaža nosača i odvod kondenzata za klima uređaje
Zgrada je dobro zvučno izolovana, a između stanova je postavljena dodatna zvučna izolacija u podovima i zidovima, čime je obezbeđena privatnost i miran boravak. Takođe, u objektu je omogućena montaža nosača i odvod kondenzata za klima uređaje.
Objekat se nalazi u novom stambenom naselju, a okružen je raznim prodavnicama, apotekama, kafićima i kancelarijama. U neposrednoj blizini se nalazi i autobuska stanica, a samo nekoliko minuta hoda deli vas od parka sa zelenim površinama i rekvizitima za dečiju igru.
Za sve dodatne informacije i zakazivanje pregleda, slobodno nas kontaktirajte.
Mi smo tim Residence Nekretnine, vaš partner u pronalaženju savršenog doma. Pružamo vam sveobuhvatnu podršku advokata i garantujemo prisustvo prilikom overe ugovora kod javnog beležnika. Pozovite nas već danas na navedene brojeve telefona kako biste saznali više o lokaciji ili samoj nekretnini. Spremni smo da se prilagodimo vašem rasporedu, bilo da želite obilazak tokom radnih dana ili vikendom. Pored ovog projekta u našoj ponudi imamo veliki broj stanova u novogradnji i starogradnji širom grada. Za više informacija budite slobodni da nas nazovete na sledeće brojeve telefona, biće nam zadovoljstvo da učestvujemo u pronalaženju idealnog doma za Vas:
065... (prikaži broj telefona)
065... (prikaži broj telefona)
Residence Nekretnine
Broj u registru posrednika : 1574
*Sačuvaj oglas uz belešku i primaj obaveštenja o njihovom pojeftinjenju ili pojavljivanju sličnih
Prikaz stana na mapi
Parkovi u blizini
- Park Svetog Save27 min
- Park složnih komšija28 min
- Park heroja NOB-a31 min

Obeležja kulture u blizini
- Ranohrišćanska grobnica5 min
- Ranohrišćanska bazilika6 min
- Zgrada Oficirskog doma10 min

Škole/Fakulteti/Vrtići u blizini
- Osnovna škola (Osnovna škola Stefan Nemanja)6 min
- Srednja škola (Gimnazija 9. maj)9 min
- Vrtić (Dečiji vrtić Mazza)5 min
- Fakultet (Fakultet za pravne i poslovne studije Dr Lazar Vrkatić)9 min

- Bolnica (Bolnica Đorić)7 min
- Klinika (Family Medica poliklinika)8 min
- Teretana (Teretana Šuki)5 min
- Prodavnica (Beni trgovina)5 min
- Restoran (Restoran President Lux)10 min
- Kafana (Kafana Stari ambar)13 min
- Taksi stajalište (Cool taksi)22 min
- Autobuska stanica (Vase Pelagića)6 min
- Banka (Eurobank Direktna)6 min
- Pošta (Pošta Niš 3)6 min
Kontakt oglašivača
Stambeni krediti

- Period otplate od
96 -360 meseca
- NKS 4.75%
EKS 5.74%
Fiksna kamatna stopa
- Bez troškova obrade kredita
stranici kreditnih kalkulatora
Keš krediti
Period otplate
13 meseci