Dvosoban stan na prodaju, Pantelej, 100.200€, 48m²






100.200 €
2.088 € / m2
- Stan u zgradi
- Etažno grejanje
- Novo
- Prostorije: terasa
- Oglas oglašava agencija pod reg. brojem 1809
- 1 lift
- Godina izgradnje: 2026.
Opis oglasa
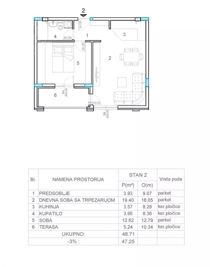
Prodaje se četvorosoban stan u izgradnji u Durlanu koji se nalazi u blizini Pošte i pijace. Stan se nalazi na 1. spratu stampene zgrade. Stan je površine 48,71m2 i sastoji se od ulaznog hodnika, dnevne sobe sa trpezarijom i kuhinjom, spavaće sobe, kupatila i terase. Kvadratura stana je maksimalno iskorišćena sa odličnim rasporednom prostorija. Stan je idealan za porodični život ili kao investicija za izdavanje. U blizini stana se nalaze škola, marketi, pijaca i sve što je neophodno za svakodnevni život.
Zgrada se gradi po najvišim standardima gradnje, sa fasadom stiropor 12cm, 5-komorna PVC stolarija sa elektro roletnama, fono blok zvučna izolacija između stanova kao i na spoljnim zidovima. Grejanje u stanu je etažno.
Rok za završetak radova: jul 2027
Cena stana iznosi 2100e/m2 sa uračunatim PDV-om. Kupci kojima je ovo prva nekretnina a ispunjavaju zakonom propisane uslove ostvaruju pravo na povraćaj PDV-a.
Bez agencijske provizije za kupce.
Više informacija o ovoj ponudi možete dobiti pozivom na broj 066... (prikaži broj telefona)
Kompletnu ponudu naše agencije možete pogledati na sajtu www. royalestate. rs
Agencija ROYAL ESTATE NEKRETNINE DOO NIŠ je upisana u registar posrednika pod rednim brojem 1809
*Sačuvaj oglas uz belešku i primaj obaveštenja o njihovom pojeftinjenju ili pojavljivanju sličnih
Prikaz stana na mapi
Kontakt oglašivača
Krediti OTP banke
Saznaj više
Prikazana rata odnosi se na maksimalni period otplate. Kalkulator je informativnog karaktera.
* Nakon isteka 5 godina, prelazi se na varijabilnu kamatnu stopu


