Dvosoban stan na prodaju, Pantelej, 128.750€, 69m²










128.750 €
1.866 € / m2
- Stan u zgradi
- Grejanje na norveške radijatore
- Novo
- Prostorije: terasa
- Opremljenost: Namešteno - interfon, klima, kanalizacija
- U procesu uknjižavanja
- Oglas oglašava agencija pod reg. brojem 1809
- 1 garažno mesto
- 1 lift
- Kanalizacija
- Godina izgradnje: 2025.
- Zgrada poseduje: video nadzor
Opis oglasa
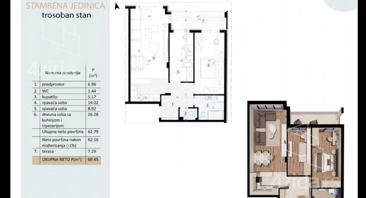
Prodaje se trosoban stan u izgradnji na Panteleju, u neposrednjoj blizini novog Lidla. Stan se nalazi na prvom spratu stambeno-poslovne zgrade sa liftom. Površine je 69,45m2 i sastoji se od ulaznog hodnika, dnevne sobe sa trpezarijom i kuhinjom, dve spavaće sobe, kupatila, toaleta i terase. Grejanje je putem inverter klima uređaja (split sistem) i norveškog radijatora. Parking mesto u podzemnoj garaži se doplaćuje 10.000 EUR. Stan ovakve kvadrature i strukture je dostupan i na drugom i trećem spratu.
Početak radova: Oktobar 2025.
Rok izgradnje: Aprli 2027.
Objavljena cena stana je bez PDV-om. Kupci kojima je ovo prva nekretnina a ispunjavaju zakonom propisane uslove ostvaruj prava na povraćaj PDV-a. Bez agencijske provizije za kupce.
O objektu:
Stambeno-poslovni objekat spratnosti Po+ P +3 smešten je na Panteleju, na izuzetno atraktivnoj lokaciji i u neposrednoj blizini budućeg tržnog centra. Objekat ima ukupno 12 stanova i 2 lokala u prizmlju. Na svakom spratu su projetovana četiri tipske stambene jedinice.
Opremljenost stanova:
Sigurnosna ulazna vrata
PVC stolarija prve klase marke Rehau.
Inverter klima i norveški radijator
Tarket parket
Španska keramika dimenzija 60x60cm
Više informacija o ovoj ponudi možete dobiti pozivom na broj 066... (prikaži broj telefona)
Kompletnu ponudu naše agencije možete pogledati na sajtu www. royalestate. rs
Agencija ROYAL ESTATE NEKRETNINE DOO NIŠ je upisana u registar posrednika pod rednim brojem 1809.
*Sačuvaj oglas uz belešku i primaj obaveštenja o njihovom pojeftinjenju ili pojavljivanju sličnih
Prikaz stana na mapi
Parkovi u blizini
- Park Svetog Save22 min
- Park složnih komšija24 min
- Park heroja NOB-a31 min

Obeležja kulture u blizini
- Ranohrišćanska grobnica6 min
- Ranohrišćanska bazilika7 min
- Zgrada Oficirskog doma10 min

Škole/Fakulteti/Vrtići u blizini
- Osnovna škola (Osnovna škola Njegoš)5 min
- Srednja škola (Gimnazija 9. maj)10 min
- Vrtić (Dečiji vrtić Meca Dobrica)9 min
- Fakultet (Fakultet za pravne i poslovne studije Dr Lazar Vrkatić)8 min

- Bolnica (Bolnica Đorić)7 min
- Klinika (Family Medica poliklinika)13 min
- Teretana (Teretana Šuki)4 min
- Prodavnica (Tis market 20)7 min
- Restoran (Restoran Nikolić)12 min
- Kafana (Kafana Stari ambar)7 min
- Taksi stajalište (Duga taksi)20 min
- Autobuska stanica (Bojnička)7 min
- Banka (Poštanska štedionica)4 min
- Pošta (Pošta Niš 3)10 min
Kontakt oglašivača
Stambeni krediti

- Period otplate od
96 -360 meseca
- NKS 4.75%
EKS 5.74%
Fiksna kamatna stopa
- Bez troškova obrade kredita
stranici kreditnih kalkulatora
Keš krediti
Period otplate
13 meseci
