Jednoiposoban stan na prodaju, Palilula, 63.280€, 38m²






63.280 €
1.665 € / m2
- Etažno grejanje
- Renovirano
- Prostorije: kupatilo, terasa
- Oglas oglašava agencija pod reg. brojem 940
- 1 telefonska linija
Opis oglasa
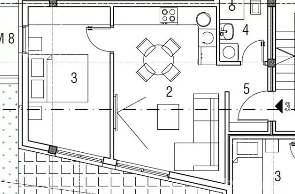
U ponudi je novogradnja spratnosti Sut+P+2, bez lifta, koja se nalazi u mirnom kraju Palilule, idealnom za porodičan život. Stambeni objekat se gradi od najkvalitetnijih materijala i u skladu sa evropskim standardima gradnje. Prodaje se jednoiposoban stan površine 38,35m2. Moderan, funkcionalan stan, koji se sastoji iz ulaznog hodnika, dnevne sobe sa kuhinjom i trpezarijom, spavaće sobe, kupatila i terase pružiće Vam udobnost kakva Vam je potrebna. Na podu će biti postavljen tarket I klase, stolarija će biti PVC profila, grejanje će biti etažno a biće ugrađene i inverter klime. Ovo je idealna prilika za sve one koji traže prelep pogled na grad a žele da budu u blizini ključnih objekata: osnovne škole, gimnazije, sportskog centra i ostalih sadržaja koji će dodatno uticati na Vaš kvalitet života. U cenu je uključen PDV i kupci prvog stana imaju pravo na povraćaj PDV-a u iznosu od 10%. Za više informacija o ovoj ili drugim nekretninama i zakazivanje razgledanja kontaktirajte agenta na broj telefona iz oglasa (poziv, sms, viber) ili putem e-maila. Kompletnu ponudu dostupnih nekretnina možete pronaći na našem sajtu. Agencija Proagent nekretnine je upisana u Registru posrednika pod brojem: 940.
*Sačuvaj oglas uz belešku i primaj obaveštenja o njihovom pojeftinjenju ili pojavljivanju sličnih
Prikaz stana na mapi
Parkovi u blizini
- Park Čair13 min
- Park heroja NOB-a19 min
- Park složnih komšija25 min

Obeležja kulture u blizini
- Spomenik Stevanu Sremcu i Kalči5 min
- Vladičanski dvor8 min
- Donina česma7 min

Škole/Fakulteti/Vrtići u blizini
- Osnovna škola (Osnovna škola Kole Rašić)9 min
- Srednja škola (Gimnazija Svetozar Marković)5 min
- Vrtić (Dečiji vrtić Mrvičica)2 min
- Fakultet (Univerzitet u Nišu Fakultet sporta i fizičkog vaspitanja)4 min

- Bolnica (Urgentni centar Niš)6 min
- Klinika (Poliklinika Longa Vita)9 min
- Teretana (Gym Town 1)4 min
- Prodavnica (IDEA)2 min
- Restoran (Restoran Fidel Gastro)5 min
- Kafana (Pivnica Nemir)8 min
- Taksi stajalište (Bros Taxi Niš)13 min
- Autobuska stanica (Božidarčeva)1 min
- Banka (NLB Komercijalna banka)4 min
- Pošta (Pošta Niš 5)7 min
Kontakt oglašivača
Krediti OTP banke
Saznaj više
Prikazana rata odnosi se na maksimalni period otplate. Kalkulator je informativnog karaktera.
* Nakon isteka 5 godina, prelazi se na varijabilnu kamatnu stopu


