Jednoiposoban stan na prodaju, Palilula, 95.680€, 42m²


















95.680 €
2.278 € / m2
- Etažno grejanje
- Renovirano
- Prostorije: kupatilo, terasa
- Oglas oglašava agencija pod reg. brojem 940
- 1 lift
- 1 telefonska linija
Opis oglasa
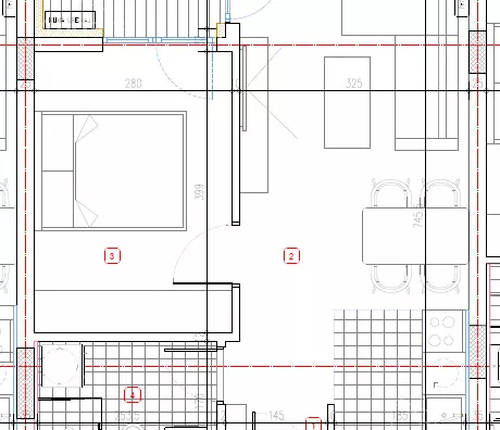
U ponudi je stambeno-poslovni kompleks koji se gradi na odličnoj lokaciji na Paliluli. Moderan dizajn čini ga veoma atraktivnim. Prodaje se jednoiposoban stan površine 41,6m2. Sastoji se od ulaznog hodnika, dnevnog boravka sa kuhinjom, spavaće sobe, kupatila i terase. U gradnji se koriste najsavremeniji i najkvalitetniji materijali: fasada od alu bondova, izolacija od stiropora debljine 15cm, ALU višekomorni i profili sa dvoslojnim niskoemisionim staklom i vrhunskim okovom, aluminijumske roletne, enterijerska drvena vrata, obložena medijapanom, završno obrađena melaninskom folijom, sigurnosna ulazna vrata, višeslojni parket prirodne teksture, keramičke pločice renomiranih brendova, protivklizna keramika i staklene ograde na terasama, inverter klima uređaji. Stanovi će biti opremljeni osnovnim smart sistemom uz mogućnost brze implementacije na napredni smart sistem po želji kupca. U cenu je uključen PDV i kupci prvog stana imaju pravo na povraćaj PDV-a u iznosu od 10%. Nalazi se u mirnoj ulici, sa raznovrsnim sadržajem u okolini, ugostiteljskim objektom u samom kompleksu, u blizini vrtića, škole, fakulteta, odlično povezan sa ostalim delovima grada, što ga čini idealnim za porodičan život. Za više informacija o ovoj ili drugim nekretninama i zakazivanje razgledanja kontaktirajte agenta na broj telefona iz oglasa (poziv, sms, viber) ili putem e-maila. Kompletnu ponudu dostupnih nekretnina možete pronaći na našem sajtu. Agencija Proagent nekretnine je upisana u Registru posrednika pod brojem: 940.
*Sačuvaj oglas uz belešku i primaj obaveštenja o njihovom pojeftinjenju ili pojavljivanju sličnih
Prikaz stana na mapi
Parkovi u blizini
- Park Čair13 min
- Park heroja NOB-a19 min
- Park složnih komšija25 min

Obeležja kulture u blizini
- Spomenik Stevanu Sremcu i Kalči5 min
- Vladičanski dvor8 min
- Donina česma7 min

Škole/Fakulteti/Vrtići u blizini
- Osnovna škola (Osnovna škola Kole Rašić)9 min
- Srednja škola (Gimnazija Svetozar Marković)5 min
- Vrtić (Dečiji vrtić Mrvičica)2 min
- Fakultet (Univerzitet u Nišu Fakultet sporta i fizičkog vaspitanja)4 min

- Bolnica (Urgentni centar Niš)6 min
- Klinika (Poliklinika Longa Vita)9 min
- Teretana (Gym Town 1)4 min
- Prodavnica (IDEA)2 min
- Restoran (Restoran Fidel Gastro)5 min
- Kafana (Pivnica Nemir)8 min
- Taksi stajalište (Bros Taxi Niš)13 min
- Autobuska stanica (Božidarčeva)1 min
- Banka (NLB Komercijalna banka)4 min
- Pošta (Pošta Niš 5)7 min
Kontakt oglašivača
Stambeni krediti
- Period otplate od
96 -360 meseca
- NKS 4.34%
Kombinovana kamatna stopa
- Bez troškova obrade kredita
- Odobrenje kredita do 48h
- Period otplate od
96 -360 meseca
- NKS 4.50%
EKS 5.74%
Fiksna kamatna stopa
- Bez troškova obrade kredita
stranici kreditnih kalkulatora
Keš krediti
Period otplate
13 meseci
