Trosoban stan na prodaju, Podujevska, 199.000€, 75m²
























199.000 €
2.653 € / m2
- Centralno grejanje
- Novo
- Prostorije: kupatilo, terasa
- Oglas oglašava agencija pod reg. brojem 1347
- 1 garažno mesto
- 1 lift
- 1 telefonska linija
Opis oglasa
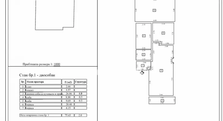
Lepa, kvalitetna četvorospratna zgrada u finalnoj fazi izgradnje, brzo useljiva, sa liftom, odličnog kvaliteta gradnje, nalazi se na Opštini Zvezdara u blizini SC “Olimp”, “Cvetkove pijace” i Bulevara Kralja Aleksandra, u mirnom stambenom naselju u okruženju novoizgrađenih zgrada i privatnih kuća. Ulica je mirna, bez većeg prometa, a u neposrednoj blizini se nalaze svi relevantni objekti za nesmetano funkcionisanje života i poslovanja, takođe i blizina javnog prevoza na bulevaru. Pristup ulazu u zgradu je sa ulice, takođe u obezbeđenu garažu. Stan ukupne projektovane kvadrature 75,43m2 koji je predmet prodaje nalazi se na visokom prizemlju sa jedne strane zgrade, a sa druge je u prizemlju zgrade sa izlazom na veliku terasu, po strukturi trosoban. Sastoji se iz prostranog dnevnog boravka, spojenog sa trpezarijom i kuhinjom i sa izlazom na terasu sa prednje strane, dve zasebne spavaće sobe sa izlazom na pripadajuću ograđenu terasu - dvorišni deo zgrade površine 20,40m2 i kupatila. Grejanje je podno snabdeveno preko sopstvenog kotla na struju, takođe grejanje i hlađenje putem ugrađenog inverter klima uređaja. Spoljna stolarija PVC, sigurnosna vrata, podovi su pokriveni pločicama zbog podnog grejanja, odlična keramika i sanitarije. U zgradi su dostupna garažna mesta za prometovanje na -1 nivou, po ceni 26.000 eura sa uračunatim PDV-om i na -2 nivou po ceni od 23.000 eura sa uračunatim PDV-om. Izražena cena stana je cena sa uračunatim PDV-om, mogućnost kupovine putem kredita poslovnih banaka i povraćaja PDV za kupce prve nekretnine. Stan se prodaje BEZ PROVIZIJE za kupca. Za više informacija otvoreni smo za Vaš poziv. Kontakt telefon 060... (prikaži broj telefona) . Hvala Vam na pregledu oglasa. Broj agencije u Registru posrednika 1347. Mapa je informativnog karaktera, ne prikazuje tačnu lokaciju nekretnine.
*Sačuvaj oglas uz belešku i primaj obaveštenja o njihovom pojeftinjenju ili pojavljivanju sličnih
Prikaz stana na mapi
Parkovi u blizini
- Park Slavujev potok19 min
- Zvezdarska šuma25 min
- Park Urbani džep26 min

Obeležja kulture u blizini
- Trećepozivačka česma10 min
- Spomenik Ćirilu i Metodiju13 min
- Pašina česma8 min

Škole/Fakulteti/Vrtići u blizini
- Osnovna škola (Osnovna škola Ćirilo i Metodije)5 min
- Srednja škola (Građevinska tehnička škola Branko Žeželj)5 min
- Vrtić (Dečiji vrtić Lavić)8 min
- Fakultet (Visoka građevinsko-geodetska škola Beograd)8 min

- Bolnica (MedicOne - specijalna bolnica za plastičnu, estetsku i rekonstruktivnu hirurgiju)8 min
- Klinika (Poliklinika i laboratorija LaboMedica)9 min
- Teretana (Body building i fitness klub Ahilej)4 min
- Prodavnica (Market Bovel plus)7 min
- Restoran (Restoran Zavičaj Zvezdara)5 min
- Kafana (Papa Bear Pub)6 min
- Taksi stajalište (Radio Beo Taxi)9 min
- Autobuska stanica (Mite Ružića)6 min
- Tramvajska stanica (Dr Velizara Kosanovića)5 min
- Trolejbuska stanica (Dr Velizara Kosanovića)10 min
- Banka (Erste Bank)5 min
- Pošta (Pošta Beograd 153)5 min
Kontakt oglašivača
Stambeni krediti

- Period otplate od
96 -360 meseca
- NKS 4.75%
EKS 5.74%
Fiksna kamatna stopa
- Bez troškova obrade kredita
Za iznos kredita preko 300000 € poseti sajt banke.
Saznaj višestranici kreditnih kalkulatora
Keš krediti
Period otplate
13 meseci