Trosoban stan na prodaju, Novo Naselje, 190.000€, 70m²
































190.000 €
2.714 € / m2
- Stan u zgradi
- U izgradnji
- Prostorije: terasa
- Uknjiženo
- Oglas oglašava agencija pod reg. brojem 200
- 1 lift
Opis oglasa
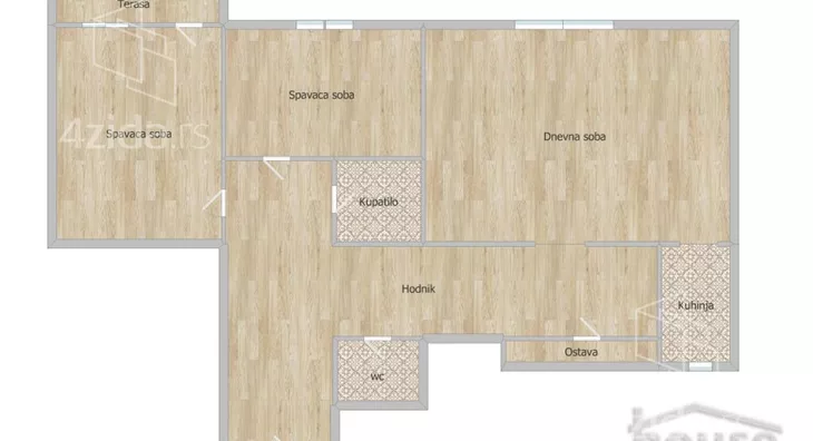
Odlicna nekretnina, bez ulaganja +++ Agencijska oznaka stana je 1063776. CENA 180000e + agencijska provizija od 3%. Trosoban stan na Novom Naselju u mirnom delu grada na petom spratu stambene zgrade sa liftom, idealan za porodični život, u potpunosti renoviran, odmah useljiv, 70 m2, poseduje terasu, 3 sobe (2 spavaće i dnevna sa trpezarijom i kuhinjiom sa prirodnom ventilacijom, malu ostavu, wc i kupatilo), grejanje centralno. Blizina vrtića i osnovne škole i nekoliko gradskih linija. Za više informacija pozovite: 060... (prikaži broj telefona) , 021... (prikaži broj telefona) , 546-282
*Sačuvaj oglas uz belešku i primaj obaveštenja o njihovom pojeftinjenju ili pojavljivanju sličnih
Prikaz stana na mapi
Parkovi u blizini
- Park Bistrica12 min
- Futoški park37 min
- Železnički park41 min

Obeležja kulture u blizini
- Jodna Banja13 min
- Dvorac Eđšeg15 min
- Matičarsko zdanje18 min

Škole/Fakulteti/Vrtići u blizini
- Osnovna škola (Osnovna škola Prva vojvođanska brigada)8 min
- Srednja škola (Škola za osnovno i srednje obrazovanje Milan Petrović sa domom učenika)3 min
- Vrtić (Dečiji vrtić Guliver)3 min
- Fakultet (Protestantski teološki fakultet)7 min

- Bolnica (Specijalna bolnica za hemodijalizu Fresenius Medical Care FMC)6 min
- Klinika (Poliklinika Consilium)6 min
- Teretana (Teretana Spartan Gym)7 min
- Prodavnica (BVP market)2 min
- Restoran (Elite bar & restaurant)5 min
- Kafana (Pivoteka 77)14 min
- Taksi stajalište (Taxi prevoz Novi Sad)28 min
- Autobuska stanica (Bul. Bate Brkića - Bul. Jovana Dučića)4 min
- Banka (Eurobank Direktna)10 min
- Pošta (Pošta Novi Sad 21114)8 min
Kontakt oglašivača

Krediti OTP banke
Saznaj više
Prikazana rata odnosi se na maksimalni period otplate. Kalkulator je informativnog karaktera.
* Nakon isteka 5 godina, prelazi se na varijabilnu kamatnu stopu

