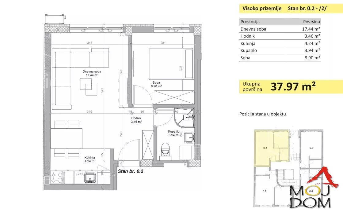
Jednosoban stan na prodaju, Novo Naselje, 107.550€, 38m²


107.550 €
2.830 € / m2
- Stan u zgradi
- U izgradnji
- Uknjiženo
- Oglas oglašava agencija pod reg. brojem 174
- 1 lift
Opis oglasa
Na prodaju je moderan jednosoban stan u izgradnji, smešten na idealnoj lokaciji na granici Novog Naselja i Satelita. Projekat je osmišljen tako da pruži visok nivo komfora i funkcionalnosti, uz predviđeni rok završetka radova do proleća 2026. godine. Okolina je izuzetno praktična za svakodnevni život, jer se u neposrednoj blizini nalaze prodavnice, škole, apoteke, drogerije i svi važni sadržaji koji ovu lokaciju čine izuzetno pogodnom za porodice, zaposlene i sve koji žele praktičan i miran životni ambijent.
Grejanje je predviđeno na gas sa sistemom naplate isključivo po potrošnji, što značajno utiče na uštedu i obezbeđuje niske mesečne troškove održavanja. Uz stan postoji mogućnost kupovine parking mesta, što dodatno doprinosi udobnosti i jednostavnosti svakodnevnog funkcionisanja.
Ovo je prilika da obezbedite kvalitetan, savremen i dobro pozicioniran dom u mirnom okruženju, a istovremeno u neposrednoj blizini svih ključnih gradskih sadržaja.
šifra: 1031532
Kontakt -
063... (prikaži broj telefona)
Moj Dom nekretnine, Novi Sad (Reg. br. 174)
For sale is a modern one-bedroom apartment under construction, located in an excellent position on the border of Novo Naselje and Satelit. The project is designed to provide a high level of comfort and functionality, with the planned completion date set for spring 2026. The surroundings are extremely convenient for everyday life, with shops, schools, pharmacies, drugstores, and all essential amenities nearby, making this location especially suitable for families, professionals, and anyone seeking a practical and peaceful living environment.
Heating is planned to be gas-based, with billing exclusively according to consumption, which ensures significant savings and low monthly maintenance costs. There is also the possibility of purchasing a parking space with the apartment, further enhancing comfort and convenience.
This is an excellent opportunity to secure a high-quality, modern, and well-positioned home in a quiet setting, while still being within close reach of all key city amenities.
Code: 1031533
Contact:
+38... (prikaži broj telefona)
Moj Dom Real Estate, Novi Sad (Reg. no. 174)
Продаётся современная однокомнатная квартира в стадии строительства, расположенная в отличном месте на границе Нового Населя и Сателита. Проект разработан таким образом, чтобы обеспечить высокий уровень комфорта и функциональности, а завершение работ планируется к весне 2026 года. Окружение чрезвычайно удобное для повседневной жизни: рядом находятся магазины, школы, аптеки, дрогерии и все важные объекты, что делает эту локацию особенно привлекательной для семей, работающих людей и всех, кто предпочитает практичную и спокойную жилую среду.
Отопление предусмотрено на газ с оплатой исключительно по потреблению, что значительно снижает расходы и обеспечивает низкие ежемесячные затраты на обслуживание. Также существует возможность приобретения парковочного места, что дополнительно повышает комфорт и простоту повседневного функционирования.
Это отличная возможность приобрести качественное, современное и хорошо расположенное жильё в тихом окружении, при этом в непосредственной близости от всех ключевых городских удобств.
Шифр: 1031533
Контакт:
+38... (prikaži broj telefona)
Moj Dom недвижимость, Нови-Сад (Рег. № 174)
(Moj Dom nekretnine,Novi Sad,Reg.br.174)
*Sačuvaj oglas uz belešku i primaj obaveštenja o njihovom pojeftinjenju ili pojavljivanju sličnih
Prikaz stana na mapi
Parkovi u blizini
- Park Bistrica12 min
- Futoški park37 min
- Železnički park41 min

Obeležja kulture u blizini
- Jodna Banja13 min
- Dvorac Eđšeg16 min
- Matičarsko zdanje19 min

Škole/Fakulteti/Vrtići u blizini
- Osnovna škola (Osnovna škola Prva vojvođanska brigada)5 min
- Srednja škola (Škola za osnovno i srednje obrazovanje Milan Petrović sa domom učenika)5 min
- Vrtić (Dečiji vrtić Guliver)3 min
- Fakultet (Protestantski teološki fakultet)8 min

- Bolnica (Specijalna bolnica za hemodijalizu Fresenius Medical Care FMC)7 min
- Klinika (Poliklinika Consilium)7 min
- Teretana (Fitness studio Top Form)5 min
- Prodavnica (BVP market)2 min
- Restoran (Elite bar & restaurant)5 min
- Kafana (Pivoteka 77)14 min
- Taksi stajalište (Taxi prevoz Novi Sad)28 min
- Autobuska stanica (Bul. Bate Brkića - Bul. Jovana Dučića)4 min
- Banka (Eurobank Direktna)10 min
- Pošta (Pošta Novi Sad 21114)8 min
Kontakt oglašivača

Stambeni krediti
- Period otplate od
96 -360 meseca
- NKS 4.50%
EKS 5.74%
Fiksna kamatna stopa
- Bez troškova obrade kredita
- Period otplate od
96 -360 meseca
- NKS 4.34%
Kombinovana kamatna stopa
- Bez troškova obrade kredita
- Odobrenje kredita do 48h
stranici kreditnih kalkulatora
Keš krediti
Period otplate
13 meseci