Dvoiposoban stan na prodaju, Novo Naselje, 120.400€, 48m²




120.400 €
2.508 € / m2
- Stan u zgradi
- U izgradnji
- Prostorije: terasa
- Oglas oglašava agencija pod reg. brojem 1808
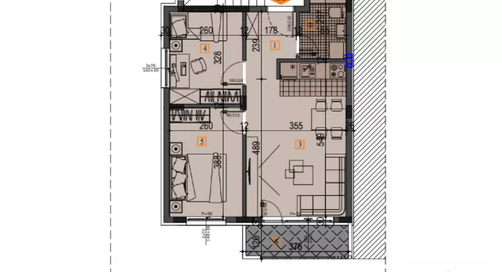
Opis oglasa
U prijatnom, porodičnom delu grada koji odiše mirnoćom i uređenim okruženjem, smešten je moderan stan od 48 m², trenutno u fazi izgradnje. Okružen zelenilom, praktičnim sadržajima i dobrom saobraćajnom povezanošću, ovaj stan predstavlja izuzetno ugodan prostor za savremen život. Enterijer je pažljivo projektovan kako bi svaki kvadrat bio maksimalno iskorišćen. Prostran dnevni boravak sa trpezarijom i kuhinjom u otvorenom konceptu pruža toplu i prijatnu atmosferu doma. Dve odvojene spavaće sobe omogućavaju privatnost i funkcionalnost i idealno je za porodice, parove ili one kojima je potreban dodatni radni prostor. Pored toga, stan poseduje moderno kupatilo, praktično predsoblje i terasu koja obogaćuje ambijent i pruža mesto za opuštanje. Savremeno podno grejanje na toplotne pumpe obezbeđuje konstantan komfor, energetsku efikasnost i minimalne troškove grejanja, čineći boravak u stanu prijatnim tokom cele godine. Ovaj stan spaja moderan dizajn, praktičan raspored i kvalitetnu izgradnju, nudeći idealan dom u sređenom i traženom delu grada.
Za više informacija kao i za razgledanje stana slobodno nas kontaktirajte.
Kontakt telefoni:
065... (prikaži broj telefona)
,
060... (prikaži broj telefona)
,
065... (prikaži broj telefona)
BAK Nekretnine
*Sačuvaj oglas uz belešku i primaj obaveštenja o njihovom pojeftinjenju ili pojavljivanju sličnih
Prikaz stana na mapi
Parkovi u blizini
- Park Bistrica12 min
- Futoški park37 min
- Železnički park41 min

Obeležja kulture u blizini
- Jodna Banja13 min
- Dvorac Eđšeg16 min
- Matičarsko zdanje19 min

Škole/Fakulteti/Vrtići u blizini
- Osnovna škola (Osnovna škola Prva vojvođanska brigada)5 min
- Srednja škola (Škola za osnovno i srednje obrazovanje Milan Petrović sa domom učenika)5 min
- Vrtić (Dečiji vrtić Guliver)3 min
- Fakultet (Protestantski teološki fakultet)8 min

- Bolnica (Specijalna bolnica za hemodijalizu Fresenius Medical Care FMC)7 min
- Klinika (Poliklinika Consilium)7 min
- Teretana (Fitness studio Top Form)5 min
- Prodavnica (BVP market)2 min
- Restoran (Elite bar & restaurant)5 min
- Kafana (Pivoteka 77)14 min
- Taksi stajalište (Taxi prevoz Novi Sad)28 min
- Autobuska stanica (Bul. Bate Brkića - Bul. Jovana Dučića)4 min
- Banka (Eurobank Direktna)10 min
- Pošta (Pošta Novi Sad 21114)8 min
Kontakt oglašivača
Krediti OTP banke
Saznaj više
Prikazana rata odnosi se na maksimalni period otplate. Kalkulator je informativnog karaktera.
* Nakon isteka 5 godina, prelazi se na varijabilnu kamatnu stopu






















