Trosoban stan na prodaju, Mokranjčev, 106.500€, 71m²








106.500 €
1.500 € / m2
- Stan u zgradi
- U izgradnji
- Opremljenost: Prazno - internet, interfon, klima
- Oglas oglašava agencija pod reg. brojem 1596
- 1 lift
- Zgrada poseduje: video nadzor
- Kablovska
- 1 telefonska linija
Opis oglasa
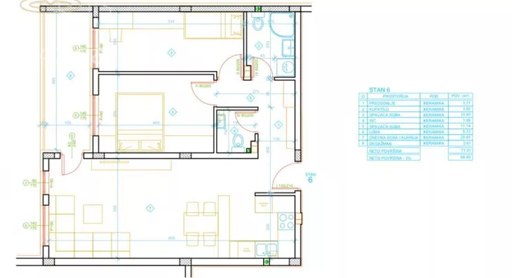
Na prodaju je stan u izgradnji, idealan za porodični život. Površina stana obuhvata dve spavaće sobe, dnevnu sobu sa kuhinjom, predsoblje i dva kupatila. Stan pruža funkcionalan raspored, savršen za udoban i praktičan život.
Detalji stana:
Dve spavaće sobe – miran i udoban prostor za odmor
Dnevna soba sa kuhinjom – centralno mesto za druženje i porodične aktivnosti
Dva kupatila – praktičnost za porodični život
Predsoblje – optimalno iskorišćen prostor
Lokacija:
Stan se nalazi u mirnom kraju, sa svim neophodnim sadržajima u blizini – škole, vrtići, prodavnice, parkovi i javni prevoz, što ga čini savršenim izborom za porodice.
U cenu stana je uračunat PDV.
Ovaj stan u izgradnji predstavlja idealnu priliku za moderan i funkcionalan porodični život ili investiciju.
Agencijska provzija 2%
Kompas Nekretnine – vaš pouzdan partner u kupovini i prodaji nekretnina.
*Sačuvaj oglas uz belešku i primaj obaveštenja o njihovom pojeftinjenju ili pojavljivanju sličnih
Prikaz stana na mapi
Kontakt oglašivača
Stambeni krediti

- Period otplate od
96 -360 meseca
- NKS 4.75%
EKS 5.74%
Fiksna kamatna stopa
- Bez troškova obrade kredita
stranici kreditnih kalkulatora
Keš krediti
Period otplate
13 meseci