Trosoban stan na prodaju, Nine Kirsanove, 133.430€, 60m²




































133.430 €
2.224 € / m2
- Etažno grejanje
- U izgradnji
- Prostorije: kupatilo, terasa
- Oglas oglašava agencija pod reg. brojem 1219
- 1 lift
Opis oglasa
Na vrhu Mirijeva, u mirnom i zelenom okruženju, gradi se savremeni stambeno-poslovni kompleks koji donosi spoj udobnosti, kvaliteta i izuzetne povezanosti sa centrom Beograda. Ovaj ekskluzivni kompleks, projektovan po najvišim standardima, spratnosti 2 Po + Pr + 3 spr + povučeni sprat, prostire se na preko 16.000 m², obuhvatajući više lamela sa stambenim jedinicama, poslovnim apartmanima, lokalima, uz prostranu garažu od 2.700 m².
ODLIČNA LOKACIJA I DOBRA POVEZANOST
Kompleks je izdvojen od gradske buke, dok se svi ključni sadržaji - škole, vrtići, marketi i gradski prevoz, nalaze u neposrednoj blizini, a takođe je planirana izgradnja vrtića preko puta kompleksa, dok će ostali sadržaji biti prisutni i u samom kompleksu. Nalazi se na samo nekoliko minuta od Bulevara kralja Aleksandra, sa brzim izlaskom na auto-put, što omogućava jednostavan i efikasan pristup svim delovima grada. Blizina buduće metro stanice dodatno povećava dugoročnu vrednost vašeg ulaganja.
Kompleks je smešten na uzvišenju, u mirnom i zelenom okruženju, pružajući panoramski pogled na Beograd, dok ružа vetrovа osigurava stalnu cirkulaciju svežeg vazduha, stvarajući zdravu životnu sredinu.
MODERNA ARHITEKTURA I NAJKVALITETNIJI MATERIJALI
Posebna pažnja posvećena je izboru materijala i izvođenju radova:
- Blindirana ulazna vrata – sigurnost na prvom mestu
- Sedmokomorna stolarija sa komarnicima i roletnama – savršena termo i zvučna izolacija
- Italijanska keramika i sanitarije – moderan dizajn i dugotrajnost
- Smart sistem – pametna kontrola rasvete, grejanja i sigurnosnih sistema
- Podno grejanje i radijatori – vrhunska energetska efikasnost
- Fasada od kamene vune i stiropora debljine 15 cm – vrhunska termoizolacija
JEDINSTVENA INVESTICIONA PRILIKA
- Cena stanova u pretprodaji: 2.200 €/m² sa PDV-om
- Mogućnost povrata PDV-a za kupce prvog stana
- BEZ PROVIZIJE ZA KUPCE
- Garažna mesta dostupna po ceni od 18.000 € sa PDV-om
Rok završetka radova: decembar 2026. godine. Stepen izgrađenosti u ovom trenutku nije dovoljan za kupovinu na kredit.
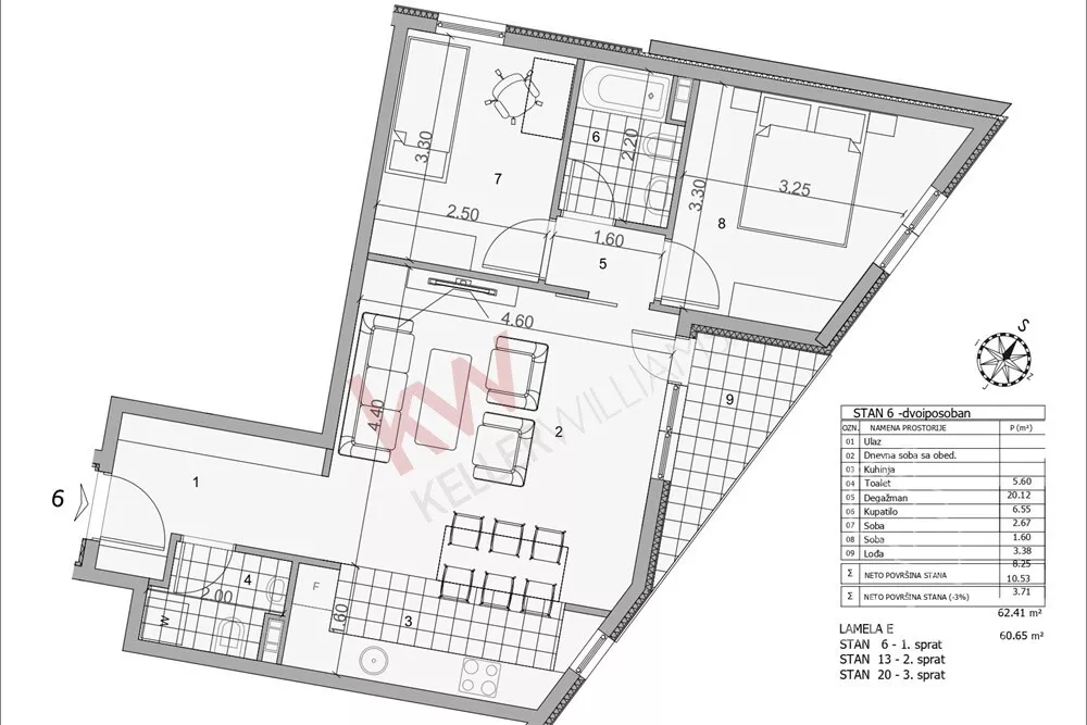
U ponudi je veći broj stanova različitih struktura i površina. Predstavljamo Vam dvoiposoban stan lociran na prvom spratu lamele E, površine 60,65m2. Prostorije: ulazni hol, dnevni boravak sa trpezarijom, kuhinja, dve spavaće sobe, kupatilo, toalet, degažman, lođa. U navedenu cenu je uračunat PDV.
Rezervišite svoj stan na vreme i budite deo budućnosti savremenog stanovanja!
*Sačuvaj oglas uz belešku i primaj obaveštenja o njihovom pojeftinjenju ili pojavljivanju sličnih
Prikaz stana na mapi
Obeležja kulture u blizini
- Pašina česma11 min
- Trećepozivačka česma14 min
- Rodna kuća vojvode Stepe Stepanovića15 min

Škole/Fakulteti/Vrtići u blizini
- Osnovna škola (Osnovna škola Dragojlo Dudić)4 min
- Srednja škola (Sedma beogradska gimnazija)11 min
- Vrtić (Dečiji vrtić Mali Anđeo)12 min
- Fakultet (Visoka građevinsko-geodetska škola Beograd)14 min

- Bolnica (Gradski zavod za plućne bolesti i tuberkulozu)15 min
- Klinika (Poliklinika i laboratorija LaboMedica)16 min
- Teretana (Fit Step Divine)12 min
- Prodavnica (Market Laja)8 min
- Restoran (Restoran Vrteška)12 min
- Kafana (Pivnica Krigla)35 min
- Taksi stajalište (Taxi stanica)22 min
- Autobuska stanica (Mirijevo 4)7 min
- Tramvajska stanica (Ustanička)41 min
- Banka (OTP banka)6 min
- Pošta (Pošta Kaluđerica)6 min
Kontakt oglašivača
Stambeni krediti

- Period otplate od
96 -360 meseca
- NKS 4.75%
EKS 5.74%
Fiksna kamatna stopa
- Bez troškova obrade kredita
stranici kreditnih kalkulatora
Keš krediti
Period otplate
13 meseci