Dvosoban stan na prodaju, Ladne vode, 120.000€, 41m²
















120.000 €
2.927 € / m2
- Stan u zgradi
- Etažno grejanje
- Prostorije: terasa
- Opremljenost: Prazno - internet, interfon, klima
- Uknjiženo
- Oglas oglašava agencija pod reg. brojem 1525
- Godina izgradnje: 2010.
- Kablovska
Opis oglasa
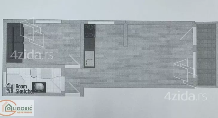
Uknjižen dvosoban stan 41m2 – Mirijevo I (Mirijevski bulevar)
2.0, uknjižen na 41m2, 2/4, EG, klima, KATV, interfon,
prostorije: hodnik, kuhinja sa trpezarijom, prostrana dnevna soba, spavaća soba, kupatilo
Na prodaju funkcionalan i svetao dvosoban stan površine 41 m² na odličnoj lokaciji u Mirijevu (naselje
Ladne vode). Stan se nalazi na 2. spratu održavane zgrade novije gradnje (2010) sa ukupno 4 sprata.
Osnovne karakteristike:
Grejanje: Etažno (EG) + inverter klima (niski troškovi režija, oko 90€ mesečno).
Opremljenost: Hrastov parket, sigurnosna vrata, trofazna struja, video nadzor, interfon, KTV/internet.
Lokacija: Mirijevski bulevar, u neposrednoj blizini prevoza, prodavnica i škola.
Moguća kupovina na kredit.
Odmah useljiv, bez potrebe za hitnim ulaganjima.
Idealno za život ili rentiranje.
Agencijska provizija 2%.
Za više informacija agent: Žikica 063... (prikaži broj telefona)
*Sačuvaj oglas uz belešku i primaj obaveštenja o njihovom pojeftinjenju ili pojavljivanju sličnih
Prikaz stana na mapi
Parkovi u blizini
- Zvezdarska šuma30 min
- Park Slavujev potok37 min
- Park Urbani džep49 min

Obeležja kulture u blizini
- Pašina česma8 min
- Trećepozivačka česma10 min
- Tripod11 min

Škole/Fakulteti/Vrtići u blizini
- Osnovna škola (Osnovna škola Despot Stefan Lazarević)4 min
- Srednja škola (Sedma beogradska gimnazija)8 min
- Vrtić (Dečiji vrtić Mirijevsko dvorištance)7 min
- Fakultet (Visoka građevinsko-geodetska škola Beograd)9 min

- Bolnica (Kovid trijažni centar - Gradski zavod za plućne bolesti i tuberkulozu)11 min
- Klinika (Klinika Impuls)9 min
- Teretana (Školica sporta Activity Centar)4 min
- Prodavnica (Maxi Supermarket)4 min
- Restoran (Restoran Stara Raška)7 min
- Kafana (Pivnica Krigla)10 min
- Taksi stajalište (Taxi stanica)13 min
- Autobuska stanica (Ladne Vode)3 min
- Tramvajska stanica (Mite Ružića)22 min
- Trolejbuska stanica (Marčanska)29 min
- Banka (OTP banka)6 min
- Pošta (Pošta Beograd 162)4 min
Kontakt oglašivača
Krediti OTP banke
Saznaj više
Prikazana rata odnosi se na maksimalni period otplate. Kalkulator je informativnog karaktera.
* Nakon isteka 5 godina, prelazi se na varijabilnu kamatnu stopu






















