Dvosoban stan na prodaju, Mirijevo, 106.344€, 50m²
















106.344 €
2.127 € / m2
- Etažno grejanje
- Prostorije: kupatilo, terasa
- Opremljenost: Prazno - internet, interfon, klima
- Oglas oglašava agencija pod reg. brojem 1119
- 1 garažno mesto
- 1 parking mesto
- 1 lift
- Godina izgradnje: 2025.
- Kablovska
- 1 telefonska linija
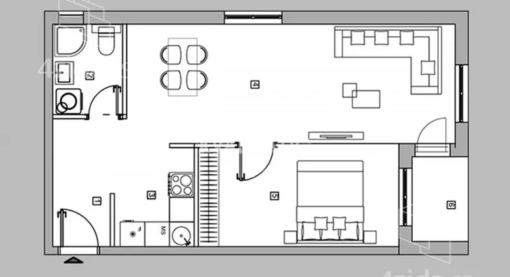
Opis oglasa
PRODAJA BEZ PROVIZIJE Prodaja stana u izgradnji – Mirijevo, mirna i porodična oaza na samo 5km od centra Beograda Na prodaju funkcionalan dvosoban stan u izgradnji, smešten u prizemlju moderne zgrade visokog kvaliteta gradnje, u mirnom i zelenilom okruženom delu Mirijeva. Idealno za porodično stanovanje! Osnovne karakteristike stana: Jedna spavaća soba Prostran dnevni boravak sa trpezarijom u sklopu delimično odvojenom kuhinjom. Kupatilo Etažno grejanje na struju Višeslojni kvalitetni parket Sigurnosna ulazna vrata Klima uređaj Karakteristike zgrade: Lift Mogućnost kupovine garažnog mesta u okviru objekta Gradnja po visokim standardima Lokacija: Zgrada se nalazi u tihoj ulici, okružena zelenilom U neposrednoj blizini su škole, vrtići, prodavnice i sve što je potrebno za udoban porodični život Samo 5km od centra Beograda, sa dobrom povezanošću sa gradom Finansiranje i pogodnosti: Mogućnost kupovine putem stambenog kredita Povraćaj PDV-a za kupce prvog stana Cena u oglasu je bez uračunatog PDV-a. Stan je u fazi izgradnje, što ostavlja prostor za dogovor o završnim materijalima prema vašim željama. Za više informacija i obilazak, slobodno nas kontaktirajte!
*Sačuvaj oglas uz belešku i primaj obaveštenja o njihovom pojeftinjenju ili pojavljivanju sličnih
Prikaz stana na mapi
Parkovi u blizini
- Zvezdarska šuma44 min
- Park Slavujev potok49 min

Obeležja kulture u blizini
- Pašina česma12 min
- Trećepozivačka česma14 min
- Tripod17 min

Škole/Fakulteti/Vrtići u blizini
- Osnovna škola (Osnovna škola Pavle Savić)4 min
- Srednja škola (Sedma beogradska gimnazija)6 min
- Vrtić (Dečiji vrtić Zvezdica)6 min
- Fakultet (Visoka građevinsko-geodetska škola Beograd)12 min

- Bolnica (Gradski zavod za plućne bolesti i tuberkulozu)15 min
- Klinika (Klinika Impuls)15 min
- Teretana (Teretana Kings Gym)6 min
- Prodavnica (IDEA Super)2 min
- Restoran (Restoran Mirijevac MG)8 min
- Kafana (Pivnica Krigla)19 min
- Taksi stajalište (Taxi stanica)5 min
- Autobuska stanica (Matice Srpske)3 min
- Tramvajska stanica (Ustanička)33 min
- Trolejbuska stanica (Marčanska)41 min
- Banka (Banca Intesa)8 min
- Pošta (Pošta Beograd 78)4 min
Kontakt oglašivača
Stambeni krediti

- Period otplate od
96 -360 meseca
- NKS 4.75%
EKS 5.74%
Fiksna kamatna stopa
- Bez troškova obrade kredita
stranici kreditnih kalkulatora
Keš krediti
Period otplate
13 meseci
