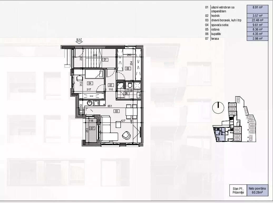
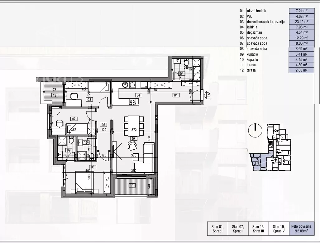
Jednoiposoban stan na prodaju, Medijana, 97.880€, 49m²
















97.880 €
1.998 € / m2
- Stan u zgradi
- Etažno grejanje
- U izgradnji
- Prostorije: kupatilo, terasa
- Uknjiženo
- Oglas oglašava agencija pod reg. brojem 1574
Opis oglasa
Prodaja ekskluzivnih stanova u modernom objektu na Paliluli, u blizni Palululske pijace
CENA: 2.000 €/m² + PDV,
U ponudi su luksuzni stanovi po ceni od 2.000 €/m² + PDV , sa visokim standardima gradnje i opremanja:
- Podno grejanje na kotao, obezbeđuje udobnost i energetsku efikasnost u celom prostoru. Dnevna soba dodatno je opremljena inverter klimom za savršeno klimatizovan prostor tokom cele godine.
- Vrhunsku završnu obradu čini troslojni parket velikog formata od hrastovog drveta, pružajući toplinu i prirodan izgled enterijera.
- Aluminijumska stolarija sa termoizolacionim svojstvima i trostrukim staklima, obezbeđuje odličnu zvučnu i termičku izolaciju. Stanovi su opremljeni električnim aluminijumskim roletnama za dodatnu privatnost i kontrolu svetlosti.
- Keramičke pločice velikih dimenzija do 120x60, u skladu sa modernim dizajnerskim trendovima.
- Ekskluzivan lobi – ceo sprat je posvećen zajedničkim prostorijama sa enterijerskim rešenjima vrhunskog kvaliteta.
- Wi-Fi bojler sa daljinskom kontrolom .
- Rok zavšetka 2026. godina.
Mi smo tim Residence nekretnine, vaš partner u pronalaženju savršenog doma. Pružamo vam sveobuhvatnu podršku advokata i garantujemo prisustvo prilikom overe ugovora kod javnog beležnika. Pozovite nas već danas na navedene brojeve telefona kako biste saznali više o lokaciji ili samoj nekretnini. Spremni smo da se prilagodimo vašem rasporedu, bilo da želite obilazak tokom radnih dana ili vikendom.
Pored ovog projekta u našoj ponudi imamo veliki broj stanova u novogradnji i starogradnji širom grada. Za više informacija budite slobodni da nas nazovete na sledeće brojeve telefona, biće nam zadovoljstvo da učestvujemo u pronalaženju idealnog doma za Vas.
065... (prikaži broj telefona)
065... (prikaži broj telefona)
Broj u registru posrednika : 1574
*Sačuvaj oglas uz belešku i primaj obaveštenja o njihovom pojeftinjenju ili pojavljivanju sličnih
Prikaz stana na mapi
Parkovi u blizini
- Park Čair15 min
- Park heroja NOB-a20 min
- Park složnih komšija28 min

Obeležja kulture u blizini
- Spomenik Stevanu Sremcu i Kalči5 min
- Vladičanski dvor8 min
- Donina česma7 min

Škole/Fakulteti/Vrtići u blizini
- Osnovna škola (Osnovna škola Dositej Obradović)8 min
- Srednja škola (Gimnazija Svetozar Marković)4 min
- Vrtić (Dečiji vrtić Meda)manje od 1 min
- Fakultet (Univerzitet u Nišu Fakultet sporta i fizičkog vaspitanja)11 min

- Bolnica (Urgentni centar Niš)8 min
- Klinika (Poliklinika Longa Vita)10 min
- Teretana (Gym Town 1)10 min
- Prodavnica (IDEA)5 min
- Restoran (Restoran Gostionica na basamaci)5 min
- Kafana (Pivnica Nemir)9 min
- Taksi stajalište (Bros Taxi Niš)12 min
- Autobuska stanica (Božidarčeva)2 min
- Banka (NLB Komercijalna banka)6 min
- Pošta (Pošta Niš 5)7 min
Kontakt oglašivača
Stambeni krediti

- Period otplate od
96 -360 meseca
- NKS 4.75%
EKS 5.74%
Fiksna kamatna stopa
- Bez troškova obrade kredita
stranici kreditnih kalkulatora
Keš krediti
Period otplate
13 meseci
