Trosoban stan na prodaju, Marger, 219.200€, 98m²




































219.200 €
2.237 € / m2
- Stan u zgradi
- Podno grejanje
- U izgradnji
- Prostorije: terasa
- Opremljenost: Prazno - internet, interfon, klima
- Oglas oglašava agencija pod reg. brojem 1596
- 1 garažno mesto
- 1 parking mesto
- 1 lift
- Zgrada poseduje: video nadzor
- Kablovska
- 1 telefonska linija
Opis oglasa
Na izuzetnoj lokaciji u centru Niša, u ponudi je moderan stambeni objekat koji pruža spoj mirnog okruženja i odlične povezanosti sa svim delovima grada.
Osnovna škola „Učitelj Tasa” udaljena je svega 3 minuta hoda, a glavne gradske saobraćajnice, prodavnice, restorani i ustanove nalaze se u neposrednoj blizini.
Osnovne karakteristike:
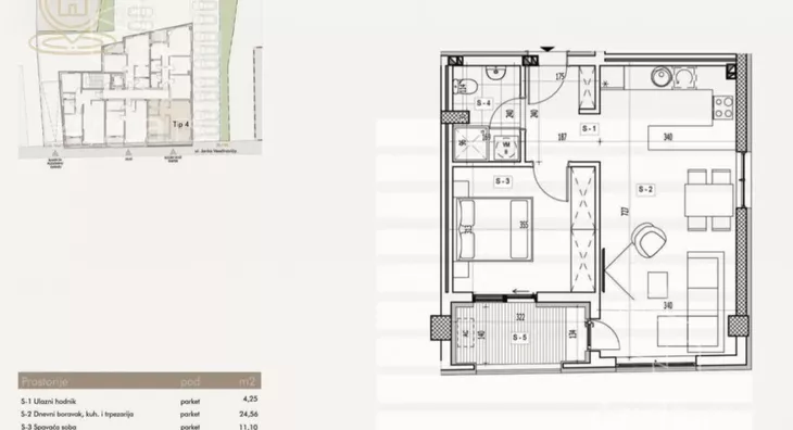
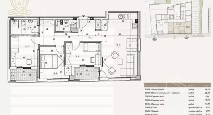
Objekat sa 35 stanova – od funkcionalnih jednoiposobnih do prostranih četvoroiposobnih
Velike terase i obilje prirodnog svetla
Ravan krov sa prohodnom terasom i zelenim krovom za stanare
Konstrukcija i materijali:
Armiranobetonski skelet sa temeljnom pločom i centralnim AB jezgrom (lift i stepenište)
Spoljni zidovi sa termoizolacijom (kamena vuna 10 cm) i „Demit“ fasadnim sistemom
Višeslojni parket u sobama i hodnicima, granitna keramika u kupatilima i na terasama
Plivajući podovi sa zvučnom izolacijom
Grejanje i hlađenje:
Podno grejanje na elektro-kotao
Inverter klima uređaji
Pametan sistem upravljanja putem mobilnog telefona
Parking opcije:
Podzemna garaža sa 18 mesta (pristup rampom na daljinsko upravljanje)
5 mesta u prizemlju objekta
13 mesta u dvorištu
2 mesta za osobe sa invaliditetom
Dodatne informacije:
Cena uključuje PDV
Završetak radova: sredina 2027. godine
Dostupne strukture: od 1.5 do 4.0 stanova
Ova novogradnja predstavlja savršenu priliku za porodičan život ili investiciju zahvaljujući kvalitetnoj gradnji, modernoj tehnologiji i izuzetnoj lokaciji.
Agencijska provizija u skladu sa opštim uslovima poslovanja.
Kompas Nekretnine – vaš pouzdan partner u kupovini i prodaji nekretnina
*Sačuvaj oglas uz belešku i primaj obaveštenja o njihovom pojeftinjenju ili pojavljivanju sličnih
Prikaz stana na mapi
Parkovi u blizini
- Park Čair14 min
- Park heroja NOB-a15 min
- Park složnih komšija25 min

Obeležja kulture u blizini
- Donina česmamanje od 1 min
- Vladičanski dvor3 min
- Spomenik Stevanu Sremcu i Kalči8 min

Škole/Fakulteti/Vrtići u blizini
- Osnovna škola (Osnovna škola Dositej Obradović)7 min
- Srednja škola (Gimnazija Svetozar Marković)5 min
- Vrtić (Dečiji centar Bambini)2 min
- Fakultet (Univerzitet u Nišu Fakultet zaštite na radu)5 min

- Bolnica (Urgentni centar Niš)8 min
- Klinika (Poliklinika Longa Vita)3 min
- Teretana (Gym Town 1)8 min
- Prodavnica (IDEA)2 min
- Restoran (Restoran Fidel Gastro)3 min
- Kafana (Pivnica Nemir)4 min
- Taksi stajalište (Bros Taxi Niš)7 min
- Autobuska stanica (Marger)2 min
- Banka (Banca Intesa)6 min
- Pošta (Pošta Niš 5)1 min
Kontakt oglašivača
Krediti OTP banke
Saznaj više
Prikazana rata odnosi se na maksimalni period otplate. Kalkulator je informativnog karaktera.
* Nakon isteka 5 godina, prelazi se na varijabilnu kamatnu stopu


