Dvosoban stan na prodaju, Konjarnik, 143.000€, 55m²
























































































143.000 €
2.600 € / m2
- Stan u zgradi
- Centralno grejanje
- Renovirano
- Prostorije: kupatilo, toalet, terasa
- Opremljenost: internet
- Orijentacija ka: severoistok, jugozapad
- Pogled na: ulicu, dvorište
- Uknjiženo
- Oglas oglašava agencija pod reg. brojem 521
- 2 lifta
- Zgrada poseduje: prilaz za invalide, alarm, video nadzor
- Kablovska
- 1 telefonska linija
- Autobuske linije: 20, 50, 63, 64, 301N, 302, 303, 304N, 304, 305, 306, 307, 308, 309, 310, 311, 355, 355B, 355A, 356, 361, 361B, 363, E1
- Tramvajske linije: 5, 6, 7L, 14
Opis oglasa
Stan se nalazi u mirnoj, slepoj ulici bez saobraćajne gužve, u zgradi sa uredno održavanim ulazom i dva lifta. Dvostrana orijentacija (jugozapad–severoistok) i krovni prozori, obezbeđuju obilje prirodnog svetla tokom celog dana. Poseduje prostranu natkrivenu terasu sa prelepim panoramskim pogledom koji se pruža od Avale do Istočnih kapija Beograda.
Stan je upravo renoviran, kompletno opremljen i namešten – gotovo sve u njemu je novo, uključujući belu tehniku (frižider, ugradnu ploču, mašinu za pranje veša).
Stan je novije gradnje, sa odličnom izolacijom i izuzetno dobrim centralnim grejanjem.
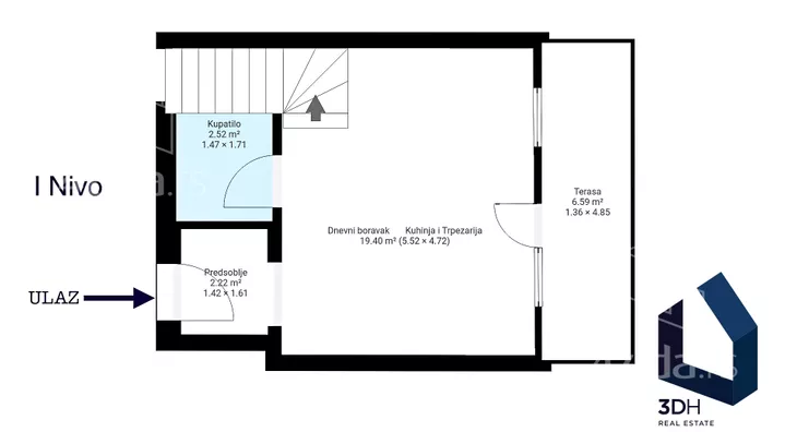
Raspored:
Donji nivo: dnevni boravak sa kuhinjom i trpezarijom, terasa, predsoblje i kupatilo
Gornji nivo: spavaća soba, mezanin, mali hodnik i toalet
Dodatne pogodnosti:
• Stan ima 58m2 gazne površine, a 3m2 su pod kosinama ispod 1.6m visine. U spavaćem delu (oko 1,5m2) i u toaletu (oko 1,5m2)
• Sigurnosna vrata, video nadzor i alarm
Zgrada se nalazi na uglu Bulevara kralja Aleksandra i Ustaničke ulice, na pešačkoj udaljenosti od: tramvajske i autobuske okretnice, O.Š. „Desanka Maksimović“, “Lidl”-a i “Aviv park”-a. Okružena je brojnim prodavnicama i mega marketima, što uz odličnu povezanost javnim prevozom i glavnim saobraćajnicama ovu mikrolokaciju čini izuzetno pogodnom za život.
Ekskluzivno pravo prodaje 3DH REAL ESTATE BEOGRAD reg.br.521. Agencijska provizija 2%.
*Sačuvaj oglas uz belešku i primaj obaveštenja o njihovom pojeftinjenju ili pojavljivanju sličnih
Prikaz stana na mapi
Parkovi u blizini
- Park Šumice35 min
- Park Slavujev potok35 min
- Zvezdarska šuma38 min

Obeležja kulture u blizini
- Pašina česma6 min
- Trećepozivačka česma13 min
- Osnovna škola Kralj Petar II Karađorđević14 min

Škole/Fakulteti/Vrtići u blizini
- Osnovna škola (Osnovna škola Desanka Maksimović)5 min
- Srednja škola (Građevinska tehnička škola Branko Žeželj)9 min
- Vrtić (Dečiji vrtić Čarobni svet)5 min
- Fakultet (Visoka građevinsko-geodetska škola Beograd)9 min

- Bolnica (Specijalna bolnica za cerebralnu paralizu i razvojnu neurologiju)12 min
- Klinika (Poliklinika i laboratorija LaboMedica)13 min
- Teretana (Teretana i fitness Body Active)7 min
- Prodavnica (IDEA Super)2 min
- Restoran (Restoran Markov konak)3 min
- Kafana (Pub Republika)5 min
- Taksi stajalište (Taxi stanica)5 min
- Autobuska stanica (Živka Davidovića)3 min
- Tramvajska stanica (Ustanička)5 min
- Trolejbuska stanica (Marčanska)16 min
- Banka (UniCredit Bank)4 min
- Pošta (Pošta Beograd 141)4 min
Kontakt oglašivača
Stambeni krediti

- Period otplate od
96 -360 meseca
- NKS 4.75%
EKS 5.74%
Fiksna kamatna stopa
- Bez troškova obrade kredita
stranici kreditnih kalkulatora
Keš krediti
Period otplate
13 meseci
