Trosoban stan na prodaju, Poručnika Spasića i Mašere, 235.000€, 84m²






























235.000 €
2.798 € / m2
- Stan u zgradi
- Centralno grejanje
- Prostorije: terasa
- Opremljenost: Prazno - interfon, kanalizacija
- Uknjiženo
- Oglas oglašava agencija pod reg. brojem 167
- 1 parking mesto
- 1 lift
- Kanalizacija
- Godina izgradnje: 1980.
- Zgrada poseduje: podrum, lođa
- 1 telefonska linija
Opis oglasa
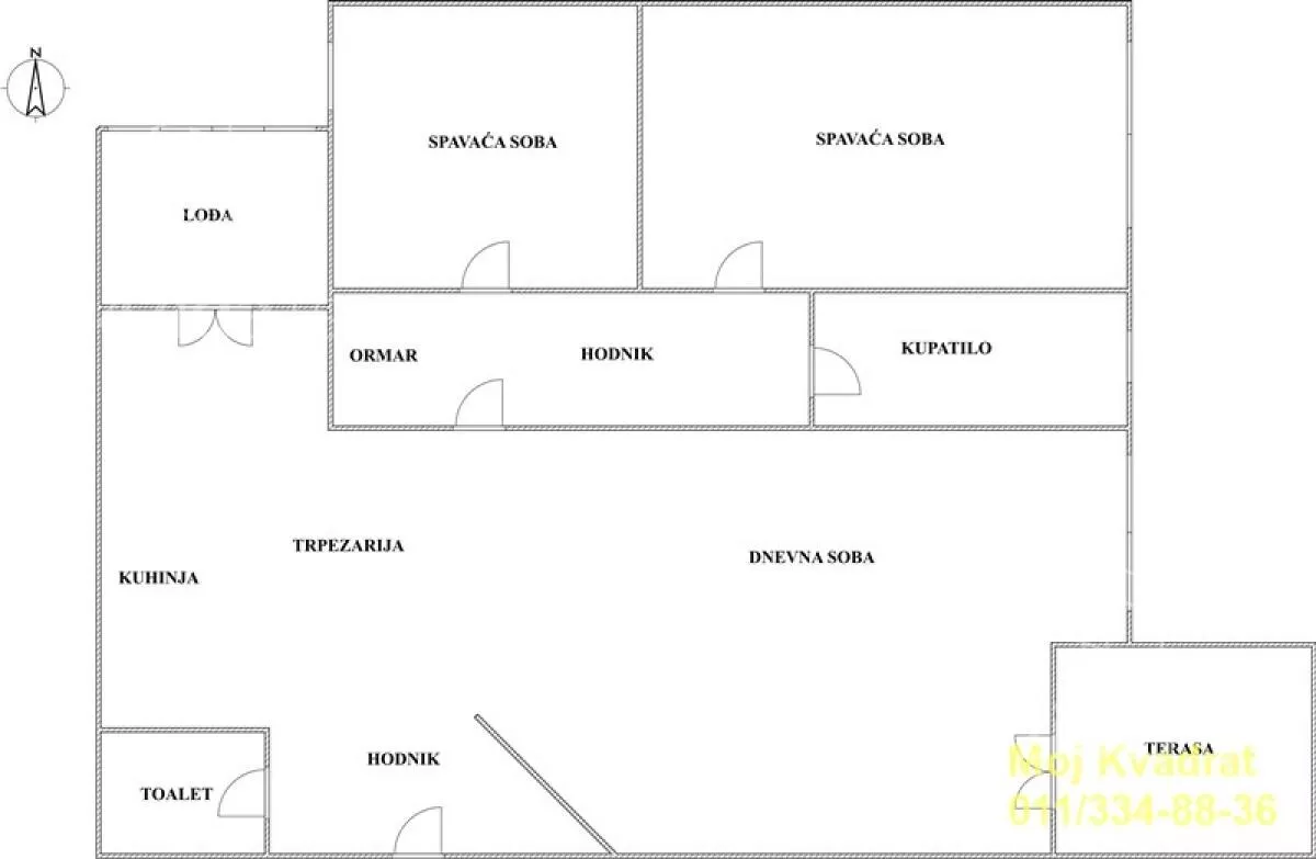
Čukarica, Julino brdo - Poručnika Spasića i Mašere
3.0, 84m2 (terasa + lođa 7m2), 4/10, CG, dva lifta, telefon, interfon, podrum, parking
U ponudi je prostran i funkcionalan trosoban stan na odličnoj lokaciji na Julinom brdu. Nalazi se u uredno održavanoj zgradi sa dva lifta.
Dobar i praktičan raspored prostorija omogućava maksimalno korišćenje prostora. Grejanje je centralno što obezbeđuje stabilne i komforne uslove tokom cele grejne sezone.
Lokacija je jedna od glavnih prednosti - miran i porodičan kraj, okružen zelenilom, a u neposrednoj blizini se nalaze škole, vrtići, prodavnice, pijaca, dom zdravlja, stanice gradskog prevoza, sa odličnom povezanošću sa ostalim delovima grada. Trgovačka ulica na svega par minuta udaljenosti.
Stan je pogodan za porodično stanovanje ili kao investicija.
Uknjižen na 77m2 građevinske i 71m2 korisne površine.
Agencijska provizija 2%
Agent: Đorđe Ćirković 063... (prikaži broj telefona) (licenca br. 4819)
*Sačuvaj oglas uz belešku i primaj obaveštenja o njihovom pojeftinjenju ili pojavljivanju sličnih
Prikaz stana na mapi
Parkovi u blizini
- Park Bele vode22 min
- Dečje igralište29 min
- Park Banovo Brdo30 min

Obeležja kulture u blizini
- Spomenik partizanskim borcima Žarkova4 min
- Česma izvor Bele vode4 min
- Česma izvor Zmajevac5 min

Škole/Fakulteti/Vrtići u blizini
- Osnovna škola (Osnovna škola Đorđe Krstić)4 min
- Srednja škola (Obrazovni sistem Crnjanski)7 min
- Vrtić (Dečiji vrtić Vesela planeta)5 min
- Fakultet (Visoka sportska i zdravstvena škola)8 min

- Bolnica (Eterna Hospital)12 min
- Klinika (Poliklinika Vaša kuća zdravlja)9 min
- Teretana (Fit Step studio)4 min
- Prodavnica (TSV Diskont)2 min
- Restoran (Restoran Staro Žarkovo)3 min
- Kafana (Brothers Pub)7 min
- Taksi stajalište (Taxi stanica)6 min
- Autobuska stanica (Julino Brdo)5 min
- Tramvajska stanica (Trebevićka)17 min
- Banka (Addiko Bank)4 min
- Pošta (Pošta Beograd 133)6 min
Kontakt oglašivača
Stambeni krediti
- Period otplate od
96 -360 meseca
- NKS 4.34%
Kombinovana kamatna stopa
- Bez troškova obrade kredita
- Odobrenje kredita do 48h
- Period otplate od
96 -360 meseca
- NKS 4.50%
EKS 5.74%
Fiksna kamatna stopa
- Bez troškova obrade kredita
stranici kreditnih kalkulatora
Keš krediti
Period otplate
13 meseci




















