Dvosoban stan na prodaju, Gradske lokacije, 74.816€, 53m²


74.816 €
1.412 € / m2
- Stan u zgradi
- Grejanje na gas
- U izgradnji
- Prostorije: kupatilo, terasa
- Nije uknjiženo
- Oglas oglašava agencija pod reg. brojem 266
Opis oglasa
Nekretnine KRUNA prodaju moderan stan u izgradnji ukupne površine 53,44 m², na odličnoj gradskoj lokaciji, u neposrednoj blizini svega neophodnog za svakodnevni život. Stan je lepo osvetljen, funkcionalnog i savremenog rasporeda.
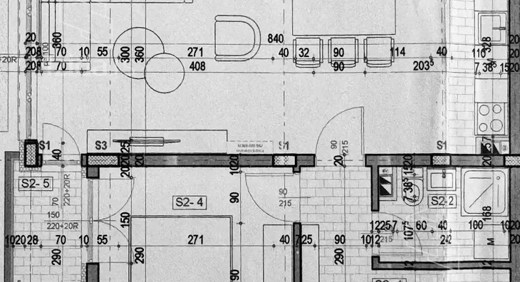
Struktura stana:
- hodnik
- dnevni boravak sa kuhinjom i trpezarijom (open space koncept)
- spavaća soba
- kupatilo
- terasa
Planirani završetak radova i useljenje: septembar 2026. godine.
Dodatne karakteristike:
- grejanje na gas
- 6-komorna aluminijumska stolarija
- termo roletne
- tarket
- ugrađena inverter klima
Cena: 1.400 €/m² + PDV
Odličan izbor kako za život, tako i za investiciju.
Za više informacija i razgledanje pozovite nas:
063... (prikaži broj telefona)
037... (prikaži broj telefona)
*Sačuvaj oglas uz belešku i primaj obaveštenja o njihovom pojeftinjenju ili pojavljivanju sličnih
Prikaz stana na mapi
Parkovi u blizini
- Park minijatura Srbija19 min
- Zabavni park Šarengrad29 min

Obeležja kulture u blizini
- Zgrada Okružnog načelstva5 min
- Spomenik mira5 min
- Spomenik kosovskim junacima5 min

Škole/Fakulteti/Vrtići u blizini
- Osnovna škola (Osnovna škola Jovan Popović)9 min
- Srednja škola (Gimnazija Kruševac)6 min
- Vrtić (Dečiji vrtić Dečiji klub)6 min
- Fakultet (Alfa BK Univerzitet)12 min

- Bolnica (Služba radiološke dijagnostike Kruševac)5 min
- Klinika (Poliklinika Multimedika)5 min
- Teretana (Cafe bar & gym Mr. Hill)38 min
- Prodavnica (Supermarket Univerexport)3 min
- Restoran (Restoran Zhong He)manje od 1 min
- Kafana (Gradska kafana)4 min
- Autobuska stanica (Spomenik)4 min
- Banka (Raiffeisen Bank)2 min
- Pošta (Pošta 37000 (šalter))8 min
Kontakt oglašivača
Krediti OTP banke
Saznaj više
Prikazana rata odnosi se na maksimalni period otplate. Kalkulator je informativnog karaktera.
* Nakon isteka 5 godina, prelazi se na varijabilnu kamatnu stopu


