Jednoiposoban stan na prodaju, Knjazevačka, 71.750€, 41m²














71.750 €
1.750 € / m2
- Novo
- Prostorije: kupatilo, terasa
- Opremljenost: interfon
- Oglas oglašava agencija pod reg. brojem 1158
- 1 parking mesto
- 1 lift
Opis oglasa
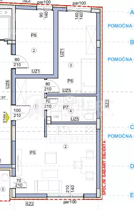
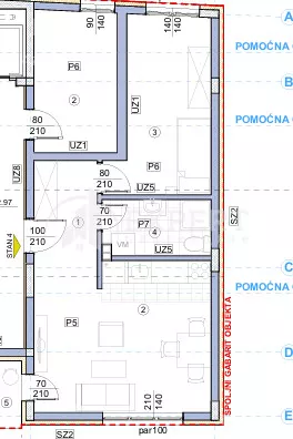
Prodaje se kvalitetno građena stambena zgrada u mirnom delu grada, u naselju Donja Vrežina. Osnovne karakteristike objekta su Spratnost: Po + P + 3. Ukupno 9 stanova. Kvadrature stanova su od 29m2 do 50.70m2. Funkcionalan raspored stanova. Odlična osvetljenost i orijentacija. Lokacija je mirna, porodična, sa dobrom povezanošću sa centrom grada, u blizini škole, vrtića, prodavnica i javnog prevoza. Spoljna stolarija je PVC sa aluminijumskim roletnama, čime se postiže odlična termo i zvučna izolacija. Akcenat je stavljen na unutrašnje završne radove – biće ugrađen prvoklasni parket, granitne pločice renomiranih proizvodjača, vrhunska termo i hidroizolacija, inverter klima uređaj za svaku stambenu jedinicu. Povraćaj PDV-a za kupce prvog stana. Stanu pripada ostava. U prizemlju objekta je predviđen natkriveni parking prostor sa tri parking mesta, dok je na parceli planirano još njih 6. Rok za završetak objekta je februar 2027 godine. Ovo je samo deo naše ponude, za više informacija, stojimo Vam na raspolaganju.
*Sačuvaj oglas uz belešku i primaj obaveštenja o njihovom pojeftinjenju ili pojavljivanju sličnih
Prikaz stana na mapi
Parkovi u blizini
- Park Svetog Save30 min
- Park složnih komšija36 min
- Park heroja NOB-a45 min

Obeležja kulture u blizini
- Ranohrišćanska grobnica11 min
- Ćele kula12 min
- Ranohrišćanska bazilika12 min

Škole/Fakulteti/Vrtići u blizini
- Osnovna škola (Osnovna škola Miroslav Antić)5 min
- Srednja škola (Trgovinska škola Niš)9 min
- Vrtić (Dečiji vrtić Mazza)5 min
- Fakultet (Univerzitet u Nišu Medicinski fakultet)13 min

- Bolnica (Bolnica Đorić)8 min
- Klinika (Poliklinika Bocokić)5 min
- Teretana (Fitness centar TNT Gym)6 min
- Prodavnica (Metla diskont)2 min
- Restoran (Restoran Duga Noć)7 min
- Kafana (Kafana Stari ambar)20 min
- Taksi stajalište (Duga taksi)33 min
- Autobuska stanica (OŠ Miroslav Antić)2 min
- Banka (Poštanska štedionica)5 min
- Pošta (Pošta Niš 3)7 min
Kontakt oglašivača
Krediti OTP banke
Saznaj više
Prikazana rata odnosi se na maksimalni period otplate. Kalkulator je informativnog karaktera.
* Nakon isteka 5 godina, prelazi se na varijabilnu kamatnu stopu


