Jednoiposoban stan na prodaju, Živka Davidovića, 130.060€, 41m²








130.060 €
3.172 € / m2
- Stan u zgradi
- Podno grejanje
- U izgradnji
- Prostorije: kupatilo, toalet
- Opremljenost: Prazno - internet
- Pogled na: ulicu
- U procesu uknjižavanja
- Oglas oglašava agencija pod reg. brojem 1299
- 26 parking mesta
- 1 lift
- Godina izgradnje: 2026.
- Zgrada poseduje: video nadzor
- Tip interneta: optički
- Autobuske linije: 20 46 63 79 301N 304NADA4
- Tramvajske linije: 5 6 7L 14
Opis oglasa
Luksuzna jednoiposobna novogradnja – Zvezdara, Živka Davidovića
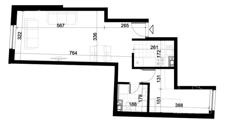
Ovaj prelepi stan ima dnevnu sobu sa trpezarijom, odvojenu kuhinju, kupatilo i spavaću sobu. Funkcionalan je, svetao i idealan za život ili investiciju.
Prednosti lokacije:
Mirna ulica, izmeštena od buke i zagađenja.
Odlična saobraćajna povezanost i brz pristup auto-putu.
U blizini se još nalaze i Cvetkova pijaca, AVIV park, škola „Ćirilo i Metodije“ , vrtić , dom zdravlja Zvezdara kao i brojni restorani, kafići, prodavnice i drugi sadržaji neophodni za kvalitetan život.
Kontaktirajte nas za više informacija.
Роскошная однокомнатная новостройка – Звездара, улица Живка Давидовича
Продаётся уютная и функционально организованная квартира в современной новостройке. Квартира состоит из светлой гостиной с обеденной зоной, отдельной кухни, ванной комнаты и комфортной спальни. Идеально подходит как для проживания, так и для инвестиций.
Преимущества локации:
– Тихая улица, удалённая от городского шума и загрязнения
– Отличная транспортная связь и быстрый выезд на автомагистраль
– Рядом находятся: рынок Цветкова, AVIV Park, школа «Кирилла и Мефодия», детский сад, поликлиника Звездара, а также многочисленные рестораны, кафе и магазины
– Всё необходимое для комфортной и качественной жизни — в шаговой доступности
Свяжитесь с нами для получения дополнительной информации.
Luxury One-Bedroom New Build – Zvezdara, Živka Davidovića Street
A beautiful and well-organized apartment for sale in a modern new building. The apartment features a bright living room with a dining area, a separate kitchen, a bathroom, and a comfortable bedroom. It is ideal both for living and as an investment.
Location advantages:
– Quiet street, away from city noise and pollution
– Excellent transport connections and quick access to the highway
– Nearby: Cvetkova Market, AVIV Park, “Ćirilo i Metodije” Elementary School, kindergarten, Zvezdara Health Center, as well as numerous restaurants, cafés, and shops
– Everything needed for a comfortable and high-quality lifestyle is within easy reach
Contact us for more information.
*Sačuvaj oglas uz belešku i primaj obaveštenja o njihovom pojeftinjenju ili pojavljivanju sličnih
Prikaz stana na mapi
Parkovi u blizini
- Park Slavujev potok23 min
- Zvezdarska šuma26 min
- Park Šumice29 min

Obeležja kulture u blizini
- Trećepozivačka česma9 min
- Vozarev krst12 min
- Pašina česma2 min

Škole/Fakulteti/Vrtići u blizini
- Osnovna škola (Osnovna škola Ćirilo i Metodije)8 min
- Srednja škola (Građevinska tehnička škola Branko Žeželj)7 min
- Vrtić (Dečiji vrtić Lavić)4 min
- Fakultet (Visoka građevinsko-geodetska škola Beograd)7 min

- Bolnica (MedicOne - specijalna bolnica za plastičnu, estetsku i rekonstruktivnu hirurgiju)8 min
- Klinika (Poliklinika i laboratorija LaboMedica)9 min
- Teretana (Teretana Spark Gym)2 min
- Prodavnica (Maxi Supermarket)2 min
- Restoran (Restoran Naš merak)1 min
- Kafana (Kafana Tri krune)5 min
- Taksi stajalište (Taxi stanica)4 min
- Autobuska stanica (Mite Ružića)4 min
- Tramvajska stanica (Koste Trifkovića)3 min
- Trolejbuska stanica (Marčanska)7 min
- Banka (Erste Bank)5 min
- Pošta (Pošta Beograd 153)4 min
Kontakt oglašivača
Stambeni krediti
- Period otplate od
96 -360 meseca
- NKS 4.50%
EKS 5.74%
Fiksna kamatna stopa
- Bez troškova obrade kredita
- Period otplate od
96 -360 meseca
- NKS 4.34%
Kombinovana kamatna stopa
- Bez troškova obrade kredita
- Odobrenje kredita do 48h
stranici kreditnih kalkulatora
Keš krediti
Period otplate
13 meseci
