Dvoiposoban stan na prodaju, Cvetkova Pijaca, 208.150€, 66m²








208.150 €
3.154 € / m2
- Stan u zgradi
- Podno grejanje
- Luksuzno
- Prostorije: kupatilo, toalet, kuhinja, terasa
- Opremljenost: Prazno - internet
- Pogled na: ulicu
- U procesu uknjižavanja
- Oglas oglašava agencija pod reg. brojem 1299
- 1 garažno mesto, garaža u sklopu zgrade
- 26 parking mesta
- 1 lift
- Godina izgradnje: 2026.
- Zgrada poseduje: video nadzor
- Tip interneta: optički
- Kablovska
- 1 telefonska linija
- Autobuske linije: 20 46 63 79 301N 304N ADA4
- Tramvajske linije: 5 6 7L 14
Opis oglasa
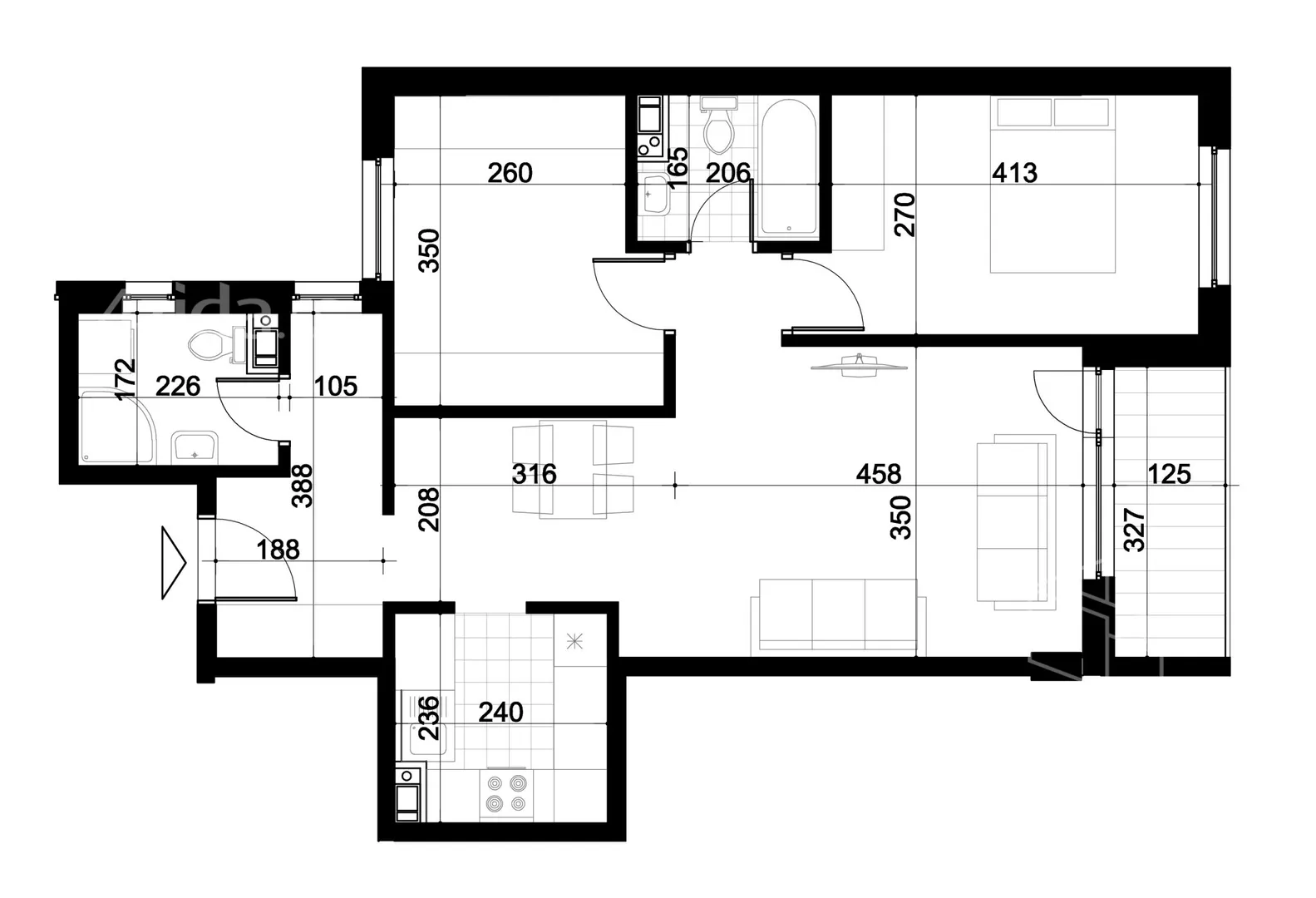
Prodaje se moderno uređen i funkcionalno organizovan dvoiposoban stan u luksuznoj novogradnji na izvanrednoj lokaciji.
Stan se sastoji od svetle dnevne sobe sa trpezarijom, odvojene kuhinje, toaleta, kupatila i dve udobne spavaće sobe, što ga čini idealnim izborom i za porodični život i za investiciju.
Zgrada je građena po visokim standardima i opremljena liftom, podnim grejanjem, video-nadzorom, interfonom i obezbeđenom toplom vodom tokom cele godine. Stan se nalazi na prvom spratu, što pruža dodatnu udobnost i lak pristup svim sadržajima.
Prednosti lokacije:
– Mirna i prijatna ulica, izmeštena od gradske buke i zagađenja
– Odlična saobraćajna povezanost i brz pristup auto-putu
– U blizini se nalaze Cvetkova pijaca, AVIV Park, osnovna škola „Ćirilo i Metodije“, vrtić, Dom zdravlja Zvezdara, kao i brojni restorani, kafići i prodavnice
Sve što je potrebno za komforan i praktičan život nalazi se na samo nekoliko minuta hoda.
Продаётся современная и функционально спланированная двухкомнатная квартира в роскошной новостройке в отличном районе.
Квартира состоит из светлой гостиной с обеденной зоной, отдельной кухни, туалета, ванной комнаты и двух уютных спален, что делает её идеальным выбором как для семейной жизни, так и для инвестиций.
Здание построено по высоким стандартам и оснащено лифтом, тёплыми полами, видеонаблюдением, домофоном и круглогодичным обеспечением горячей водой. Квартира находится на первом этаже (втором уровне по европским стандартима), что обеспечивает дополнительный комфорт и лёгкий доступ ко всем удобствам.
Преимущества расположения:
– Тихая и приятная улица, удалённая от городского шума и загрязнения
– Отличная транспортная связь и быстрый доступ к автомагистрали
– Рядом расположены Цветков рынок, AVIV Park, начальная школа «Кирилла и Мефодия», детский сад, медцентр Звездара, а также многочисленные рестораны, кафе и магазины
Всё необходимое для комфортной и практичной повседневной жизни находится в нескольких минутах ходьбы.
A modern and well-organized two-bedroom apartment for sale in a luxury new building in an excellent location. The apartment features a bright living room with a dining area, a separate kitchen, a toilet, a bathroom, and two comfortable bedrooms, making it ideal both for family living and as an investment. The building is constructed to high standards and equipped with an elevator, underfloor heating, video surveillance, an intercom system, and year-round hot water supply. The apartment is located on the first floor, providing added comfort and easy access to all amenities. Location advantages: – Quiet and pleasant street, away from city noise and pollution – Excellent transport connections and quick access to the highway – Nearby are Cvetkova Market, AVIV Park, “Ćirilo i Metodije” Elementary School, a kindergarten, Zvezdara Health Center, as well as numerous restaurants, cafés, and shops Everything needed for a comfortable and practical everyday life is just a few minutes’ walk away.
*Sačuvaj oglas uz belešku i primaj obaveštenja o njihovom pojeftinjenju ili pojavljivanju sličnih
Prikaz stana na mapi
Parkovi u blizini
- Park Slavujev potok23 min
- Zvezdarska šuma25 min
- Park Šumice30 min

Obeležja kulture u blizini
- Trećepozivačka česma10 min
- Osnovna škola Kralj Petar II Karađorđević12 min
- Pašina česma4 min

Škole/Fakulteti/Vrtići u blizini
- Osnovna škola (Osnovna škola Ćirilo i Metodije)4 min
- Srednja škola (Građevinska tehnička škola Branko Žeželj)4 min
- Vrtić (Dečiji vrtić Lavić)5 min
- Fakultet (Visoka građevinsko-geodetska škola Beograd)7 min

- Bolnica (MedicOne - specijalna bolnica za plastičnu, estetsku i rekonstruktivnu hirurgiju)9 min
- Klinika (Poliklinika i laboratorija LaboMedica)9 min
- Teretana (Teretana Spark Gym)5 min
- Prodavnica (Gomex market)3 min
- Restoran (Restoran Kraljevina)3 min
- Kafana (Papa Bear Pub)7 min
- Taksi stajalište (Taxi stanica)5 min
- Autobuska stanica (Mite Ružića)3 min
- Tramvajska stanica (Koste Trifkovića)3 min
- Trolejbuska stanica (Marčanska)8 min
- Banka (Erste Bank)4 min
- Pošta (Pošta Beograd 21)5 min
Kontakt oglašivača
Krediti OTP banke
Saznaj više
Prikazana rata odnosi se na maksimalni period otplate. Kalkulator je informativnog karaktera.
* Nakon isteka 5 godina, prelazi se na varijabilnu kamatnu stopu


