Dvosoban stan na prodaju, Crveni Krst, 117.300€, 46m²


117.300 €
2.550 € / m2
- Stan u zgradi
- Grejanje na struju
- Novo
- Prostorije: terasa
- Opremljenost: Prazno - interfon, klima
- Oglas oglašava agencija pod reg. brojem 2068
- 1 lift
Opis oglasa
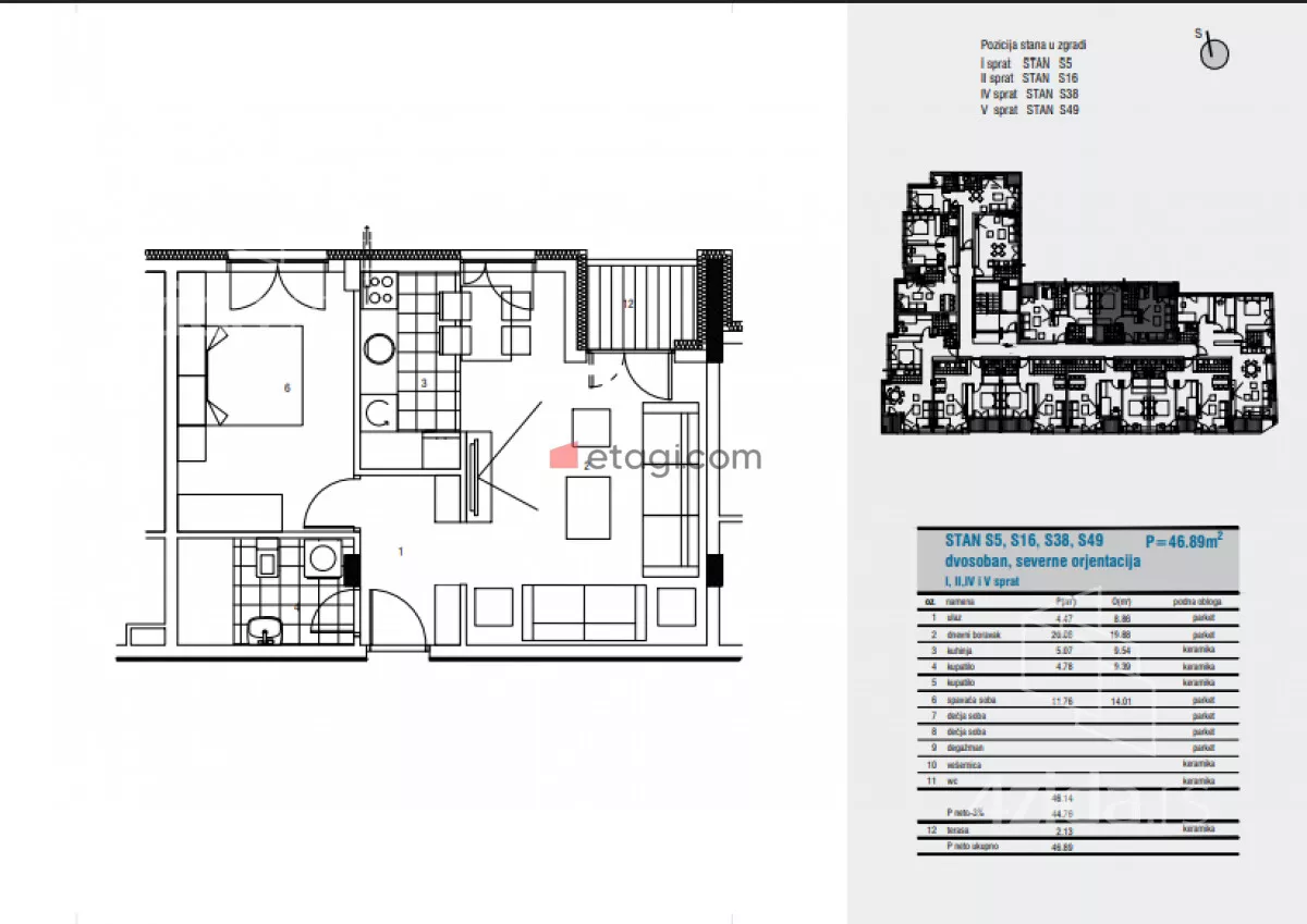
Prodaje se stan u novogradnji, površine 46,89 m2 po strukturi dvosoban koji se nalazi na petom spratu stambene zgrade sa liftom. Zgrada je građena po savremenim standardima i namenjena je dugoročnom i kvalitetnom stanovanju.
Stan je funkcionalnog rasporeda, prostorije su pravilnih oblika i omogućavaju racionalno korišćenje prostora. Završna obrada obuhvata kvalitetne materijale, uključujući parket i keramiku, sigurnosna ulazna vrata, savremenu stolariju i opremljeno kupatilo.
Nekretnina je pogodna kako za porodično stanovanje, tako i kao investicija za izdavanje.
Stan poseduje udernu dokumentaciju i moguća je kupovina putem stambenog kredita.
U neposrednoj blizini objekta na samo par minuta hoda nalaze se: vrtić, škola, prodavnice, park, javni prevoz, kao i mesta za opuštanje i uživanje.
Više informacija o ovoj ponudi možete dobiti pozivom na broj
061... (prikaži broj telefona)
i
018... (prikaži broj telefona)
.
Agencija ETAGI NEKRETNINE DOO je upisana u registar posrednika pod rednim brojem 2068.
*Sačuvaj oglas uz belešku i primaj obaveštenja o njihovom pojeftinjenju ili pojavljivanju sličnih
Prikaz stana na mapi
Parkovi u blizini
- Park heroja NOB-a28 min
- Park Čair43 min
- Park složnih komšija48 min

Obeležja kulture u blizini
- Zgrada starog načelstva8 min
- Spomenik kralju Milanu Obrenoviću8 min
- Spomenik žrtvama NATO bombardovanja8 min

Škole/Fakulteti/Vrtići u blizini
- Osnovna škola (Osnovna škola Ivo Andrić)5 min
- Srednja škola (Građevinsko tehnička škola Neimar)5 min
- Vrtić (Dečiji vrtić Sunce)9 min
- Fakultet (Univerzitet u Nišu Građevinsko-arhitektonski fakultet)6 min

- Bolnica (Bolnica Đorić)13 min
- Klinika (Poliklinika Magna Plus)9 min
- Teretana (Fitness centar Universum)8 min
- Prodavnica (Mega Maxi Supermarket)8 min
- Restoran (Kafana Mrak)18 min
- Kafana (Kafana Stara trpeza)4 min
- Taksi stajalište (Cool taksi)31 min
- Autobuska stanica (DIN)4 min
- Banka (Poštanska štedionica)9 min
- Pošta (Pošta Niš 14)6 min
Kontakt oglašivača
Krediti OTP banke
Saznaj više
Prikazana rata odnosi se na maksimalni period otplate. Kalkulator je informativnog karaktera.
* Nakon isteka 5 godina, prelazi se na varijabilnu kamatnu stopu






















